Spatiu comercial, Bucuresti / Sector 1 / Universitate

  • Zona
    UNIVERSITATE
PRET INCHIRIERE + TVA
11 €/mp /luna

DESCRIERE

SVN Romania va propune spre inchiriere un spatiu de birouri in zona Universitate.

Statia de metrou Universitate se afla la doar 5 minute distanta pietonala.

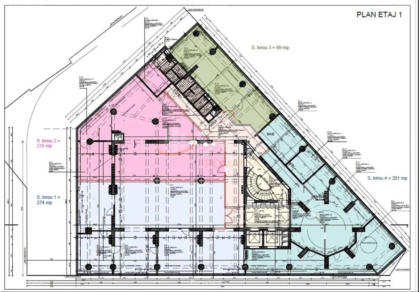
Spatiul este situat la etajul 1/6, intr-o cladire de birouri construita in anul 2005 si dispune de o suprafata totala de 579 mp.

Acesta se poate inchiria integral, respectiv 579 mp sau se poate recompartimenta si inchiriat una din urmatoarele variante:
- birou 1 -> 274 mp
- birou 2 -> 215 mp
- birou 3 -> 89 mp (vezi schita)

Spatiul este amenajat si compartimentat, dispune de chicineta, 4 grupuri sanitare amenajate, climatizare zonala iar accesul in spatiu se face pe baza de cartela.

Utilitatile se refactureaza in regim pro-rata, iar electricitatea se calculeaza consum propriu + pro-rata din spatiile comune si echipamente.

Pretul spatiului este de 10.5 euro mp + TVA.

Taxa de administrare este de 4 euro mp + TVA.

Se pot inchiria separat locuri de parcare la pretul de 120 euro + TVA/luna/loc.

Cladirea dispune de lobby cu paza si 2 lift-uri.

Pentru mai multe informatii sau pentru programarea vizionarilor, contactul meu va sta la dispozitie!

***Vizionarea acestui imobil se face doar în baza semnarii unui acord de vizionare conform codului civil, art 2.096-2.102.

ATRIBUTE

Regim Inaltime
1 / (-1) + S + P + 6
Etaj
1
Nr. bai
4
Suprafata comerciala
578
Deschidere fereastra
0.00
Oras
BUCURESTI
Judet/ Sector
SECTOR 1
Zona
UNIVERSITATE
Gps lat
44.439604
Gps lng
26.101856
Nr. terase
1
Commercial space type
Cladire de birouri
Tag
SU5WRVNUIE9QT1JUVU5JVFk=
Parkings
2

FACILITATI

Supraveghere video
Detector de incendiu
Spatiu de depozitare
Receptie
Supraveghere 24/7
Baie privata
Internet prin fibra optica
Interfon
Lift
Geamuri termopan
Incalzire proprie
WC serviciu
Aer conditionat
Bucatarie mobilata
Apometre

ATRIBUTE

Regim Inaltime
1 / (-1) + S + P + 6
Etaj
1
Nr. bai
4
Suprafata comerciala
578
Deschidere fereastra
0.00
Oras
BUCURESTI
Judet/ Sector
SECTOR 1
Zona
UNIVERSITATE
Gps lat
44.439604
Gps lng
26.101856
Nr. terase
1
Commercial space type
Cladire de birouri
Tag
SU5WRVNUIE9QT1JUVU5JVFk=
Parkings
2

DESCRIERE

SVN Romania va propune spre inchiriere un spatiu de birouri in zona Universitate.

Statia de metrou Universitate se afla la doar 5 minute distanta pietonala.

Spatiul este situat la etajul 1/6, intr-o cladire de birouri construita in anul 2005 si dispune de o suprafata totala de 579 mp.

Acesta se poate inchiria integral, respectiv 579 mp sau se poate recompartimenta si inchiriat una din urmatoarele variante:
- birou 1 -> 274 mp
- birou 2 -> 215 mp
- birou 3 -> 89 mp (vezi schita)

Spatiul este amenajat si compartimentat, dispune de chicineta, 4 grupuri sanitare amenajate, climatizare zonala iar accesul in spatiu se face pe baza de cartela.

Utilitatile se refactureaza in regim pro-rata, iar electricitatea se calculeaza consum propriu + pro-rata din spatiile comune si echipamente.

Pretul spatiului este de 10.5 euro mp + TVA.

Taxa de administrare este de 4 euro mp + TVA.

Se pot inchiria separat locuri de parcare la pretul de 120 euro + TVA/luna/loc.

Cladirea dispune de lobby cu paza si 2 lift-uri.

Pentru mai multe informatii sau pentru programarea vizionarilor, contactul meu va sta la dispozitie!

***Vizionarea acestui imobil se face doar în baza semnarii unui acord de vizionare conform codului civil, art 2.096-2.102.

FACILITATI

Supraveghere video
Detector de incendiu
Spatiu de depozitare
Receptie
Supraveghere 24/7
Baie privata
Internet prin fibra optica
Interfon
Lift
Geamuri termopan
Incalzire proprie
WC serviciu
Aer conditionat
Bucatarie mobilata
Apometre
Broker Imobiliar
Cristian Vasile
Consultant imobiliar
0317 xxx xxx

LOCALIZARE

PROPRIETATI SIMILARE