Spatiu comercial cu loc parcare subteran inclus, Bucuresti / Sector 1 / Universitate

  • Zona
    UNIVERSITATE
PRET INCHIRIERE
11 €/mp /luna

DESCRIERE

SVN Romania va propune spre inchiriere un spatiu de birouri in zona Universitate.

Statia de metrou Universitate se afla la doar 5 minute distanta pietonala.

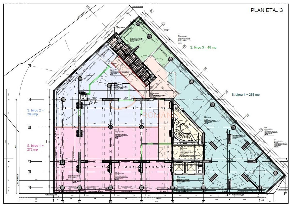
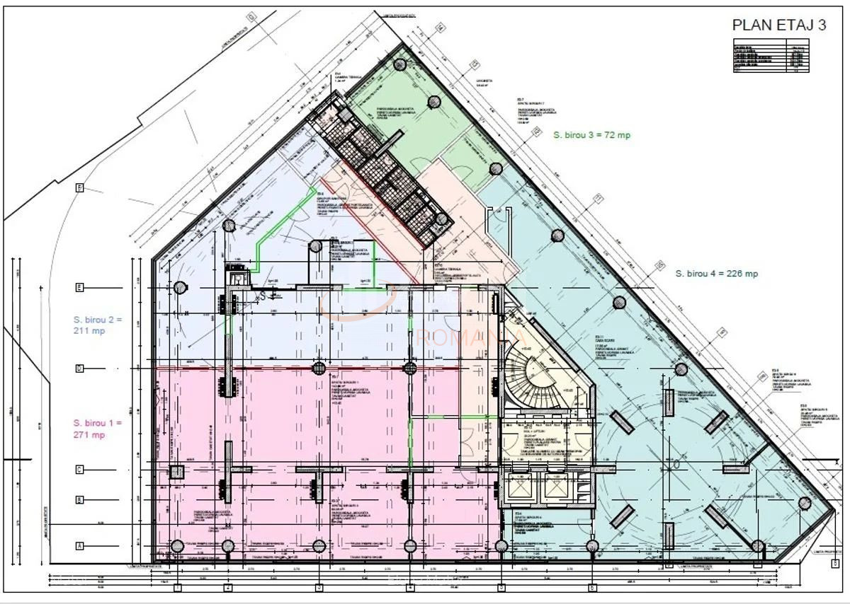
Spatiul este situat la etajul 3/6, intr-o cladire de birouri construita in anul 2005 si dispune de o suprafata partiala totala de 554 mp.

Acesta se poate inchiria integral, respectiv 554 mp sau se poate recompartimenta si inchiriat una din urmatoarele variante:
- birou 1 -> 271 mp
- birou 2 -> 211 mp
- birou 3 -> 72 mp (vezi schita)

Spatiul este amenajat si compartimentat, dispune de chicineta, 4 grupuri sanitare amenajate, climatizare zonala iar accesul in spatiu se face pe baza de cartela.

Utilitatile se refactureaza in regim pro-rata, iar electricitatea se calculeaza consum propriu + pro-rata din spatiile comune si echipamente.

Pretul spatiului este de 10.5 euro mp + TVA.

Taxa de administrare este de 4 euro mp + TVA.

Se pot inchiria separat locuri de parcare la pretul de 120 euro + TVA/luna/loc.

Se achita 2 luni de garantie + SC + TVA.

Cladirea dispune de lobby cu paza si 2 lift-uri.

Pentru mai multe informatii sau pentru programarea vizionarilor, contactul meu va sta la dispozitie!

***Vizionarea acestui imobil se face doar în baza semnarii unui acord de vizionare conform codului civil, art 2.096-2.102.

ATRIBUTE

Regim Inaltime
3 / (-1) + S + P + 6
Etaj
3
Nr. bai
4
Suprafata comerciala
556
Deschidere fereastra
0.00
Oras
BUCURESTI
Judet/ Sector
SECTOR 1
Zona
UNIVERSITATE
Gps lat
44.440332
Gps lng
26.101912
Nr. terase
1
Commercial space type
Cladire de birouri
Tag
QkVTVCBDSE9JQ0U=
Parkings
2

FACILITATI

Interfon
Lift
Supraveghere video
Detector de incendiu
Supraveghere 24/7
Baie privata
Geamuri termopan
Incalzire proprie
WC serviciu
Aer conditionat
Bucatarie mobilata
Apometre
Loc parcare subteran

ATRIBUTE

Regim Inaltime
3 / (-1) + S + P + 6
Etaj
3
Nr. bai
4
Suprafata comerciala
556
Deschidere fereastra
0.00
Oras
BUCURESTI
Judet/ Sector
SECTOR 1
Zona
UNIVERSITATE
Gps lat
44.440332
Gps lng
26.101912
Nr. terase
1
Commercial space type
Cladire de birouri
Tag
QkVTVCBDSE9JQ0U=
Parkings
2

DESCRIERE

SVN Romania va propune spre inchiriere un spatiu de birouri in zona Universitate.

Statia de metrou Universitate se afla la doar 5 minute distanta pietonala.

Spatiul este situat la etajul 3/6, intr-o cladire de birouri construita in anul 2005 si dispune de o suprafata partiala totala de 554 mp.

Acesta se poate inchiria integral, respectiv 554 mp sau se poate recompartimenta si inchiriat una din urmatoarele variante:
- birou 1 -> 271 mp
- birou 2 -> 211 mp
- birou 3 -> 72 mp (vezi schita)

Spatiul este amenajat si compartimentat, dispune de chicineta, 4 grupuri sanitare amenajate, climatizare zonala iar accesul in spatiu se face pe baza de cartela.

Utilitatile se refactureaza in regim pro-rata, iar electricitatea se calculeaza consum propriu + pro-rata din spatiile comune si echipamente.

Pretul spatiului este de 10.5 euro mp + TVA.

Taxa de administrare este de 4 euro mp + TVA.

Se pot inchiria separat locuri de parcare la pretul de 120 euro + TVA/luna/loc.

Se achita 2 luni de garantie + SC + TVA.

Cladirea dispune de lobby cu paza si 2 lift-uri.

Pentru mai multe informatii sau pentru programarea vizionarilor, contactul meu va sta la dispozitie!

***Vizionarea acestui imobil se face doar în baza semnarii unui acord de vizionare conform codului civil, art 2.096-2.102.

FACILITATI

Interfon
Lift
Supraveghere video
Detector de incendiu
Supraveghere 24/7
Baie privata
Geamuri termopan
Incalzire proprie
WC serviciu
Aer conditionat
Bucatarie mobilata
Apometre
Loc parcare subteran
Broker Imobiliar
Cristian Vasile
Consultant imobiliar
0317 xxx xxx

LOCALIZARE

PROPRIETATI SIMILARE