Apartament, 3 rooms with underground parking included, Bucuresti / Sector 2 / Barbu Vacarescu

  • Zona
    BARBU VACARESCU
  • Rooms
    3 rooms
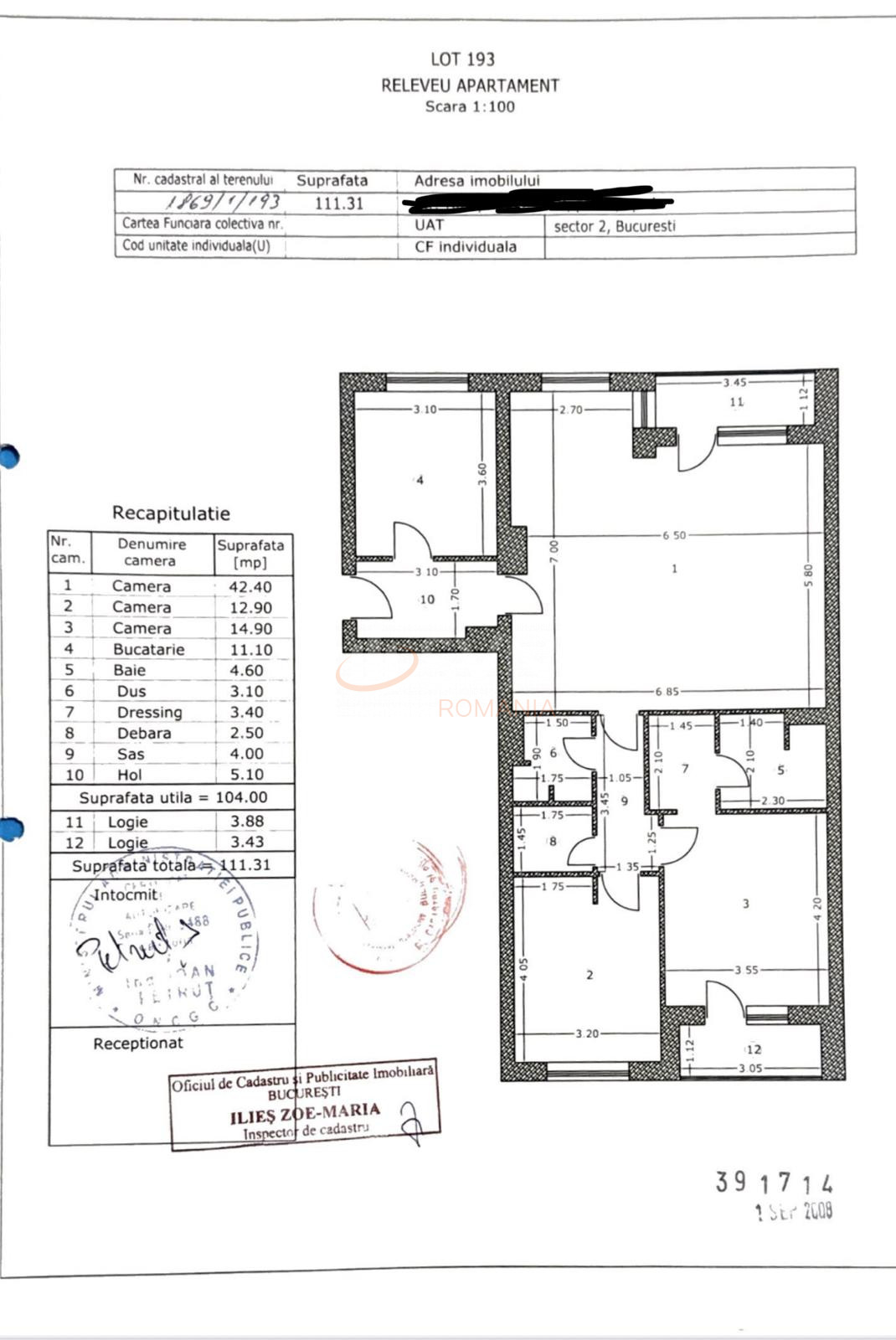
  • Net
    101 mp
  • Floor
    P
  • Const.
    2008
PRET VANZARE
315.000 €

DESCRIERE

SVN Romania va propune spre vanzare, in exclusivitate, un apartament premium cu 3 camere, situat intr-un ansamblu rezidential modern si securizat, in apropierea Parcului Tei.

Cu o suprafata utila de 104 mp si doua gradini private, acest apartament reprezinta alegerea ideala pentru cei care cauta un stil de viata echilibrat intre confort, design si acces facil catre zonele verzi si punctele de interes urban.

Compartimentare & Dotari:

3 camere spatioase, inclusiv dormitor matrimonial cu baie proprie (dotata cu cada)

A doua baie prevazuta cu cabina de dus

Bucatarie inchisa, complet mobilata si utilata

2 terase – una cu acces din living, cealalta din dormitor

Se vinde exact ca in poze, complet mobilat si echipat cu electrocasnice de ultima generatie

Design realizat cu ajutorul unui designer de interior – finisaje atent alese, mobilier de calitate superioara

Specificatii tehnice:

Aer conditionat (2 unitati)

Tamplarie PVC cu geam termopan

Incalzire prin centrala de bloc cu calorifere

Lift, interfon, paza permanenta si supraveghere video 24/7

? Facilitati incluse:

Loc de parcare subteran (12 mp) – pozitionat excelent, cu spatiu lateral suficient pentru zona de depozitare ( se achizitioneaza separat)

Boxa de depozitare ( inclusa in pret )

Acces securizat in ansamblu, cu control la intrare

? Extra Beneficiu:

Blocul dispune de terasa comuna la ultimul etaj, disponibila tuturor locatarilor – ideala pentru relaxare, socializare sau momente de liniste, cu un view panoramic spectaculos asupra orasului si Lacului Tei

? Avantaje zona:

Locatie excelenta – langa Parcul si Lacul Tei, Parcul Verdi si Parcul Circului

Supermarketuri in apropiere: Kaufland, Lidl, Mega Image

Acces rapid la restaurante, cafenele, farmacii, clinici si alte puncte de interes

Transport public: tramvaie 16, 36, autobuze 182, 282 – legatura eficienta cu metroul (Pipera, Aurel Vlaicu)

Apropiere de scoli, gradinite si centre educationale

La doar cateva minute de marile centre de business din zona Pipera – o adevarata oaza de liniste, ferita de agitatia si poluarea orasului

Pentru mai multe detalii sau o vizionare, nu ezitati sa ne contactati.

ATRIBUTE

Construction age
Old
Gross surface
, 115 mp
Net Surface
101 mp
Structure
P / 11
Floor
P
Rooms
3 rooms
Bathrooms
1
Balconies
, 0 balcoane
Convenience
1
Split
Decomandat
Construction type
In bloc
Construction status
Finished
Construction year
2008
Level one location
BUCURESTI
Level two location
SECTOR 2
Level three location
BARBU VACARESCU
Gps lat
44.466337
Gps lng
26.118018
Primary energy consumption
0.00
Co2 consumption index
0.00
Renewable energy consumption
0.00
Tag
RkFNSUxZIFRZUEU=
Parkings
1
Price included parking
1

FACILITATI

Supraveghere 24/7
Sistem de alarma
Interfon
Internet prin fibra optica
Geamuri termopan
Repartitoare
Parchet
Boxa
Gresie
Telefon
Underground parking
Faianta
Calorifere
Mobilat
Aer conditionat
Bucatarie mobilata
Lift

ATRIBUTE

Construction age
Old
Gross surface
, 115 mp
Net Surface
101 mp
Structure
P / 11
Floor
P
Rooms
3 rooms
Bathrooms
1
Balconies
, 0 balcoane
Convenience
1
Split
Decomandat
Construction type
In bloc
Construction status
Finished
Construction year
2008
Level one location
BUCURESTI
Level two location
SECTOR 2
Level three location
BARBU VACARESCU
Gps lat
44.466337
Gps lng
26.118018
Primary energy consumption
0.00
Co2 consumption index
0.00
Renewable energy consumption
0.00
Tag
RkFNSUxZIFRZUEU=
Parkings
1
Price included parking
1

DESCRIERE

SVN Romania va propune spre vanzare, in exclusivitate, un apartament premium cu 3 camere, situat intr-un ansamblu rezidential modern si securizat, in apropierea Parcului Tei.

Cu o suprafata utila de 104 mp si doua gradini private, acest apartament reprezinta alegerea ideala pentru cei care cauta un stil de viata echilibrat intre confort, design si acces facil catre zonele verzi si punctele de interes urban.

Compartimentare & Dotari:

3 camere spatioase, inclusiv dormitor matrimonial cu baie proprie (dotata cu cada)

A doua baie prevazuta cu cabina de dus

Bucatarie inchisa, complet mobilata si utilata

2 terase – una cu acces din living, cealalta din dormitor

Se vinde exact ca in poze, complet mobilat si echipat cu electrocasnice de ultima generatie

Design realizat cu ajutorul unui designer de interior – finisaje atent alese, mobilier de calitate superioara

Specificatii tehnice:

Aer conditionat (2 unitati)

Tamplarie PVC cu geam termopan

Incalzire prin centrala de bloc cu calorifere

Lift, interfon, paza permanenta si supraveghere video 24/7

? Facilitati incluse:

Loc de parcare subteran (12 mp) – pozitionat excelent, cu spatiu lateral suficient pentru zona de depozitare ( se achizitioneaza separat)

Boxa de depozitare ( inclusa in pret )

Acces securizat in ansamblu, cu control la intrare

? Extra Beneficiu:

Blocul dispune de terasa comuna la ultimul etaj, disponibila tuturor locatarilor – ideala pentru relaxare, socializare sau momente de liniste, cu un view panoramic spectaculos asupra orasului si Lacului Tei

? Avantaje zona:

Locatie excelenta – langa Parcul si Lacul Tei, Parcul Verdi si Parcul Circului

Supermarketuri in apropiere: Kaufland, Lidl, Mega Image

Acces rapid la restaurante, cafenele, farmacii, clinici si alte puncte de interes

Transport public: tramvaie 16, 36, autobuze 182, 282 – legatura eficienta cu metroul (Pipera, Aurel Vlaicu)

Apropiere de scoli, gradinite si centre educationale

La doar cateva minute de marile centre de business din zona Pipera – o adevarata oaza de liniste, ferita de agitatia si poluarea orasului

Pentru mai multe detalii sau o vizionare, nu ezitati sa ne contactati.

FACILITATI

Supraveghere 24/7
Sistem de alarma
Interfon
Internet prin fibra optica
Geamuri termopan
Repartitoare
Parchet
Boxa
Gresie
Telefon
Underground parking
Faianta
Calorifere
Mobilat
Aer conditionat
Bucatarie mobilata
Lift
Broker Imobiliar
Codrin Popescu
Consultant imobiliar
0317 xxx xxx

LOCALIZARE

Loan calculator
Monthly amount: 6.933 LEI Interest rate: 4.97%
PROPRIETATI SIMILARE