Apartament, 2 rooms with underground parking included, Bucuresti / Sector 1 / Aviatiei

  • Zona
    AVIATIEI
  • Rooms
    2 rooms
  • Net
    44 mp
  • Floor
    P
  • Const.
    2020
PRET VANZARE
178.000 €

DESCRIERE

SVN Residentialist va propune spre achizitionare un apartament, cu mobila si finisaje de calitate, situat in zona Aviatiei.

LOCALIZARE:
Acest imobil este situat in imediata apropiere de urmatoarele puncte: Floreasca, Aviatiei, Promenada, Baneasa.
In proximitate se afla si principalele hub-uri comerciale si de birouri ale Bucurestiului.

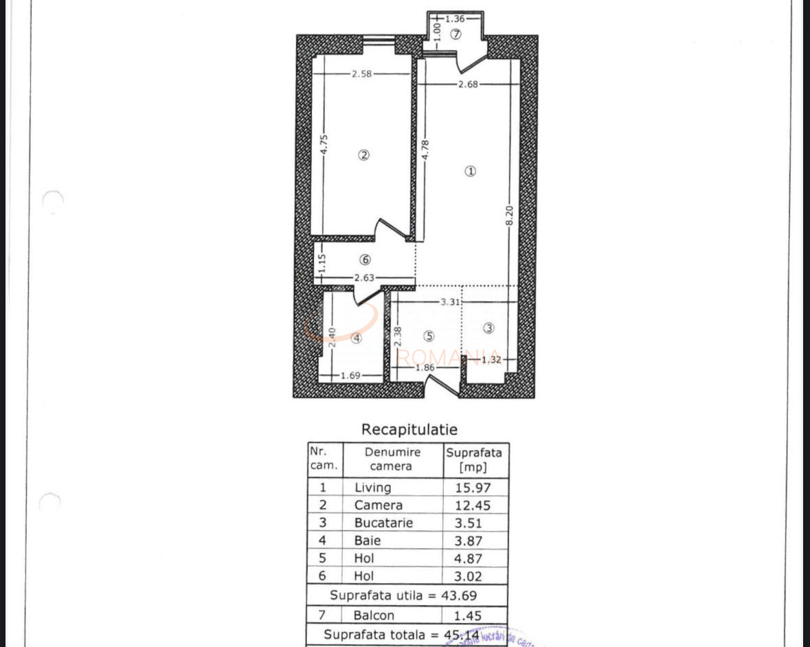
COMPARTIMENTARE:
Proprietatea este dispusa pe 2 camere:
Living-ul cu suprafete vitrate mari, bucatarie open space ce contine: plita, cuptor, hota, combina frigorifica,zona dining, acces in terasa,
dormitorul cu dressing
baie


DOTARI
Proprietatea detine:
- incalzire in pardoseala
- tamplarie de cea mai inalta calitate din aluminiu, geam tripan cu 5 camere de izolare fonica
- usa metalica;
- aer conditionat
- parchet triplustratificat

Apartamentul detine si loc de parcare la pretul de 22.000 euro

Imobilul are o calitate superioara, fatada ventilata, ce ajuta cladirea in pastrarea unui aspect placut pe termen lung, dar asigura si o izolatie mult mai buna.


Cu deosebita consideratie,
Echipa SVN Residentialist

ATRIBUTE

Construction age
New
Gross surface
, 55 mp
Net Surface
44 mp
Structure
P / 1
Floor
P
Rooms
2 rooms
Bathrooms
1
Balconies
, 0 balcoane
Convenience
1
Split
Semidecomandat
Construction type
In bloc
Construction status
Finished
Construction year
2020
Level one location
BUCURESTI
Level two location
SECTOR 1
Level three location
AVIATIEI
Gps lat
44.488206
Gps lng
26.093260
Terraces
1
Primary energy consumption
0.00
Co2 consumption index
0.00
Renewable energy consumption
0.00
Tag
QkVTVCBDSE9JQ0U=
Parkings
1

FACILITATI

Sistem de alarma
Interfon
Curent electric
Cablu TV
Geamuri termopan
Repartitoare
Parchet
Apometre
Gresie
Telefon
Underground parking
Faianta
Gaz
Incalzire proprie
Incalzire prin pardoseala
Mobilat
Aer conditionat
Bucatarie mobilata

ATRIBUTE

Construction age
New
Gross surface
, 55 mp
Net Surface
44 mp
Structure
P / 1
Floor
P
Rooms
2 rooms
Bathrooms
1
Balconies
, 0 balcoane
Convenience
1
Split
Semidecomandat
Construction type
In bloc
Construction status
Finished
Construction year
2020
Level one location
BUCURESTI
Level two location
SECTOR 1
Level three location
AVIATIEI
Gps lat
44.488206
Gps lng
26.093260
Terraces
1
Primary energy consumption
0.00
Co2 consumption index
0.00
Renewable energy consumption
0.00
Tag
QkVTVCBDSE9JQ0U=
Parkings
1

DESCRIERE

SVN Residentialist va propune spre achizitionare un apartament, cu mobila si finisaje de calitate, situat in zona Aviatiei.

LOCALIZARE:
Acest imobil este situat in imediata apropiere de urmatoarele puncte: Floreasca, Aviatiei, Promenada, Baneasa.
In proximitate se afla si principalele hub-uri comerciale si de birouri ale Bucurestiului.

COMPARTIMENTARE:
Proprietatea este dispusa pe 2 camere:
Living-ul cu suprafete vitrate mari, bucatarie open space ce contine: plita, cuptor, hota, combina frigorifica,zona dining, acces in terasa,
dormitorul cu dressing
baie


DOTARI
Proprietatea detine:
- incalzire in pardoseala
- tamplarie de cea mai inalta calitate din aluminiu, geam tripan cu 5 camere de izolare fonica
- usa metalica;
- aer conditionat
- parchet triplustratificat

Apartamentul detine si loc de parcare la pretul de 22.000 euro

Imobilul are o calitate superioara, fatada ventilata, ce ajuta cladirea in pastrarea unui aspect placut pe termen lung, dar asigura si o izolatie mult mai buna.


Cu deosebita consideratie,
Echipa SVN Residentialist

FACILITATI

Sistem de alarma
Interfon
Curent electric
Cablu TV
Geamuri termopan
Repartitoare
Parchet
Apometre
Gresie
Telefon
Underground parking
Faianta
Gaz
Incalzire proprie
Incalzire prin pardoseala
Mobilat
Aer conditionat
Bucatarie mobilata
Broker Imobiliar
Claudia Gavrila
Consultant imobiliar
0317 xxx xxx
PROPRIETATI SIMILARE
Apartament, 2 rooms, 48.31 mp Bucuresti/Aviatiei
0 €/mp
Net
48.31 mp
Floor
7
Const.
2016
Apartament, 2 rooms, 44.43 mp Bucuresti/Aviatiei
0 €/mp
Net
44.43 mp
Floor
1
Const.
2019
Apartament, 2 rooms, 66.08 mp Bucuresti/Aviatiei
0 €/mp
Net
66.08 mp
Floor
3
Const.
1990

LOCALIZARE

Loan calculator
Monthly amount: 3.918 LEI Interest rate: 4.97%
PROPRIETATI SIMILARE