Apartament, 3 camere cu loc parcare exterior inclus, Bucuresti / Sector 6 / Militari

  • Zona
    MILITARI
  • Nr.
    3 camere
  • Supra.
    70 mp
  • Etaj
    4
  • An
    1988
PRET VANZARE
164.000 €

DESCRIERE

SVN Residentialist va propune spre vanzare un apartament de 3 camere situat in sector 6, in proximitatea Teatrului Masca, Militari – o zona bine conectata si apreciata pentru accesibilitate si facilitati.

Apartamentul a fost renovat complet, cu instalatii electrice si sanitare noi, calorifere noi si finisaje de calitate, atent alese pentru un plus de confort si durabilitate. Se vinde partial mobilat si dispune de 2 aparate de aer conditionat, oferind confort sporit in orice sezon.

Locuinta beneficiaza de loc de parcare si este pregatita pentru mutare imediata – tot ce trebuie sa faci este sa aduci lucrurile personale. In imediata apropiere regasim statii de autobuz, tramvaiul 41 si metrou, asigurand acces rapid catre orice zona a orasului.

O alegere ideala atat pentru locuit, cat si pentru investitie.

Nu ezitati sa ne contactati pentru mai multe detalii si vizionari!

ATRIBUTE

Vechime constructie
Veche
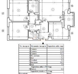
Suprafata construita
75 mp
Suprafata utila
70 mp
Regim Inaltime
4 / 4
Etaj
4
Nr. camere
3 camere
Nr. bai
2
Nr. balcoane
0 balcoane
Confort
1
Compartimentare
Decomandat
Tip constructie
In bloc
Status constructie
Finalizat
An constructie
1988
Oras
BUCURESTI
Judet/ Sector
SECTOR 6
Zona
MILITARI
Gps lat
44.439312
Gps lng
26.030275
Primary energy consumption
0.00
Co2 consumption index
0.00
Renewable energy consumption
0.00
Tag
QkVTVCBDSE9JQ0U=

FACILITATI

Internet Wireless
Internet prin cablu
Curent electric
Cablu TV
Interfon
Supraveghere video
Supraveghere 24/7
Geamuri termopan
Balcon inchis
Parchet
Apometre
Gresie
Telefon
Faianta
Gaz
Loc parcare exterior
Calorifere
Incalzire prin pardoseala
WC serviciu
Mobilat
Aer conditionat
Bucatarie mobilata
Bloc reabiliat termic

ATRIBUTE

Vechime constructie
Veche
Suprafata construita
75 mp
Suprafata utila
70 mp
Regim Inaltime
4 / 4
Etaj
4
Nr. camere
3 camere
Nr. bai
2
Nr. balcoane
0 balcoane
Confort
1
Compartimentare
Decomandat
Tip constructie
In bloc
Status constructie
Finalizat
An constructie
1988
Oras
BUCURESTI
Judet/ Sector
SECTOR 6
Zona
MILITARI
Gps lat
44.439312
Gps lng
26.030275
Primary energy consumption
0.00
Co2 consumption index
0.00
Renewable energy consumption
0.00
Tag
QkVTVCBDSE9JQ0U=

DESCRIERE

SVN Residentialist va propune spre vanzare un apartament de 3 camere situat in sector 6, in proximitatea Teatrului Masca, Militari – o zona bine conectata si apreciata pentru accesibilitate si facilitati.

Apartamentul a fost renovat complet, cu instalatii electrice si sanitare noi, calorifere noi si finisaje de calitate, atent alese pentru un plus de confort si durabilitate. Se vinde partial mobilat si dispune de 2 aparate de aer conditionat, oferind confort sporit in orice sezon.

Locuinta beneficiaza de loc de parcare si este pregatita pentru mutare imediata – tot ce trebuie sa faci este sa aduci lucrurile personale. In imediata apropiere regasim statii de autobuz, tramvaiul 41 si metrou, asigurand acces rapid catre orice zona a orasului.

O alegere ideala atat pentru locuit, cat si pentru investitie.

Nu ezitati sa ne contactati pentru mai multe detalii si vizionari!

FACILITATI

Internet Wireless
Internet prin cablu
Curent electric
Cablu TV
Interfon
Supraveghere video
Supraveghere 24/7
Geamuri termopan
Balcon inchis
Parchet
Apometre
Gresie
Telefon
Faianta
Gaz
Loc parcare exterior
Calorifere
Incalzire prin pardoseala
WC serviciu
Mobilat
Aer conditionat
Bucatarie mobilata
Bloc reabiliat termic
Broker Imobiliar
Andrei Dicu
Consultant imobiliar
0317 xxx xxx
PROPRIETATI SIMILARE
Apartament, 2 camere, 56 mp Bucuresti/Militari
139.000 €
Supra.
56 mp
Etaj
P
An
2023
Apartament, 2 camere, 56 mp Bucuresti/Militari
146.000 €
Supra.
56 mp
Etaj
3
An
2023
Apartament, 2 camere, 54 mp Bucuresti/Militari
184.000 €
Supra.
54 mp
Etaj
3
An
2018
Apartament, 2 camere, 49 mp Bucuresti/Militari
175.000 €
Supra.
49 mp
Etaj
P
An
2018

LOCALIZARE

Credit ipotecar
Rata lunara: 3.610 LEI Dobanda: 4.97%
PROPRIETATI SIMILARE