Apartament, 1 camera, 44 mp, Bucuresti / Sector 6 / Lujerului

  • Zona
    LUJERULUI
  • Nr.
    1 camera
  • Supra.
    44 mp
  • Etaj
    5
  • An
    2023
PRET VANZARE + TVA
106.500 €

DESCRIERE

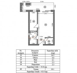
SVN Residentialist va propune spre vanzare un studio modern situat in zona Lujerului, intr-un bloc rezidential nou, ideal atat pentru locuire, cat si pentru investitie. Proprietatea are o suprafata utila de 33.8 mp, completata de o terasa generoasa de 10.1 mp, care ofera un spatiu suplimentar pentru relaxare.

Studio-ul este eficient compartimentat. Camera principala de 18.5 mp este luminoasa si permite amenajarea unei zone de zi si de dormit. Bucataria tip oficiu are o suprafata de 6.6 mp si se preteaza perfect pentru amenajari moderne si practice. Baia are o suprafata de 4.1 mp si este configurata astfel incat sa ofere functionalitate maxima. Holul de 2.3 mp asigura un flux natural intre incaperi, iar spatiul de depozitare de 2.3 mp reprezinta un avantaj important pentru organizarea locuintei. Terasa de 10.1 mp completeaza perfect proprietatea si poate fi amenajata ca zona de relaxare in aer liber.

Imobilul este situat intr-o locatie excelenta, la doar cateva minute de mers pe jos de statia de metrou Lujerului, centre comerciale, supermarketuri si alte facilitati urbane. Datorita amplasarii si compartimentarii, studio-ul reprezinta o alegere potrivita atat pentru locuire, cat si pentru investitie.

Pentru mai multe informatii sau pentru a programa o vizionare, vă stau cu drag la dispozitie. Aceasta proprietate poate deveni cu usurinta noul dumneavoastra camin.

ATRIBUTE

Vechime constructie
Noua
Suprafata construita
54 mp
Suprafata utila
44 mp
Suprafata terasa
10 mp
Regim Inaltime
5 / 5
Etaj
5
Nr. camere
1 camera
Nr. bai
1
Nr. balcoane
1 balcon
Confort
1
Compartimentare
Decomandat
Tip constructie
In bloc
Status constructie
Finalizat
An constructie
2023
Oras
BUCURESTI
Judet/ Sector
SECTOR 6
Zona
LUJERULUI
Gps lat
44.428387
Gps lng
26.022403
Primary energy consumption
0.00
Co2 consumption index
0.00
Renewable energy consumption
0.00
Tag
QkVTVCBDSE9JQ0U=

FACILITATI

Curent electric
Interfon
Geamuri termopan
Parchet
Gresie
Gaz
Incalzire proprie
Incalzire prin pardoseala
Mobilat
Aer conditionat
Bucatarie mobilata
Lift

ATRIBUTE

Vechime constructie
Noua
Suprafata construita
54 mp
Suprafata utila
44 mp
Suprafata terasa
10 mp
Regim Inaltime
5 / 5
Etaj
5
Nr. camere
1 camera
Nr. bai
1
Nr. balcoane
1 balcon
Confort
1
Compartimentare
Decomandat
Tip constructie
In bloc
Status constructie
Finalizat
An constructie
2023
Oras
BUCURESTI
Judet/ Sector
SECTOR 6
Zona
LUJERULUI
Gps lat
44.428387
Gps lng
26.022403
Primary energy consumption
0.00
Co2 consumption index
0.00
Renewable energy consumption
0.00
Tag
QkVTVCBDSE9JQ0U=

DESCRIERE

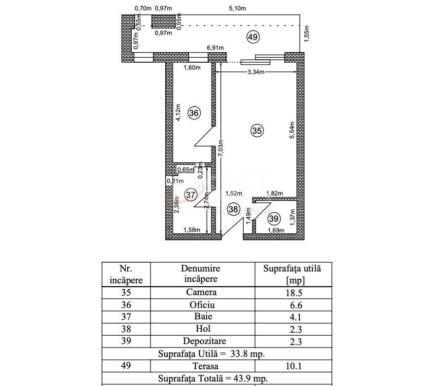
SVN Residentialist va propune spre vanzare un studio modern situat in zona Lujerului, intr-un bloc rezidential nou, ideal atat pentru locuire, cat si pentru investitie. Proprietatea are o suprafata utila de 33.8 mp, completata de o terasa generoasa de 10.1 mp, care ofera un spatiu suplimentar pentru relaxare.

Studio-ul este eficient compartimentat. Camera principala de 18.5 mp este luminoasa si permite amenajarea unei zone de zi si de dormit. Bucataria tip oficiu are o suprafata de 6.6 mp si se preteaza perfect pentru amenajari moderne si practice. Baia are o suprafata de 4.1 mp si este configurata astfel incat sa ofere functionalitate maxima. Holul de 2.3 mp asigura un flux natural intre incaperi, iar spatiul de depozitare de 2.3 mp reprezinta un avantaj important pentru organizarea locuintei. Terasa de 10.1 mp completeaza perfect proprietatea si poate fi amenajata ca zona de relaxare in aer liber.

Imobilul este situat intr-o locatie excelenta, la doar cateva minute de mers pe jos de statia de metrou Lujerului, centre comerciale, supermarketuri si alte facilitati urbane. Datorita amplasarii si compartimentarii, studio-ul reprezinta o alegere potrivita atat pentru locuire, cat si pentru investitie.

Pentru mai multe informatii sau pentru a programa o vizionare, vă stau cu drag la dispozitie. Aceasta proprietate poate deveni cu usurinta noul dumneavoastra camin.

FACILITATI

Curent electric
Interfon
Geamuri termopan
Parchet
Gresie
Gaz
Incalzire proprie
Incalzire prin pardoseala
Mobilat
Aer conditionat
Bucatarie mobilata
Lift
Broker Imobiliar
Alexandra Duma
Consultant imobiliar
0317 xxx xxx
PROPRIETATI SIMILARE
Apartament, 1 camera, 38 mp Bucuresti/Lujerului
122.000 €
Supra.
38 mp
Etaj
P
An
2018
Apartament, 1 camera, 40 mp Bucuresti/Lujerului
121.000 €
Supra.
40 mp
Etaj
P
An
2024
Apartament, 2 camere, 56 mp Bucuresti/Lujerului
146.000 €
Supra.
56 mp
Etaj
3
An
2023
Apartament, 2 camere, 56 mp Bucuresti/Lujerului
139.000 €
Supra.
56 mp
Etaj
P
An
2023
Apartament, 2 camere, 84 mp Bucuresti/Lujerului
217.000 €
Supra.
84 mp
Etaj
11
An
2021

LOCALIZARE

Credit ipotecar
Rata lunara: 2.345 LEI Dobanda: 4.97%
PROPRIETATI SIMILARE