Apartament, 3 camere, 62.06 mp, Bucuresti / Sector 4 / Tineretului

  • Zona
    TINERETULUI
  • Nr.
    3 camere
  • Supra.
    62.06 mp
  • Etaj
    6
  • An
    1979
PRET VANZARE
229.000 €

DESCRIERE

SVN Romania va propune spre vanzare un apartament de 3 camere, complet renovat si utilat, situat in zona Tineretului in a doua linie de la Bd. Sincai.

Statia de metrou Tineretului se afla la o distanta pietonala de doar 5 minute.

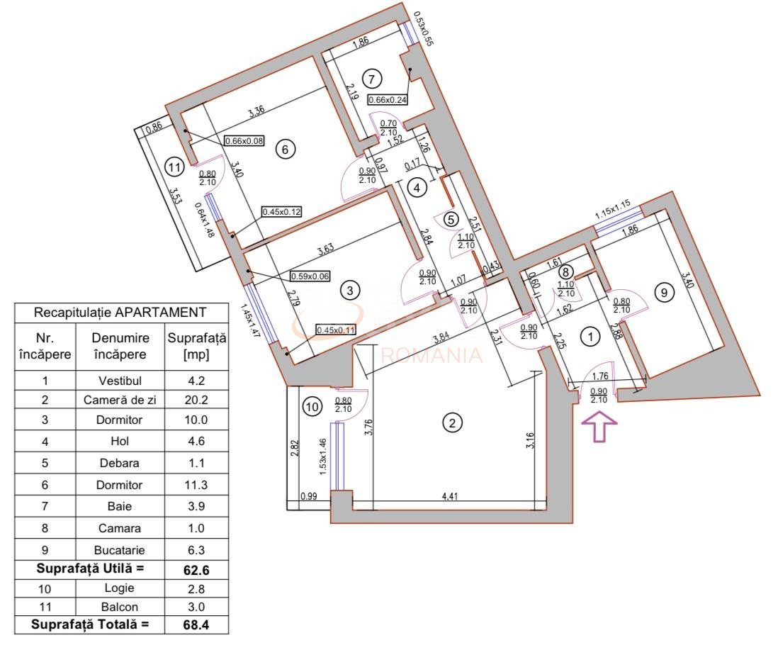
Apartamentul este situat la etajul 6 din 10, intr-un imobil construit dupa cutremur, in anul 1979, avand o suprafata utila de 62.06 mp si 2 balcoane cu o suprafata de 5 mp, pe o structura solida din cadre de beton armat.

Blocul este curat, bine intretinut si locuit de vecini civilizati, iar in prezent se afla in proces de termoreabilitare.

Acesta a fost renovat integral in anul 2025, folosindu-se materiale premium. Toate instalatiile precum cele sanitare, electrice si termice au fost inlocuite complet, iar apartamentul nu a fost locuit dupa finalizarea renovarii.

Compartimentarea este semidecomandata, iar spatiul interior a fost gandit pentru a imbina esteticul cu utilul. Apartamentul se remarca printr-o amenajare moderna, in stil industrial, realizata in colaborare cu un designer de interior.

Bucataria este complet mobilata si utilata cu electrocasnice moderne si finisaje de inalta calitate.

Locatia ofera acces facil la mijloace de transport in comun, Parcul Tineretului, locuri de joaca pentru copii, crese, gradinite, facultati, Piata Norilor, supermarketuri si numeroase alte puncte de interes.

Toate actele sunt pregatite pentru vanzare, iar proprietatea se preteaza atat pentru locuinta proprie, cat si ca investitie.

Pentru mai multe informatii sau pentru programarea vizionarilor, contactul meu va sta la dispozitie!

ATRIBUTE

Vechime constructie
Veche
Suprafata construita
68.04 mp
Suprafata utila
62.06 mp
Suprafata terasa
5.08 mp
Regim Inaltime
6 / 10
Etaj
6
Nr. camere
3 camere
Nr. bai
1
Nr. balcoane
2 balcoane
Confort
1
Compartimentare
Semidecomandat
Tip constructie
In bloc
Status constructie
Finalizat
An constructie
1979
Oras
BUCURESTI
Judet/ Sector
SECTOR 4
Zona
TINERETULUI
Gps lat
44.413825
Gps lng
26.108644
Primary energy consumption
0.00
Co2 consumption index
0.00
Renewable energy consumption
0.00
Tag
QkVTVCBDSE9JQ0U=

FACILITATI

Cablu TV
Curent electric
Interfon
Geamuri termopan
Balcon inchis
Parchet
Apometre
Gresie
Faianta
Calorifere
Mobilat
Bucatarie mobilata
Bloc reabiliat termic
Lift

ATRIBUTE

Vechime constructie
Veche
Suprafata construita
68.04 mp
Suprafata utila
62.06 mp
Suprafata terasa
5.08 mp
Regim Inaltime
6 / 10
Etaj
6
Nr. camere
3 camere
Nr. bai
1
Nr. balcoane
2 balcoane
Confort
1
Compartimentare
Semidecomandat
Tip constructie
In bloc
Status constructie
Finalizat
An constructie
1979
Oras
BUCURESTI
Judet/ Sector
SECTOR 4
Zona
TINERETULUI
Gps lat
44.413825
Gps lng
26.108644
Primary energy consumption
0.00
Co2 consumption index
0.00
Renewable energy consumption
0.00
Tag
QkVTVCBDSE9JQ0U=

DESCRIERE

SVN Romania va propune spre vanzare un apartament de 3 camere, complet renovat si utilat, situat in zona Tineretului in a doua linie de la Bd. Sincai.

Statia de metrou Tineretului se afla la o distanta pietonala de doar 5 minute.

Apartamentul este situat la etajul 6 din 10, intr-un imobil construit dupa cutremur, in anul 1979, avand o suprafata utila de 62.06 mp si 2 balcoane cu o suprafata de 5 mp, pe o structura solida din cadre de beton armat.

Blocul este curat, bine intretinut si locuit de vecini civilizati, iar in prezent se afla in proces de termoreabilitare.

Acesta a fost renovat integral in anul 2025, folosindu-se materiale premium. Toate instalatiile precum cele sanitare, electrice si termice au fost inlocuite complet, iar apartamentul nu a fost locuit dupa finalizarea renovarii.

Compartimentarea este semidecomandata, iar spatiul interior a fost gandit pentru a imbina esteticul cu utilul. Apartamentul se remarca printr-o amenajare moderna, in stil industrial, realizata in colaborare cu un designer de interior.

Bucataria este complet mobilata si utilata cu electrocasnice moderne si finisaje de inalta calitate.

Locatia ofera acces facil la mijloace de transport in comun, Parcul Tineretului, locuri de joaca pentru copii, crese, gradinite, facultati, Piata Norilor, supermarketuri si numeroase alte puncte de interes.

Toate actele sunt pregatite pentru vanzare, iar proprietatea se preteaza atat pentru locuinta proprie, cat si ca investitie.

Pentru mai multe informatii sau pentru programarea vizionarilor, contactul meu va sta la dispozitie!

FACILITATI

Cablu TV
Curent electric
Interfon
Geamuri termopan
Balcon inchis
Parchet
Apometre
Gresie
Faianta
Calorifere
Mobilat
Bucatarie mobilata
Bloc reabiliat termic
Lift
Broker Imobiliar
Anamaria Enoiu
Consultant imobiliar
0317 xxx xxx
PROPRIETATI SIMILARE
Apartament, 2 camere, 43.2 mp Bucuresti/Tineretului
139.900 €
Supra.
43.2 mp
Etaj
5
An
1961
Apartament, 2 camere, 52 mp Bucuresti/Tineretului
163.000 €
Supra.
52 mp
Etaj
3
An
2017
Apartament, 2 camere, 46.85 mp Bucuresti/Tineretului
137.999 €
Supra.
46.85 mp
Etaj
6
An
1965

LOCALIZARE

Credit ipotecar
Rata lunara: 5.041 LEI Dobanda: 4.97%
PROPRIETATI SIMILARE