Apartament, 4 camere, 98 mp, Bucuresti / Sector 3 / Alba Iulia

  • Zona
    ALBA IULIA
  • Nr.
    4 camere
  • Supra.
    98 mp
  • Etaj
    6
  • An
    2001
PRET VANZARE
350.000 €

DESCRIERE

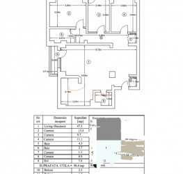
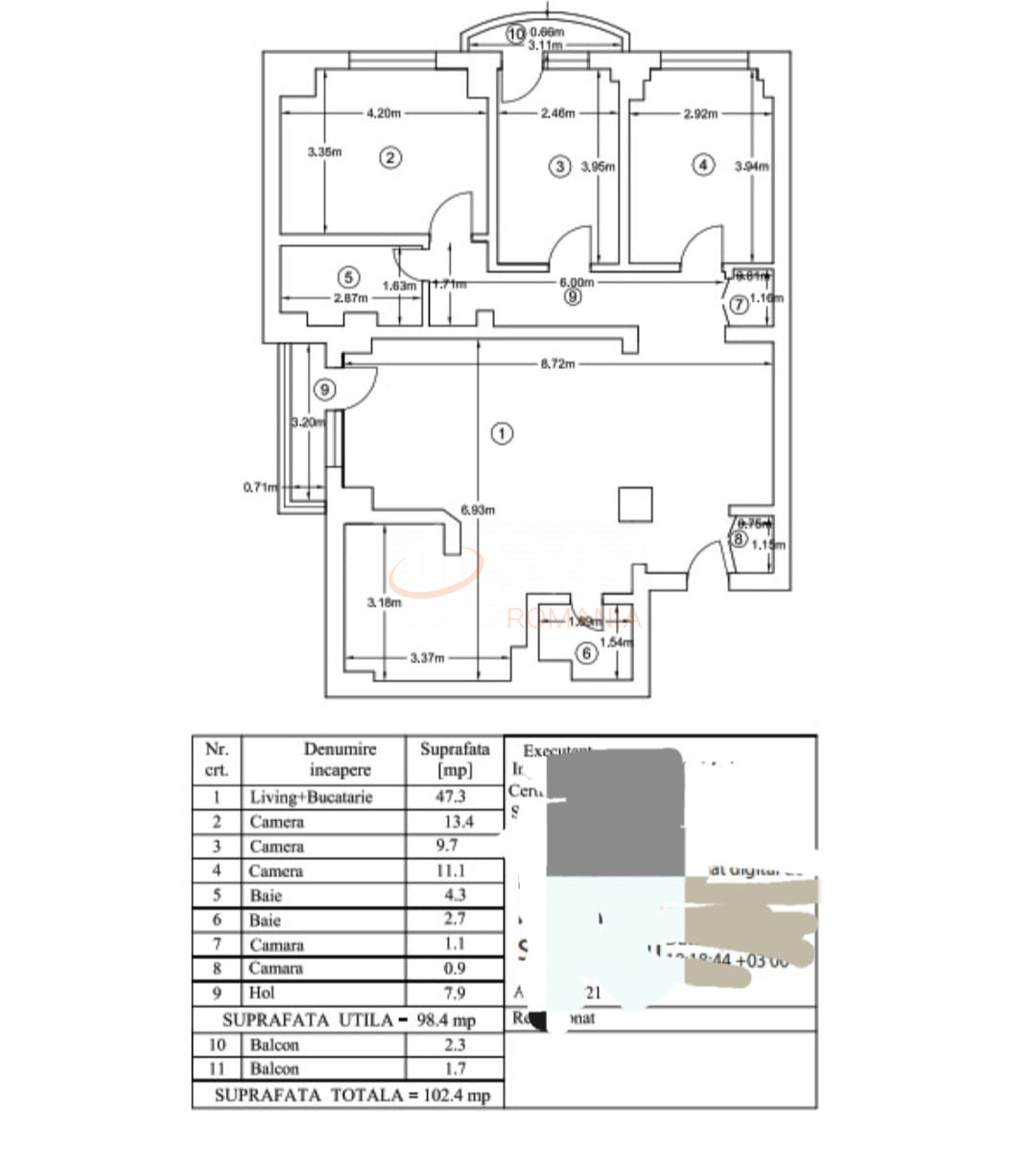
Svn Residentialist va propune spre vanzare un apartament deosebit cu 4 camere, situat in zona rond Alba Iulia – una dintre cele mai cautate si apreciate zone din Bucuresti, cunoscuta pentru eleganta si accesibilitatea sa. Apartamentul are o suprafata utila generoasa de 98 mp, fiind perfect compartimentat pentru a oferi confort si spatiu unei familii moderne.

Locuinta este complet renovata cu materiale de calitate, are doua bai functionale si doua balcoane ce aduc lumina naturala din abundenta in fiecare colt al casei. Designul interior imbina eleganta si functionalitatea, oferind o atmosfera calda si primitoare.

Zona este excelenta, cu acces facil catre Piata Unirii, Bulevardul Decebal si mijloacele de transport in comun, iar in apropiere se afla restaurante, cafenele, scoli si parcuri. Un apartament care imbina perfect confortul urban cu rafinamentul unei locuinte moderne, ideal atat pentru locuit, cat si ca investitie sigura.

Pentru mai multe detalii si vizionari, va stam la dispozitie!

ATRIBUTE

Vechime constructie
Veche
Suprafata construita
112 mp
Suprafata utila
98 mp
Suprafata terasa
4 mp
Regim Inaltime
6 / 10
Etaj
6
Nr. camere
4 camere
Nr. bai
2
Nr. balcoane
2 balcoane
Confort
1
Compartimentare
Decomandat
Tip constructie
In bloc
Status constructie
Finalizat
An constructie
2001
Oras
BUCURESTI
Judet/ Sector
SECTOR 3
Zona
ALBA IULIA
Gps lat
44.426429
Gps lng
26.128595
Primary energy consumption
0.00
Co2 consumption index
0.00
Renewable energy consumption
0.00
Tag
QkVTVCBDSE9JQ0U=

FACILITATI

Curent electric
Geamuri termopan
Balcon inchis
Parchet
Gresie
Faianta
Gaz
Calorifere
WC serviciu
Mobilat
Aer conditionat
Bucatarie mobilata
Lift

ATRIBUTE

Vechime constructie
Veche
Suprafata construita
112 mp
Suprafata utila
98 mp
Suprafata terasa
4 mp
Regim Inaltime
6 / 10
Etaj
6
Nr. camere
4 camere
Nr. bai
2
Nr. balcoane
2 balcoane
Confort
1
Compartimentare
Decomandat
Tip constructie
In bloc
Status constructie
Finalizat
An constructie
2001
Oras
BUCURESTI
Judet/ Sector
SECTOR 3
Zona
ALBA IULIA
Gps lat
44.426429
Gps lng
26.128595
Primary energy consumption
0.00
Co2 consumption index
0.00
Renewable energy consumption
0.00
Tag
QkVTVCBDSE9JQ0U=

DESCRIERE

Svn Residentialist va propune spre vanzare un apartament deosebit cu 4 camere, situat in zona rond Alba Iulia – una dintre cele mai cautate si apreciate zone din Bucuresti, cunoscuta pentru eleganta si accesibilitatea sa. Apartamentul are o suprafata utila generoasa de 98 mp, fiind perfect compartimentat pentru a oferi confort si spatiu unei familii moderne.

Locuinta este complet renovata cu materiale de calitate, are doua bai functionale si doua balcoane ce aduc lumina naturala din abundenta in fiecare colt al casei. Designul interior imbina eleganta si functionalitatea, oferind o atmosfera calda si primitoare.

Zona este excelenta, cu acces facil catre Piata Unirii, Bulevardul Decebal si mijloacele de transport in comun, iar in apropiere se afla restaurante, cafenele, scoli si parcuri. Un apartament care imbina perfect confortul urban cu rafinamentul unei locuinte moderne, ideal atat pentru locuit, cat si ca investitie sigura.

Pentru mai multe detalii si vizionari, va stam la dispozitie!

FACILITATI

Curent electric
Geamuri termopan
Balcon inchis
Parchet
Gresie
Faianta
Gaz
Calorifere
WC serviciu
Mobilat
Aer conditionat
Bucatarie mobilata
Lift
Broker Imobiliar
Nina Noapte
Consultant imobiliar
0317 xxx xxx
PROPRIETATI SIMILARE
Apartament, 4 camere, 98 mp Bucuresti/Alba Iulia
255.000 €
Supra.
98 mp
Etaj
3
An
1996
Apartament, 2 camere, 48 mp Bucuresti/Alba Iulia
200.000 €
Supra.
48 mp
Etaj
2
An
2014
Apartament, 2 camere, 59.55 mp Bucuresti/Alba Iulia
235.000 €
Supra.
59.55 mp
Etaj
1
An
2018
Apartament, 2 camere, 53 mp Bucuresti/Alba Iulia
153.000 €
Supra.
53 mp
Etaj
3
An
1985

LOCALIZARE

Credit ipotecar
Rata lunara: 7.704 LEI Dobanda: 4.97%
PROPRIETATI SIMILARE