Apartament, 2 camere cu loc parcare exterior inclus, Bucuresti / Sector 2 / Tei

  • Zona
    TEI
  • Nr.
    2 camere
  • Supra.
    46 mp
  • Etaj
    2
  • An
    2018
PRET VANZARE
160.000 €

DESCRIERE

SVN Romania va propune spre vanzare un apartament de tip studio dublu, situat in zona Lacul Tei – Pipera, ideal atat pentru rezidenta, cat si pentru investitie.

Proprietatea este amplasata la etajul 2 din 3 al unui imobil de tip boutique, construit in anul 2018, cu un numar restrans de apartamente – doar 10 unitati – ceea ce ofera intimitate si o comunitate bine organizata, cu asociatie de proprietari si costuri reduse de intretinere.

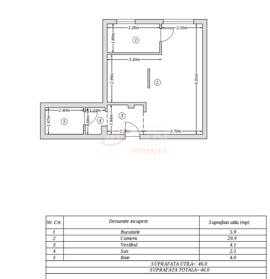
Apartamentul este semidecomandat, are o suprafata utila de 46 mp si se vinde complet mobilat si utilat, fiind gata pentru mutare imediata.

Dotari si beneficii:

centrala termica proprie si incalzire in pardoseala, pentru confort termic sporit;

aer conditionat;

masina de spalat rufe, uscator de rufe si masina de spalat vase;

mobilier si electrocasnice moderne, bine intretinute.

Locuinta beneficiaza de un loc de parcare suprateran, disponibil spre achizitie separat, la pretul de 10.000 euro.

Zona este linistita, verde si cu acces rapid catre toate punctele de interes cotidian. In imediata vecinatate se afla Parcul Petricani, Parcul Lacul Tei si Parcul Plumbuita – excelente pentru relaxare, sport sau plimbari.

De asemenea, se ajunge usor la statia de metrou „Pipera” (aproximativ 20 minute de mers pe jos), la zona de business Barbu Vacarescu – Dimitrie Pompeiu, dar si catre autostrada A3 (acces rapid catre iesirea din oras).

Pentru mai multe informatii sau pentru programarea unei vizionari, va stau cu drag la dispozitie!

ATRIBUTE

Vechime constructie
Veche
Suprafata construita
52.9 mp
Suprafata utila
46 mp
Regim Inaltime
2 / 3
Etaj
2
Nr. camere
2 camere
Nr. bai
1
Nr. balcoane
0 balcoane
Confort
2
Compartimentare
Semidecomandat
Tip constructie
In bloc
Status constructie
Finalizat
An constructie
2018
Oras
BUCURESTI
Judet/ Sector
SECTOR 2
Zona
TEI
Gps lat
44.471802
Gps lng
26.125571
Primary energy consumption
0.00
Co2 consumption index
0.00
Renewable energy consumption
0.00
Tag
QkVTVCBDSE9JQ0U=
Parkings
1

FACILITATI

Supraveghere video
Interfon
Geamuri termopan
Parchet
Apometre
Gresie
Faianta
Gaz
Loc parcare exterior
Incalzire prin pardoseala
Calorifere
Incalzire proprie
Mobilat
Aer conditionat
Bucatarie mobilata
Bloc reabiliat termic
Lift

ATRIBUTE

Vechime constructie
Veche
Suprafata construita
52.9 mp
Suprafata utila
46 mp
Regim Inaltime
2 / 3
Etaj
2
Nr. camere
2 camere
Nr. bai
1
Nr. balcoane
0 balcoane
Confort
2
Compartimentare
Semidecomandat
Tip constructie
In bloc
Status constructie
Finalizat
An constructie
2018
Oras
BUCURESTI
Judet/ Sector
SECTOR 2
Zona
TEI
Gps lat
44.471802
Gps lng
26.125571
Primary energy consumption
0.00
Co2 consumption index
0.00
Renewable energy consumption
0.00
Tag
QkVTVCBDSE9JQ0U=
Parkings
1

DESCRIERE

SVN Romania va propune spre vanzare un apartament de tip studio dublu, situat in zona Lacul Tei – Pipera, ideal atat pentru rezidenta, cat si pentru investitie.

Proprietatea este amplasata la etajul 2 din 3 al unui imobil de tip boutique, construit in anul 2018, cu un numar restrans de apartamente – doar 10 unitati – ceea ce ofera intimitate si o comunitate bine organizata, cu asociatie de proprietari si costuri reduse de intretinere.

Apartamentul este semidecomandat, are o suprafata utila de 46 mp si se vinde complet mobilat si utilat, fiind gata pentru mutare imediata.

Dotari si beneficii:

centrala termica proprie si incalzire in pardoseala, pentru confort termic sporit;

aer conditionat;

masina de spalat rufe, uscator de rufe si masina de spalat vase;

mobilier si electrocasnice moderne, bine intretinute.

Locuinta beneficiaza de un loc de parcare suprateran, disponibil spre achizitie separat, la pretul de 10.000 euro.

Zona este linistita, verde si cu acces rapid catre toate punctele de interes cotidian. In imediata vecinatate se afla Parcul Petricani, Parcul Lacul Tei si Parcul Plumbuita – excelente pentru relaxare, sport sau plimbari.

De asemenea, se ajunge usor la statia de metrou „Pipera” (aproximativ 20 minute de mers pe jos), la zona de business Barbu Vacarescu – Dimitrie Pompeiu, dar si catre autostrada A3 (acces rapid catre iesirea din oras).

Pentru mai multe informatii sau pentru programarea unei vizionari, va stau cu drag la dispozitie!

FACILITATI

Supraveghere video
Interfon
Geamuri termopan
Parchet
Apometre
Gresie
Faianta
Gaz
Loc parcare exterior
Incalzire prin pardoseala
Calorifere
Incalzire proprie
Mobilat
Aer conditionat
Bucatarie mobilata
Bloc reabiliat termic
Lift
Broker Imobiliar
Cristian Vasile
Consultant imobiliar
0317 xxx xxx
PROPRIETATI SIMILARE
Apartament, 2 camere, 57.33 mp Bucuresti/Tei
183.000 €
Supra.
57.33 mp
Etaj
1
An
2018
Apartament, 2 camere, 45.97 mp Bucuresti/Tei
128.500 €
Supra.
45.97 mp
Etaj
3
An
1970
Apartament, 3 camere, 67 mp Bucuresti/Tei
169.500 €
Supra.
67 mp
Etaj
3
An
1980

LOCALIZARE

Credit ipotecar
Rata lunara: 3.522 LEI Dobanda: 4.97%
PROPRIETATI SIMILARE