3 camere in Brick Lofts cu loc parcare subteran inclus, Bucuresti / Sector 2 / Floreasca

  • Zona
    FLOREASCA
  • Nr.
    3 camere
  • Supra.
    95 mp
  • Etaj
    1
  • An
    2023
PRET VANZARE + TVA
420.000 €

DESCRIERE

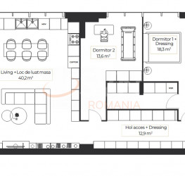
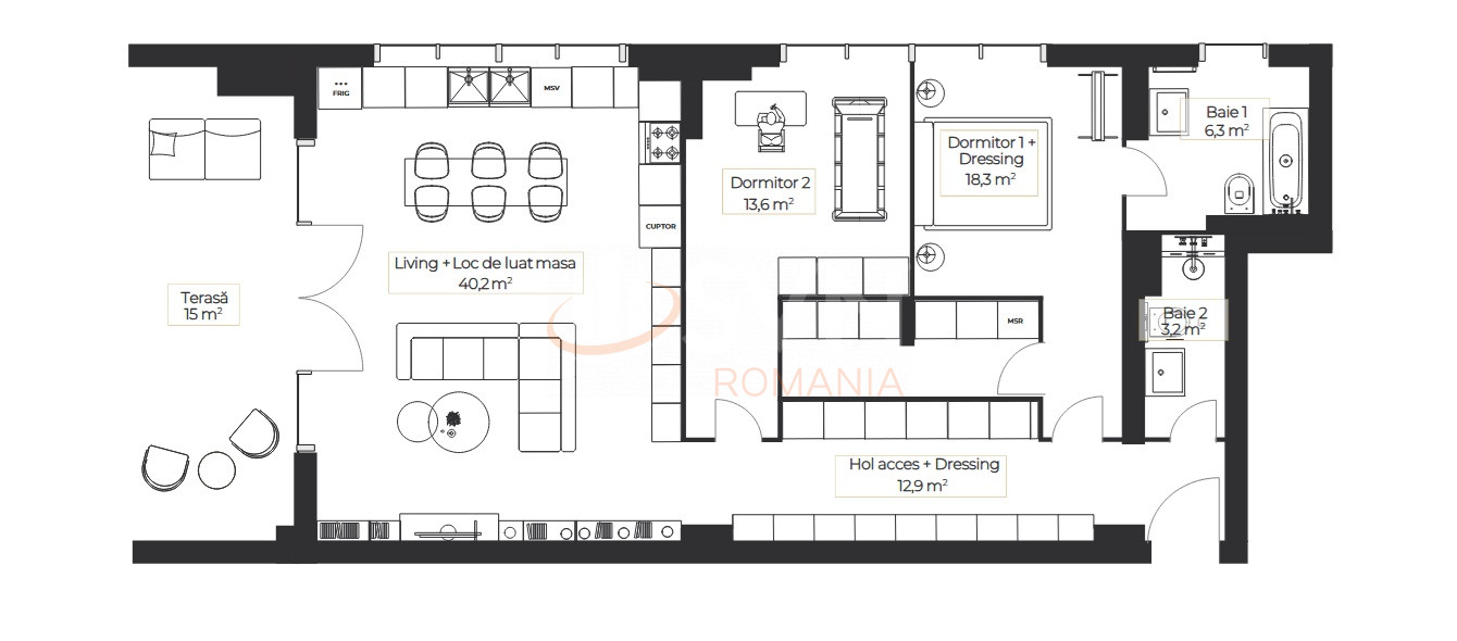
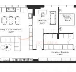
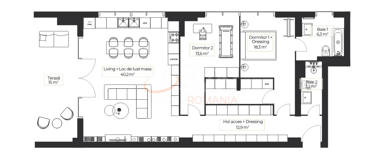
Un apartament rafinat, dispus pe un singur nivel, situat la primul etaj al unui ansamblu rezidential premium din inima cartierului Floreasca, ofera un echilibru perfect intre confort urban si intimitate. Cu o suprafata utila de 95 mp, completata de o terasa de 15 mp, locuinta impresioneaza prin spatiile aerisite si designul modern cu influente industriale, ce combina lumina naturala, volumele generoase si detalii arhitecturale deosebite.

Livingul deschis, cu zona de dining si acces catre terasa, creeaza un spatiu ideal pentru socializare si relaxare. Cele doua dormitoare, dintre care unul cu dressing generos, sunt completate de doua bai elegante, finisate cu materiale premium. Apartamentul se vinde complet mobilat si utilat, fiind pregatit pentru a fi locuit imediat.

Localizarea in Floreasca aduce un stil de viata vibrant, cu acces rapid la restaurante de top, cafenele selecte, centre wellness, parcuri si zone verzi, precum si conexiuni excelente catre principalele puncte de interes ale capitalei. Este o alegere perfecta atat pentru o locuinta personala, cat si pentru investitie, intr-una dintre cele mai cautate si exclusiviste zone ale Bucurestiului.

ATRIBUTE

Vechime constructie
Noua
Suprafata construita
120 mp
Suprafata utila
95 mp
Suprafata terasa
15 mp
Regim Inaltime
1 / 5
Etaj
1
Nr. camere
3 camere
Nr. bai
2
Nr. balcoane
0 balcoane
Confort
Lux
Compartimentare
Decomandat
Tip constructie
In bloc
Status constructie
Finalizat
An constructie
2023
Oras
BUCURESTI
Judet/ Sector
SECTOR 2
Zona
FLOREASCA
Gps lat
44.475155
Gps lng
26.111369
Complex rezidential
Brick Lofts
Nr. terase
1
Energy class
1
Primary energy consumption
0.00
Co2 consumption index
0.00
Renewable energy consumption
0.00
Tag
QkVTVCBDSE9JQ0U=
Parkings
1
Garages
2

FACILITATI

Supraveghere video
Detector de gaze
Interfon
Cablu TV
Curent electric
Internet Wireless
Geamuri termopan
Parchet
Apometre
Gresie
Loc parcare subteran
Faianta
Gaz
Incalzire proprie
Incalzire prin pardoseala
WC serviciu
Mobilat
Aer conditionat
Bucatarie mobilata
Lift

ATRIBUTE

Vechime constructie
Noua
Suprafata construita
120 mp
Suprafata utila
95 mp
Suprafata terasa
15 mp
Regim Inaltime
1 / 5
Etaj
1
Nr. camere
3 camere
Nr. bai
2
Nr. balcoane
0 balcoane
Confort
Lux
Compartimentare
Decomandat
Tip constructie
In bloc
Status constructie
Finalizat
An constructie
2023
Oras
BUCURESTI
Judet/ Sector
SECTOR 2
Zona
FLOREASCA
Gps lat
44.475155
Gps lng
26.111369
Complex rezidential
Brick Lofts
Nr. terase
1
Energy class
1
Primary energy consumption
0.00
Co2 consumption index
0.00
Renewable energy consumption
0.00
Tag
QkVTVCBDSE9JQ0U=
Parkings
1
Garages
2

DESCRIERE

Un apartament rafinat, dispus pe un singur nivel, situat la primul etaj al unui ansamblu rezidential premium din inima cartierului Floreasca, ofera un echilibru perfect intre confort urban si intimitate. Cu o suprafata utila de 95 mp, completata de o terasa de 15 mp, locuinta impresioneaza prin spatiile aerisite si designul modern cu influente industriale, ce combina lumina naturala, volumele generoase si detalii arhitecturale deosebite.

Livingul deschis, cu zona de dining si acces catre terasa, creeaza un spatiu ideal pentru socializare si relaxare. Cele doua dormitoare, dintre care unul cu dressing generos, sunt completate de doua bai elegante, finisate cu materiale premium. Apartamentul se vinde complet mobilat si utilat, fiind pregatit pentru a fi locuit imediat.

Localizarea in Floreasca aduce un stil de viata vibrant, cu acces rapid la restaurante de top, cafenele selecte, centre wellness, parcuri si zone verzi, precum si conexiuni excelente catre principalele puncte de interes ale capitalei. Este o alegere perfecta atat pentru o locuinta personala, cat si pentru investitie, intr-una dintre cele mai cautate si exclusiviste zone ale Bucurestiului.

FACILITATI

Supraveghere video
Detector de gaze
Interfon
Cablu TV
Curent electric
Internet Wireless
Geamuri termopan
Parchet
Apometre
Gresie
Loc parcare subteran
Faianta
Gaz
Incalzire proprie
Incalzire prin pardoseala
WC serviciu
Mobilat
Aer conditionat
Bucatarie mobilata
Lift
Broker Imobiliar
Oana Dumitrascu
Consultant imobiliar
0317 xxx xxx
PROPRIETATI SIMILARE
Apartament, 3 camere in ONE VERDI PARK Bucuresti/Floreasca
453.772 €
Supra.
75.6 mp
Etaj
13
An
2022
Apartament, 3 camere, 102 mp Bucuresti/Floreasca
399.000 €
Supra.
102 mp
Etaj
5
An
2011

LOCALIZARE

Credit ipotecar
Rata lunara: 9.244 LEI Dobanda: 4.97%
PROPRIETATI SIMILARE