Apartament, 2 rooms, 49.4 mp, Bucuresti / Sector 2 / Barbu Vacarescu

  • Zona
    BARBU VACARESCU
  • Rooms
    2 rooms
  • Net
    49.4 mp
  • Floor
    2
  • Const.
    1961
PRET VANZARE
152.990 €

DESCRIERE

SVN Romania va propune spre vanzare un apartament de 2 camere situat pe Barbu Vacarescu, aflat in prag de renovare totala.

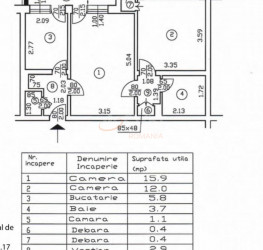
Apartamentul are o suprafata de 49 mp si este amplasat la etajul 2 din 7, intr-un bloc reabilitat termic, expertizat si neincadrat in nicio clasa de risc seismic.

Proprietatea este in prag de renovare completa, lucrarile incluzand inlocuirea integrala a instalatiilor electrice, sanitare si termice, montarea unui parchet nou, usi noi, finisaje moderne si refacerea completa a spatiului interior.

Localizarea este una deosebita: statia de metrou Stefan cel Mare este accesibila in aproximativ 3 minute de mers pe jos. Totodata, Parcul Circului se afla la doar un minut distanta, oferind un spatiu ideal pentru plimbari si relaxare.

Zona este una de interes major, cu acces rapid catre Piata Victoriei, Floreasca, Dorobanti si centrul orasului. In apropiere se regasesc numeroase magazine, restaurante, farmacii, clinici medicale si unitati de invatamant.

Acest apartament reprezinta o optiune excelenta atat pentru locuinta personala, cat si pentru investitie datorita accesibilitatii dar si pozitiei sale centrale.

Pentru mai multe informatii sau pentru programarea vizionarilor, contactul meu va sta la dispozitie!

ATRIBUTE

Construction age
Old
Gross surface
, 56 mp
Net Surface
49.4 mp
Terrace surface
, 5.7 mp
Structure
2 / 7
Floor
2
Rooms
2 rooms
Bathrooms
1
Balconies
1 balcon
Convenience
1
Split
Semidecomandat
Construction type
In bloc
Construction status
Finished
Construction year
1961
Level one location
BUCURESTI
Level two location
SECTOR 2
Level three location
BARBU VACARESCU
Gps lat
44.454372
Gps lng
26.105602
Primary energy consumption
0.00
Co2 consumption index
0.00
Renewable energy consumption
0.00
Tag
QkVTVCBDSE9JQ0U=

FACILITATI

Cablu TV
Curent electric
Interfon
Geamuri termopan
Repartitoare
Balcon inchis
Parchet
Apometre
Gresie
Faianta
Calorifere
Fara imbunatatiri
Bloc reabiliat termic
Lift

ATRIBUTE

Construction age
Old
Gross surface
, 56 mp
Net Surface
49.4 mp
Terrace surface
, 5.7 mp
Structure
2 / 7
Floor
2
Rooms
2 rooms
Bathrooms
1
Balconies
1 balcon
Convenience
1
Split
Semidecomandat
Construction type
In bloc
Construction status
Finished
Construction year
1961
Level one location
BUCURESTI
Level two location
SECTOR 2
Level three location
BARBU VACARESCU
Gps lat
44.454372
Gps lng
26.105602
Primary energy consumption
0.00
Co2 consumption index
0.00
Renewable energy consumption
0.00
Tag
QkVTVCBDSE9JQ0U=

DESCRIERE

SVN Romania va propune spre vanzare un apartament de 2 camere situat pe Barbu Vacarescu, aflat in prag de renovare totala.

Apartamentul are o suprafata de 49 mp si este amplasat la etajul 2 din 7, intr-un bloc reabilitat termic, expertizat si neincadrat in nicio clasa de risc seismic.

Proprietatea este in prag de renovare completa, lucrarile incluzand inlocuirea integrala a instalatiilor electrice, sanitare si termice, montarea unui parchet nou, usi noi, finisaje moderne si refacerea completa a spatiului interior.

Localizarea este una deosebita: statia de metrou Stefan cel Mare este accesibila in aproximativ 3 minute de mers pe jos. Totodata, Parcul Circului se afla la doar un minut distanta, oferind un spatiu ideal pentru plimbari si relaxare.

Zona este una de interes major, cu acces rapid catre Piata Victoriei, Floreasca, Dorobanti si centrul orasului. In apropiere se regasesc numeroase magazine, restaurante, farmacii, clinici medicale si unitati de invatamant.

Acest apartament reprezinta o optiune excelenta atat pentru locuinta personala, cat si pentru investitie datorita accesibilitatii dar si pozitiei sale centrale.

Pentru mai multe informatii sau pentru programarea vizionarilor, contactul meu va sta la dispozitie!

FACILITATI

Cablu TV
Curent electric
Interfon
Geamuri termopan
Repartitoare
Balcon inchis
Parchet
Apometre
Gresie
Faianta
Calorifere
Fara imbunatatiri
Bloc reabiliat termic
Lift
Broker Imobiliar
Anamaria Enoiu
Consultant imobiliar
0317 xxx xxx
PROPRIETATI SIMILARE
Apartament, 2 rooms in The Concord Bucuresti/Barbu Vacarescu
0 €/mp
Net
54.1 mp
Floor
4
Const.
2026
Apartament, 2 rooms in The Concord Bucuresti/Barbu Vacarescu
0 €/mp
Net
54.1 mp
Floor
3
Const.
2026
Apartament, 2 rooms in The Concord Bucuresti/Barbu Vacarescu
0 €/mp
Net
54.1 mp
Floor
3
Const.
2026
Apartament, 2 rooms in The Concord Bucuresti/Barbu Vacarescu
0 €/mp
Net
54.1 mp
Floor
4
Const.
2026
Apartament, 2 rooms in The Concord Bucuresti/Barbu Vacarescu
0 €/mp
Net
63.6 mp
Floor
1
Const.
2026

LOCALIZARE

Loan calculator
Monthly amount: 3.368 LEI Interest rate: 4.97%
PROPRIETATI SIMILARE