Apartament, 4 camere cu loc parcare exterior inclus, Bucuresti / Sector 1 / Dorobanti

  • Zona
    DOROBANTI
  • Nr.
    4 camere
  • Supra.
    97 mp
  • Etaj
    3
  • An
    1980
PRET VANZARE
293.000 €

DESCRIERE

SVN Romania va propune spre vanzare un apartament de 4 camere situat pe Calea Dorobantilor

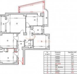
Locuinta este situata la etajul 3/10, semidecomandat, cu o suprafata utila de 97 mp, 2 balcoane generoase si o terasa

Apartamentul a fost reabilitat in anul 2014 , necesita renovare completa

Este situat intr-un imobil fara risc seismic, ideal pentru investitie

Zona beneficiaza de acces rapid la supermarketuri, cafenele, restaurante si diverse servicii, fiind una dintre cele mai apreciate artere din Sectorul 1. Proprietatea este bine conectata la transportul public, cu statia de metrou Piata Romana la aproximativ 10 minute de mers pietonal, precum si multiple linii de autobuz si troleibuz in proximitate. In apropiere se regasesc institutii de invatamant, clinici, sedii de birouri si zone verzi, oferind un echilibru ideal intre rezidential si urban activ.

Pentru mai multe informatii sau pentru programarea vizionarilor, contactul meu va sta la dispozitie

***Vizionarea acestui imobil se face doar în baza semnarii unui acord de vizionare conform codului civil, art 2.096-2.102.

ATRIBUTE

Vechime constructie
Veche
Suprafata construita
111.55 mp
Suprafata utila
97 mp
Suprafata terasa
13 mp
Regim Inaltime
3 / 10
Etaj
3
Nr. camere
4 camere
Nr. bai
1
Nr. balcoane
2 balcoane
Confort
1
Compartimentare
Semidecomandat
Tip constructie
In bloc
Status constructie
Finalizat
An constructie
1980
Oras
BUCURESTI
Judet/ Sector
SECTOR 1
Zona
DOROBANTI
Gps lat
44.448475
Gps lng
26.099569
Nr. terase
1
Primary energy consumption
0.00
Co2 consumption index
0.00
Renewable energy consumption
0.00
Tag
QkVTVCBDSE9JQ0U=

FACILITATI

Cablu TV
Curent electric
Internet prin fibra optica
Internet Wireless
Interfon
Supraveghere video
Geamuri termopan
Balcon inchis
Parchet
Apometre
Gresie
Faianta
Gaz
Loc parcare exterior
Mobilat
Bucatarie mobilata

ATRIBUTE

Vechime constructie
Veche
Suprafata construita
111.55 mp
Suprafata utila
97 mp
Suprafata terasa
13 mp
Regim Inaltime
3 / 10
Etaj
3
Nr. camere
4 camere
Nr. bai
1
Nr. balcoane
2 balcoane
Confort
1
Compartimentare
Semidecomandat
Tip constructie
In bloc
Status constructie
Finalizat
An constructie
1980
Oras
BUCURESTI
Judet/ Sector
SECTOR 1
Zona
DOROBANTI
Gps lat
44.448475
Gps lng
26.099569
Nr. terase
1
Primary energy consumption
0.00
Co2 consumption index
0.00
Renewable energy consumption
0.00
Tag
QkVTVCBDSE9JQ0U=

DESCRIERE

SVN Romania va propune spre vanzare un apartament de 4 camere situat pe Calea Dorobantilor

Locuinta este situata la etajul 3/10, semidecomandat, cu o suprafata utila de 97 mp, 2 balcoane generoase si o terasa

Apartamentul a fost reabilitat in anul 2014 , necesita renovare completa

Este situat intr-un imobil fara risc seismic, ideal pentru investitie

Zona beneficiaza de acces rapid la supermarketuri, cafenele, restaurante si diverse servicii, fiind una dintre cele mai apreciate artere din Sectorul 1. Proprietatea este bine conectata la transportul public, cu statia de metrou Piata Romana la aproximativ 10 minute de mers pietonal, precum si multiple linii de autobuz si troleibuz in proximitate. In apropiere se regasesc institutii de invatamant, clinici, sedii de birouri si zone verzi, oferind un echilibru ideal intre rezidential si urban activ.

Pentru mai multe informatii sau pentru programarea vizionarilor, contactul meu va sta la dispozitie

***Vizionarea acestui imobil se face doar în baza semnarii unui acord de vizionare conform codului civil, art 2.096-2.102.

FACILITATI

Cablu TV
Curent electric
Internet prin fibra optica
Internet Wireless
Interfon
Supraveghere video
Geamuri termopan
Balcon inchis
Parchet
Apometre
Gresie
Faianta
Gaz
Loc parcare exterior
Mobilat
Bucatarie mobilata
Broker Imobiliar
Ramona Badea
Consultant imobiliar
0317 xxx xxx
PROPRIETATI SIMILARE
Apartament, 4 camere, 80.9 mp Bucuresti/Dorobanti
269.000 €
Supra.
80.9 mp
Etaj
4
An
1976
Apartament, 4 camere, 78 mp Bucuresti/Dorobanti
298.000 €
Supra.
78 mp
Etaj
2
An
1976
Apartament, 4 camere, 220 mp Bucuresti/Dorobanti
2.750.000 €
Supra.
220 mp
Etaj
P
An
2025

LOCALIZARE

Credit ipotecar
Rata lunara: 6.449 LEI Dobanda: 4.97%
PROPRIETATI SIMILARE