Apartament, 2 camere, 60 mp, Bucuresti / Sector 1 / Bucurestii Noi

  • Zona
    BUCURESTII NOI
  • Nr.
    2 camere
  • Supra.
    60 mp
  • Etaj
    P
  • An
    2023
PRET VANZARE
136.500 €

DESCRIERE

SVN Residentialist va propune spre vanzare un apartament cochet cu 2 camere, situat la parterul unei vile elegante cu regim de inaltime P+2, amplasata in zona Bucurestii Noi – una dintre cele mai apreciate si verzi zone din nordul Capitalei, la doar cativa pasi de Parcul Bazilescu.

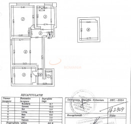
Cu o suprafata utila de 60.9 mp, acest apartament impresioneaza prin spatiul generos, compartimentarea eficienta si luminozitatea naturala. Livingul spatios, dormitorul confortabil si bucataria bine delimitata ofera echilibrul perfect intre functionalitate si confort.

Vila, construita in anul 2000 si renovata integral in 2024, are doar doua apartamente pe nivel, oferind intimitate si liniste, intr-un cadru rezidential placut si bine intretinut.

Localizarea excelenta permite acces rapid catre metrou, scoli, restaurante, magazine si spatii verzi, fiind alegerea ideala atat pentru locuinta personala, cat si pentru investitie.

Va asteptam la vizionare!

ATRIBUTE

Vechime constructie
Noua
Suprafata construita
69 mp
Suprafata utila
60 mp
Suprafata terasa
8.02 mp
Regim Inaltime
P / 2
Etaj
P
Nr. camere
2 camere
Nr. bai
1
Nr. balcoane
1 balcon
Confort
1
Compartimentare
Decomandat
Tip constructie
In vila
Status constructie
Finalizat
An constructie
2023
Oras
BUCURESTI
Judet/ Sector
SECTOR 1
Zona
BUCURESTII NOI
Gps lat
44.485841
Gps lng
26.035238
Primary energy consumption
0.00
Co2 consumption index
0.00
Renewable energy consumption
0.00
Tag
QkVTVCBDSE9JQ0U=

FACILITATI

Curent electric
Interfon
Detector de gaze
Geamuri termopan
Balcon inchis
Parchet
Boxa
Gresie
Telefon
Faianta
Gaz
Incalzire proprie
Calorifere
Aer conditionat

ATRIBUTE

Vechime constructie
Noua
Suprafata construita
69 mp
Suprafata utila
60 mp
Suprafata terasa
8.02 mp
Regim Inaltime
P / 2
Etaj
P
Nr. camere
2 camere
Nr. bai
1
Nr. balcoane
1 balcon
Confort
1
Compartimentare
Decomandat
Tip constructie
In vila
Status constructie
Finalizat
An constructie
2023
Oras
BUCURESTI
Judet/ Sector
SECTOR 1
Zona
BUCURESTII NOI
Gps lat
44.485841
Gps lng
26.035238
Primary energy consumption
0.00
Co2 consumption index
0.00
Renewable energy consumption
0.00
Tag
QkVTVCBDSE9JQ0U=

DESCRIERE

SVN Residentialist va propune spre vanzare un apartament cochet cu 2 camere, situat la parterul unei vile elegante cu regim de inaltime P+2, amplasata in zona Bucurestii Noi – una dintre cele mai apreciate si verzi zone din nordul Capitalei, la doar cativa pasi de Parcul Bazilescu.

Cu o suprafata utila de 60.9 mp, acest apartament impresioneaza prin spatiul generos, compartimentarea eficienta si luminozitatea naturala. Livingul spatios, dormitorul confortabil si bucataria bine delimitata ofera echilibrul perfect intre functionalitate si confort.

Vila, construita in anul 2000 si renovata integral in 2024, are doar doua apartamente pe nivel, oferind intimitate si liniste, intr-un cadru rezidential placut si bine intretinut.

Localizarea excelenta permite acces rapid catre metrou, scoli, restaurante, magazine si spatii verzi, fiind alegerea ideala atat pentru locuinta personala, cat si pentru investitie.

Va asteptam la vizionare!

FACILITATI

Curent electric
Interfon
Detector de gaze
Geamuri termopan
Balcon inchis
Parchet
Boxa
Gresie
Telefon
Faianta
Gaz
Incalzire proprie
Calorifere
Aer conditionat
Broker Imobiliar
Alexandra Duma
Consultant imobiliar
0317 xxx xxx
PROPRIETATI SIMILARE
Apartament, 2 camere, 40 mp Bucuresti/Bucurestii Noi
125.000 €
Supra.
40 mp
Etaj
4
An
2020
Apartament, 2 camere, 61 mp Bucuresti/Bucurestii Noi
137.800 €
Supra.
61 mp
Etaj
2
An
2024
Apartament, 2 camere, 57 mp Bucuresti/Bucurestii Noi
140.900 €
Supra.
57 mp
Etaj
1
An
2024
Apartament, 4 camere, 115.45 mp Bucuresti/Bucurestii Noi
348.000 €
Supra.
115.45 mp
Etaj
P
An
2021

LOCALIZARE

Credit ipotecar
Rata lunara: 3.005 LEI Dobanda: 4.97%
PROPRIETATI SIMILARE