Apartament, 3 camere cu loc parcare subteran inclus, Bucuresti / Sector 1 / Baneasa

  • Zona
    BANEASA
  • Nr.
    3 camere
  • Supra.
    99.57 mp
  • Etaj
    2
  • An
    2011
PRET VANZARE
299.000 €

DESCRIERE

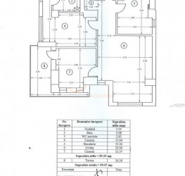
SVN Romania va propune spre vanzare un apartament cu 3 camere situat in cartierul Baneasa, in spatele fostului sediu Antena 1. Proprietatea are o suprafata totala de 99,57 mp, din care 10,38 mp reprezinta suprafata terasei.

Apartamentul este situat la etajul 2 si beneficiaza de o orientare sud-vest, fiind foarte luminos pe tot parcursul zilei. Dispune de finisaje moderne, 2 bai, centrala termica proprie, aer conditionat si bucatarie complet mobilata si utilata.

Mobilierul executat la comanda din sufragerie, bucatarie, dormitor si hol este inclus in pret, oferind un plus de confort si functionalitate.

In plus, apartamentul beneficiaza de un loc de parcare in garajul subteran al cladirii, precum si de o boxa de depozitare, iar blocul este dotat cu lift.

Strada este una linistita, fara trafic intens, aflata in imediata apropiere a lacului Baneasa.

O alegere ideala pentru cei care cauta un spatiu modern, luminos si bine compartimentat intr-o zona linistita si bine conectata.

Pentru mai multe informatii, nu ezitati sa ne contactati.

ATRIBUTE

Vechime constructie
Veche
Suprafata construita
110 mp
Suprafata utila
99.57 mp
Suprafata terasa
10.38 mp
Regim Inaltime
2 / 4
Etaj
2
Nr. camere
3 camere
Nr. bai
2
Nr. balcoane
1 balcon
Confort
1
Compartimentare
Semidecomandat
Tip constructie
Bloc
Status constructie
Finalizat
An constructie
2011
Oras
BUCURESTI
Judet/ Sector
SECTOR 1
Zona
BANEASA
Gps lat
44.493226
Gps lng
26.075001
Primary energy consumption
0.00
Co2 consumption index
0.00
Renewable energy consumption
0.00
Tag
QkVTVCBDSE9JQ0U=
Parkings
1

FACILITATI

Interfon
Geamuri termopan
Parchet
Boxa
Gresie
Loc parcare subteran
Faianta
Gaz
Calorifere
Incalzire proprie
WC serviciu
Aer conditionat
Bucatarie mobilata
Bloc reabiliat termic
Lift

ATRIBUTE

Vechime constructie
Veche
Suprafata construita
110 mp
Suprafata utila
99.57 mp
Suprafata terasa
10.38 mp
Regim Inaltime
2 / 4
Etaj
2
Nr. camere
3 camere
Nr. bai
2
Nr. balcoane
1 balcon
Confort
1
Compartimentare
Semidecomandat
Tip constructie
Bloc
Status constructie
Finalizat
An constructie
2011
Oras
BUCURESTI
Judet/ Sector
SECTOR 1
Zona
BANEASA
Gps lat
44.493226
Gps lng
26.075001
Primary energy consumption
0.00
Co2 consumption index
0.00
Renewable energy consumption
0.00
Tag
QkVTVCBDSE9JQ0U=
Parkings
1

DESCRIERE

SVN Romania va propune spre vanzare un apartament cu 3 camere situat in cartierul Baneasa, in spatele fostului sediu Antena 1. Proprietatea are o suprafata totala de 99,57 mp, din care 10,38 mp reprezinta suprafata terasei.

Apartamentul este situat la etajul 2 si beneficiaza de o orientare sud-vest, fiind foarte luminos pe tot parcursul zilei. Dispune de finisaje moderne, 2 bai, centrala termica proprie, aer conditionat si bucatarie complet mobilata si utilata.

Mobilierul executat la comanda din sufragerie, bucatarie, dormitor si hol este inclus in pret, oferind un plus de confort si functionalitate.

In plus, apartamentul beneficiaza de un loc de parcare in garajul subteran al cladirii, precum si de o boxa de depozitare, iar blocul este dotat cu lift.

Strada este una linistita, fara trafic intens, aflata in imediata apropiere a lacului Baneasa.

O alegere ideala pentru cei care cauta un spatiu modern, luminos si bine compartimentat intr-o zona linistita si bine conectata.

Pentru mai multe informatii, nu ezitati sa ne contactati.

FACILITATI

Interfon
Geamuri termopan
Parchet
Boxa
Gresie
Loc parcare subteran
Faianta
Gaz
Calorifere
Incalzire proprie
WC serviciu
Aer conditionat
Bucatarie mobilata
Bloc reabiliat termic
Lift
Broker Imobiliar
Florin Drutu
Consultant imobiliar
0317 xxx xxx
PROPRIETATI SIMILARE
Apartament, 3 camere, 75 mp Bucuresti/Baneasa
280.000 €
Supra.
75 mp
Etaj
3
An
2020
Apartament, 3 camere, 94 mp Bucuresti/Baneasa
202.000 €
Supra.
94 mp
Etaj
1
An
2021
Apartament, 3 camere, 100 mp Bucuresti/Baneasa
340.000 €
Supra.
100 mp
Etaj
P
An
1991
Apartament, 3 camere, 65 mp Bucuresti/Baneasa
199.000 €
Supra.
65 mp
Etaj
4
An
1983

LOCALIZARE

Credit ipotecar
Rata lunara: 6.581 LEI Dobanda: 4.97%
PROPRIETATI SIMILARE