Apartament, 3 camere cu loc parcare subteran inclus, Bucuresti / Sector 1 / Aviatiei

  • Zona
    AVIATIEI
  • Nr.
    3 camere
  • Supra.
    112 mp
  • Etaj
    P
  • An
    2024
PRET VANZARE + TVA
390.000 €

DESCRIERE

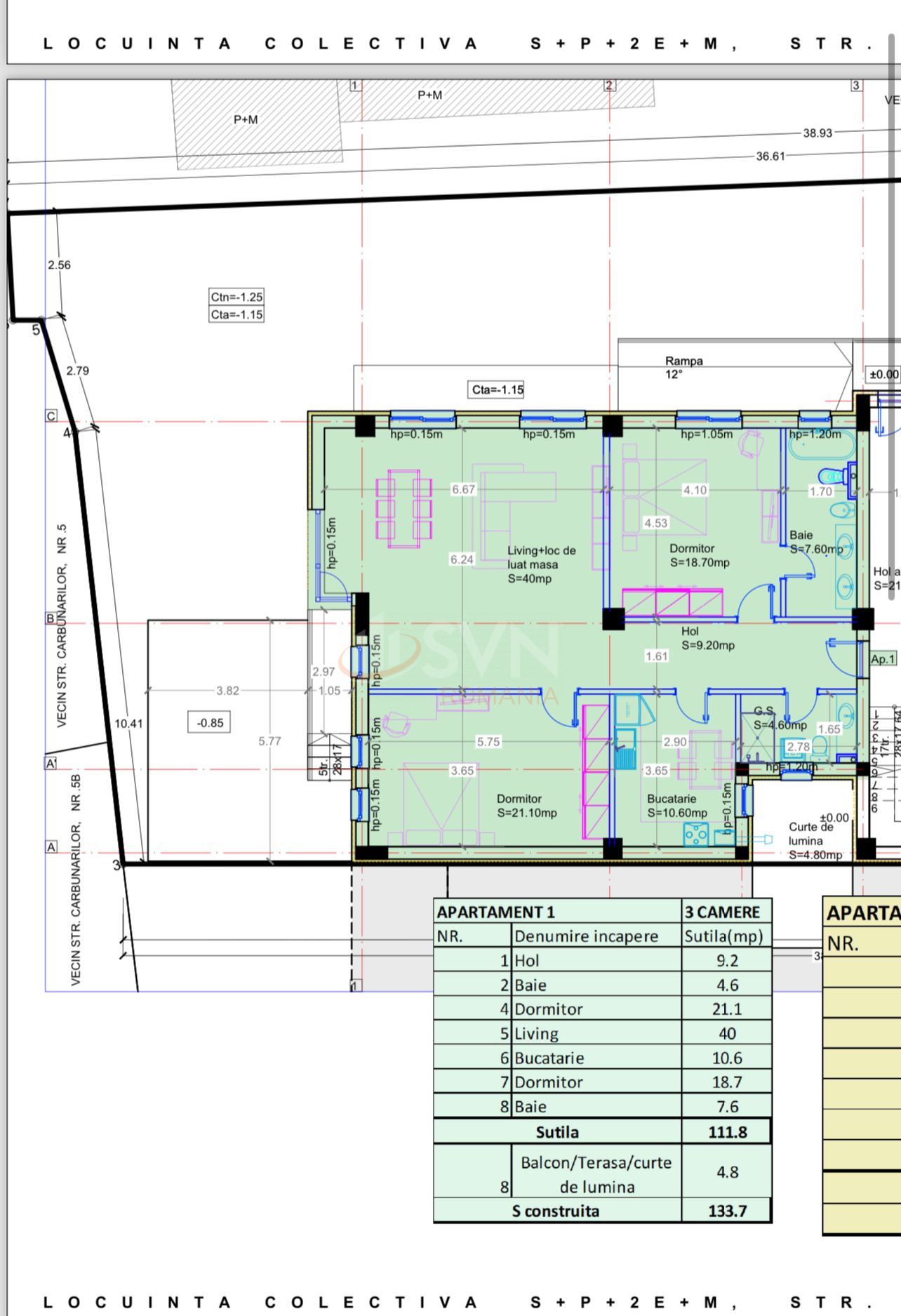
SVN Romania va prezenta un apartament spatios si elegant, situat la parter, cu o suprafata utila de 111.8 mp, balcon de 4.8 mp si o curte privata generoasa de 160 mp – un spatiu ideal pentru relaxare, loc de joaca sau petreceri in aer liber.

Compartimentare:

Hol – 9.2 mp
Baie – 4.6 mp
Dormitor matrimonial – 18.7 mp
Baie matrimoniala – 7.6 mp
Living spatios – 40 mp
Bucatarie inchisa – 10.6 mp
Dormitor secundar – 21 mp

Dotari si finisaje:

-Tamplarie VEKA
-Parchet din lemn natural lipit
-Gresie si faianta moderne
-Incalzire in pardoseala TECE
-Centrala termica proprie Viesmann
-Bucatarie complet mobilata si utilata
-Balcon de 4.8 mp

Ideal pentru:
Familii care doresc un stil de viata confortabil si intim, dar si pentru investitori in cautarea unei proprietati cu randament ridicat la inchiriere.

Pret:
310.000€ + TVA apartamentul
15.000€ + TVA loc de parcare subteran

Pentru mai multe detalii si programari vizionari, nu ezitati sa ne contactati!

ATRIBUTE

Vechime constructie
Noua
Suprafata construita
128 mp
Suprafata utila
112 mp
Suprafata terasa
5 mp
Regim Inaltime
P / 4
Etaj
P
Nr. camere
3 camere
Nr. bai
2
Nr. balcoane
0 balcoane
Confort
1
Compartimentare
Decomandat
Tip constructie
Bloc
Status constructie
Finalizat
An constructie
2024
Oras
BUCURESTI
Judet/ Sector
SECTOR 1
Zona
AVIATIEI
Gps lat
44.491024
Gps lng
26.094682
Nr. terase
1
Primary energy consumption
0.00
Co2 consumption index
0.00
Renewable energy consumption
0.00
Tag
QkVTVCBDSE9JQ0U=

FACILITATI

Cablu TV
Curent electric
Internet prin cablu
Internet Wireless
Interfon
Geamuri termopan
Parchet
Gresie
Telefon
Loc parcare subteran
Faianta
Gaz
Incalzire prin pardoseala
WC serviciu
Mobilat
Aer conditionat
Bucatarie mobilata
Lift

ATRIBUTE

Vechime constructie
Noua
Suprafata construita
128 mp
Suprafata utila
112 mp
Suprafata terasa
5 mp
Regim Inaltime
P / 4
Etaj
P
Nr. camere
3 camere
Nr. bai
2
Nr. balcoane
0 balcoane
Confort
1
Compartimentare
Decomandat
Tip constructie
Bloc
Status constructie
Finalizat
An constructie
2024
Oras
BUCURESTI
Judet/ Sector
SECTOR 1
Zona
AVIATIEI
Gps lat
44.491024
Gps lng
26.094682
Nr. terase
1
Primary energy consumption
0.00
Co2 consumption index
0.00
Renewable energy consumption
0.00
Tag
QkVTVCBDSE9JQ0U=

DESCRIERE

SVN Romania va prezenta un apartament spatios si elegant, situat la parter, cu o suprafata utila de 111.8 mp, balcon de 4.8 mp si o curte privata generoasa de 160 mp – un spatiu ideal pentru relaxare, loc de joaca sau petreceri in aer liber.

Compartimentare:

Hol – 9.2 mp
Baie – 4.6 mp
Dormitor matrimonial – 18.7 mp
Baie matrimoniala – 7.6 mp
Living spatios – 40 mp
Bucatarie inchisa – 10.6 mp
Dormitor secundar – 21 mp

Dotari si finisaje:

-Tamplarie VEKA
-Parchet din lemn natural lipit
-Gresie si faianta moderne
-Incalzire in pardoseala TECE
-Centrala termica proprie Viesmann
-Bucatarie complet mobilata si utilata
-Balcon de 4.8 mp

Ideal pentru:
Familii care doresc un stil de viata confortabil si intim, dar si pentru investitori in cautarea unei proprietati cu randament ridicat la inchiriere.

Pret:
310.000€ + TVA apartamentul
15.000€ + TVA loc de parcare subteran

Pentru mai multe detalii si programari vizionari, nu ezitati sa ne contactati!

FACILITATI

Cablu TV
Curent electric
Internet prin cablu
Internet Wireless
Interfon
Geamuri termopan
Parchet
Gresie
Telefon
Loc parcare subteran
Faianta
Gaz
Incalzire prin pardoseala
WC serviciu
Mobilat
Aer conditionat
Bucatarie mobilata
Lift
Broker Imobiliar
Andrei Haiduc
Consultant imobiliar
0317 xxx xxx
PROPRIETATI SIMILARE
Apartament, 3 camere, 76.1 mp Bucuresti/Aviatiei
404.800 €
Supra.
76.1 mp
Etaj
9
An
2025
Apartament, 3 camere in City Point 2 Bucuresti/Aviatiei
417.000 €
Supra.
122.21 mp
Etaj
11
An
2026
Apartament, 3 camere, 78 mp Bucuresti/Aviatiei
390.000 €
Supra.
78 mp
Etaj
9
An
2025
Apartament, 3 camere, 65 mp Bucuresti/Aviatiei
175.000 €
Supra.
65 mp
Etaj
3
An
1984
Apartament, 3 camere, 80 mp Bucuresti/Aviatiei
202.000 €
Supra.
80 mp
Etaj
3
An
2021

LOCALIZARE

Credit ipotecar
Rata lunara: 8.584 LEI Dobanda: 4.97%
PROPRIETATI SIMILARE