Apartament, 2 camere cu loc parcare subteran inclus, Bucuresti / Sector 1 / Aviatiei

  • Zona
    AVIATIEI
  • Nr.
    2 camere
  • Supra.
    50 mp
  • Etaj
    9
  • An
    2026
PRET VANZARE
190.500 €

DESCRIERE

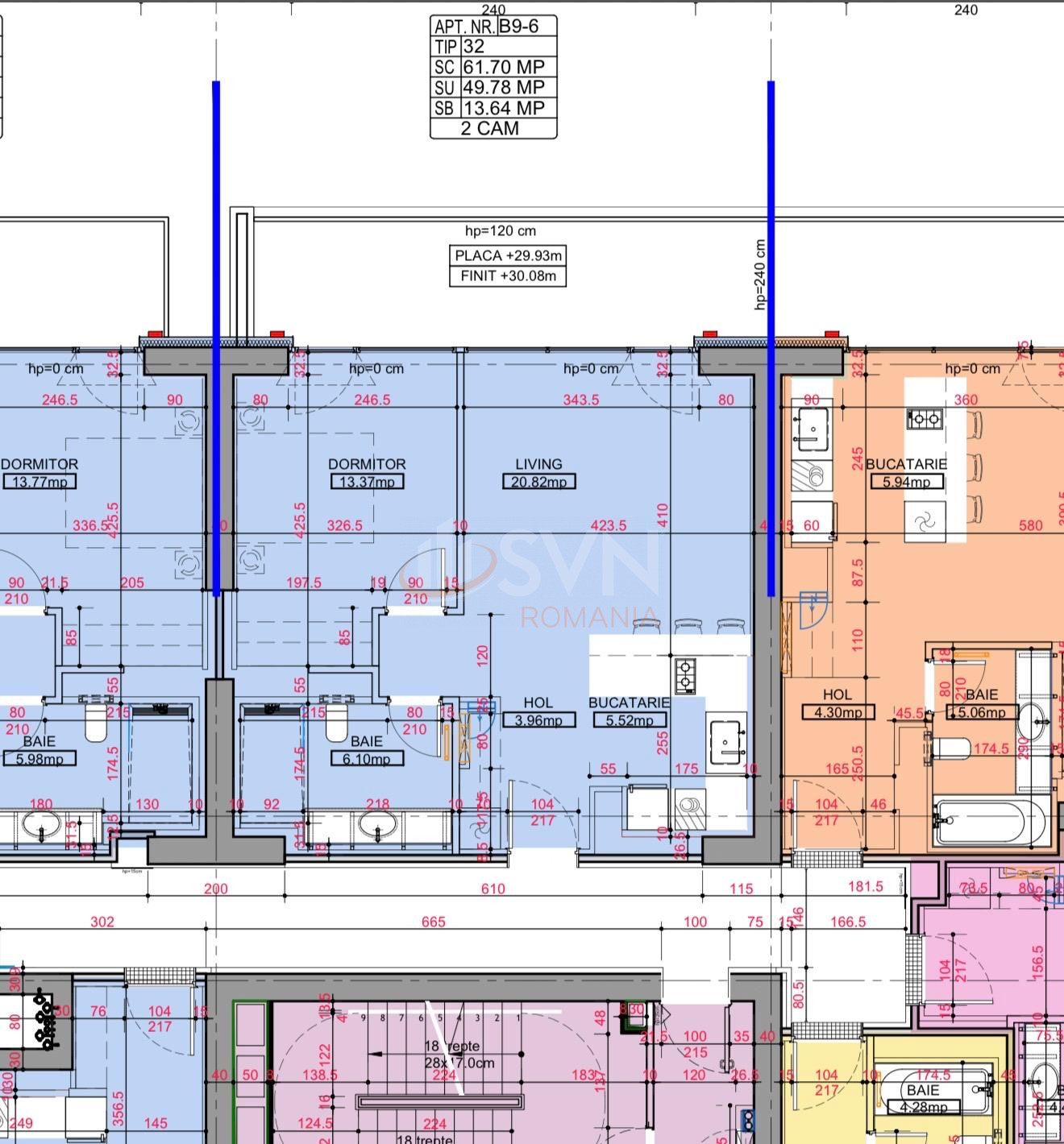
SVN Residentialist va propune spre vanzare un apartament de 2 camere, cu terasa, situat in cadrul ansamblului rezidential ONE HIGH DISTRICT, cu termen estimat de finalizare 1 august 2026. Pretului apartamentului i se adauga TVA 21%.

Acest proiect rezidential redefineste standardele locuirii urbane in nordul orasului Bucuresti, printr-un concept modern ce imbina arhitectura contemporana, eficienta energetica si integrarea generoasa a spatiilor verzi.

Ansamblul ofera locuinte luminoase, cu suprafete eficient compartimentate si privelisti deschise, intr-o comunitate premium ce beneficiaza de facilitati integrate precum spatii comerciale, zona de fitness, locuri de joaca si peste 1.100 de locuri de parcare.

Pozitionarea strategica in zona Floreasca – Barbu Vacarescu – Tei – Pipera asigura acces rapid catre centrele de business, zonele de promenada, restaurante, parcuri si principalele artere ale orasului, transformand proprietatea intr-o alegere excelenta atat pentru locuire, cat si pentru investitie pe termen lung.

Apartamentul este situat la etajul 9 si are o suprafata construita de 62 mp, la care se adauga o terasa de 15 mp. Se vinde impreuna cu un loc de parcare, disponibil la pretul de 23.000 EUR + TVA.

Daca sunteti interesati si doriti mai multe detalii sau programarea unei vizionari, va invitam sa ne contactati.

ATRIBUTE

Vechime constructie
Noua
Suprafata construita
80 mp
Suprafata utila
50 mp
Suprafata terasa
15 mp
Regim Inaltime
9 / 20
Etaj
9
Nr. camere
2 camere
Nr. bai
1
Nr. balcoane
1 balcon
Confort
1
Compartimentare
Semidecomandat
Tip constructie
In bloc
Status constructie
Nefinalizat
An constructie
2026
Oras
BUCURESTI
Judet/ Sector
SECTOR 1
Zona
AVIATIEI
Gps lat
44.478212
Gps lng
26.124042
Energy class
1
Primary energy consumption
0.00
Co2 consumption index
0.00
Renewable energy consumption
0.00
Tag
QkVTVCBDSE9JQ0U=
Parkings
1

FACILITATI

Curent electric
Internet Wireless
Interfon
Supraveghere 24/7
Supraveghere video
Geamuri termopan
Parchet
Apometre
Gresie
Loc parcare subteran
Faianta
Gaz
Incalzire proprie
Incalzire prin pardoseala
Aer conditionat
Lift
Pompe de caldură

ATRIBUTE

Vechime constructie
Noua
Suprafata construita
80 mp
Suprafata utila
50 mp
Suprafata terasa
15 mp
Regim Inaltime
9 / 20
Etaj
9
Nr. camere
2 camere
Nr. bai
1
Nr. balcoane
1 balcon
Confort
1
Compartimentare
Semidecomandat
Tip constructie
In bloc
Status constructie
Nefinalizat
An constructie
2026
Oras
BUCURESTI
Judet/ Sector
SECTOR 1
Zona
AVIATIEI
Gps lat
44.478212
Gps lng
26.124042
Energy class
1
Primary energy consumption
0.00
Co2 consumption index
0.00
Renewable energy consumption
0.00
Tag
QkVTVCBDSE9JQ0U=
Parkings
1

DESCRIERE

SVN Residentialist va propune spre vanzare un apartament de 2 camere, cu terasa, situat in cadrul ansamblului rezidential ONE HIGH DISTRICT, cu termen estimat de finalizare 1 august 2026. Pretului apartamentului i se adauga TVA 21%.

Acest proiect rezidential redefineste standardele locuirii urbane in nordul orasului Bucuresti, printr-un concept modern ce imbina arhitectura contemporana, eficienta energetica si integrarea generoasa a spatiilor verzi.

Ansamblul ofera locuinte luminoase, cu suprafete eficient compartimentate si privelisti deschise, intr-o comunitate premium ce beneficiaza de facilitati integrate precum spatii comerciale, zona de fitness, locuri de joaca si peste 1.100 de locuri de parcare.

Pozitionarea strategica in zona Floreasca – Barbu Vacarescu – Tei – Pipera asigura acces rapid catre centrele de business, zonele de promenada, restaurante, parcuri si principalele artere ale orasului, transformand proprietatea intr-o alegere excelenta atat pentru locuire, cat si pentru investitie pe termen lung.

Apartamentul este situat la etajul 9 si are o suprafata construita de 62 mp, la care se adauga o terasa de 15 mp. Se vinde impreuna cu un loc de parcare, disponibil la pretul de 23.000 EUR + TVA.

Daca sunteti interesati si doriti mai multe detalii sau programarea unei vizionari, va invitam sa ne contactati.

FACILITATI

Curent electric
Internet Wireless
Interfon
Supraveghere 24/7
Supraveghere video
Geamuri termopan
Parchet
Apometre
Gresie
Loc parcare subteran
Faianta
Gaz
Incalzire proprie
Incalzire prin pardoseala
Aer conditionat
Lift
Pompe de caldură
Broker Imobiliar
Oana Dumitrascu
Consultant imobiliar
0317 xxx xxx
PROPRIETATI SIMILARE
Apartament, 2 camere, 48.31 mp Bucuresti/Aviatiei
185.000 €
Supra.
48.31 mp
Etaj
7
An
2016
Apartament, 2 camere, 55 mp Bucuresti/Aviatiei
208.000 €
Supra.
55 mp
Etaj
3
An
2023
Apartament, 2 camere, 50 mp Bucuresti/Aviatiei
175.000 €
Supra.
50 mp
Etaj
1
An
2026

LOCALIZARE

Credit ipotecar
Rata lunara: 4.193 LEI Dobanda: 4.97%
PROPRIETATI SIMILARE