Apartament, 2 camere, 60 mp, Bucuresti / Sector 1 / Aviatiei

  • Zona
    AVIATIEI
  • Nr.
    2 camere
  • Supra.
    60 mp
  • Etaj
    10
  • An
    2025
PRET VANZARE + TVA
199.000 €

DESCRIERE

SVN Residentialist va propune spre vanzare un apartament cu 2 camere, situat in cadrul complexului rezidential Nusco City – Faza 2, unul dintre cele mai bine pozitionate proiecte mixed-use din zona de nord a Capitalei. Proprietatea este amplasata la etajul 10 din 11 si beneficiaza de o vedere libera, orientata spre interiorul ansamblului, oferind liniste si intimitate.

Localizarea este unul dintre principalele avantaje ale acestui apartament, cu acces rapid catre principalele hub-uri de business din Pipera si Aurel Vlaicu, statii de metrou, artere importante precum Soseaua Pipera si iesirea pe Autostrada A3. In imediata apropiere se regasesc Promenada Mall, clinici private de top precum Regina Maria si Medicover, precum si centre comerciale esentiale pentru viata de zi cu zi.

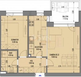
Apartamentul este decomandat, foarte bine compartimentat si are o suprafata utila totala de aproximativ 60 mp. Livingul generos, luminos, ofera acces direct catre balcon si creeaza un spatiu ideal pentru relaxare sau socializare. Bucataria este separata, cu acces propriu pe balcon, fiind delimitata printr-un perete de sticla ce poate fi indepartat pentru obtinerea unui open space modern, daca se doreste. Dormitorul este bine proportionat si ofera confort si intimitate, iar baia este finisata elegant si dotata cu cada. Balconul, cu o suprafata generoasa, permite amenajarea unui spatiu de relaxare in aer liber, perfect pentru momentele de respiro de dupa o zi aglomerata.

Proprietatea beneficiaza de finisaje premium si specificatii tehnice de inalta calitate, de la tamplaria exterioara din aluminiu de performanta ridicata, termoizolatie cu vata minerala bazaltica si fatade ventilate, pana la parchet triplustratificat HARO, ceramica premium import Spania si incalzire in pardoseala. Lifturile de mare viteza, parapetele din sticla securizata si atentia la detalii completeaza standardul ridicat al acestui ansamblu.

Intregul complex este gandit ca un spatiu urban modern, cu strazi interioare cu dublu sens, trotuare generoase, spatii comerciale, zone verzi ample si locuri de joaca pentru copii, oferind un stil de viata echilibrat intre dinamica urbana si confort.

Aceasta proprietate este ideala atat pentru locuire personala, cat si pentru investitie, intr-o zona cu cerere constanta si potential excelent de crestere. Pentru mai multe detalii sau pentru programarea unei vizionari, va invitam sa ne contactati.

ATRIBUTE

Vechime constructie
Noua
Suprafata construita
70 mp
Suprafata utila
60 mp
Regim Inaltime
10 / 11
Etaj
10
Nr. camere
2 camere
Nr. bai
1
Nr. balcoane
1 balcon
Confort
Lux
Compartimentare
Decomandat
Tip constructie
In bloc
Status constructie
Finalizat
An constructie
2025
Oras
BUCURESTI
Judet/ Sector
SECTOR 1
Zona
AVIATIEI
Gps lat
44.481642
Gps lng
26.109293
Primary energy consumption
0.00
Co2 consumption index
0.00
Renewable energy consumption
0.00
Tag
QkVTVCBDSE9JQ0U=

FACILITATI

Supraveghere 24/7
Supraveghere video
Detector de gaze
Interfon
Internet Wireless
Cablu TV
Curent electric
Internet prin cablu
Internet prin fibra optica
Geamuri termopan
Parchet
Apometre
Gresie
Telefon
Faianta
Gaz
Incalzire proprie
Incalzire prin pardoseala
Aer conditionat
Bloc reabiliat termic
Lift

ATRIBUTE

Vechime constructie
Noua
Suprafata construita
70 mp
Suprafata utila
60 mp
Regim Inaltime
10 / 11
Etaj
10
Nr. camere
2 camere
Nr. bai
1
Nr. balcoane
1 balcon
Confort
Lux
Compartimentare
Decomandat
Tip constructie
In bloc
Status constructie
Finalizat
An constructie
2025
Oras
BUCURESTI
Judet/ Sector
SECTOR 1
Zona
AVIATIEI
Gps lat
44.481642
Gps lng
26.109293
Primary energy consumption
0.00
Co2 consumption index
0.00
Renewable energy consumption
0.00
Tag
QkVTVCBDSE9JQ0U=

DESCRIERE

SVN Residentialist va propune spre vanzare un apartament cu 2 camere, situat in cadrul complexului rezidential Nusco City – Faza 2, unul dintre cele mai bine pozitionate proiecte mixed-use din zona de nord a Capitalei. Proprietatea este amplasata la etajul 10 din 11 si beneficiaza de o vedere libera, orientata spre interiorul ansamblului, oferind liniste si intimitate.

Localizarea este unul dintre principalele avantaje ale acestui apartament, cu acces rapid catre principalele hub-uri de business din Pipera si Aurel Vlaicu, statii de metrou, artere importante precum Soseaua Pipera si iesirea pe Autostrada A3. In imediata apropiere se regasesc Promenada Mall, clinici private de top precum Regina Maria si Medicover, precum si centre comerciale esentiale pentru viata de zi cu zi.

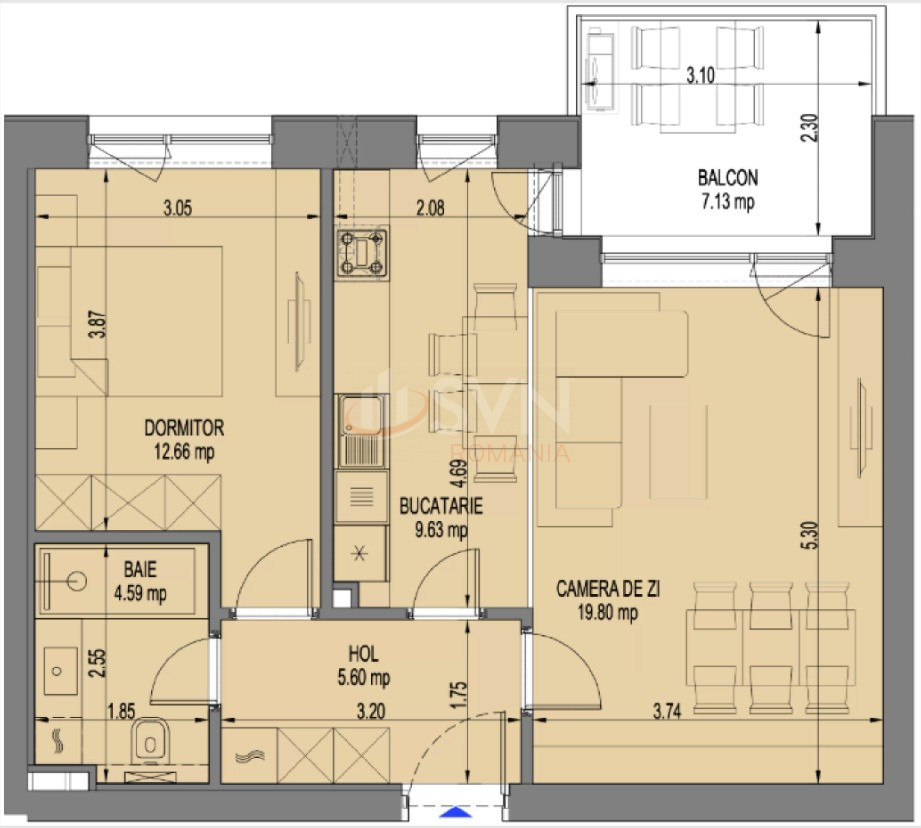
Apartamentul este decomandat, foarte bine compartimentat si are o suprafata utila totala de aproximativ 60 mp. Livingul generos, luminos, ofera acces direct catre balcon si creeaza un spatiu ideal pentru relaxare sau socializare. Bucataria este separata, cu acces propriu pe balcon, fiind delimitata printr-un perete de sticla ce poate fi indepartat pentru obtinerea unui open space modern, daca se doreste. Dormitorul este bine proportionat si ofera confort si intimitate, iar baia este finisata elegant si dotata cu cada. Balconul, cu o suprafata generoasa, permite amenajarea unui spatiu de relaxare in aer liber, perfect pentru momentele de respiro de dupa o zi aglomerata.

Proprietatea beneficiaza de finisaje premium si specificatii tehnice de inalta calitate, de la tamplaria exterioara din aluminiu de performanta ridicata, termoizolatie cu vata minerala bazaltica si fatade ventilate, pana la parchet triplustratificat HARO, ceramica premium import Spania si incalzire in pardoseala. Lifturile de mare viteza, parapetele din sticla securizata si atentia la detalii completeaza standardul ridicat al acestui ansamblu.

Intregul complex este gandit ca un spatiu urban modern, cu strazi interioare cu dublu sens, trotuare generoase, spatii comerciale, zone verzi ample si locuri de joaca pentru copii, oferind un stil de viata echilibrat intre dinamica urbana si confort.

Aceasta proprietate este ideala atat pentru locuire personala, cat si pentru investitie, intr-o zona cu cerere constanta si potential excelent de crestere. Pentru mai multe detalii sau pentru programarea unei vizionari, va invitam sa ne contactati.

FACILITATI

Supraveghere 24/7
Supraveghere video
Detector de gaze
Interfon
Internet Wireless
Cablu TV
Curent electric
Internet prin cablu
Internet prin fibra optica
Geamuri termopan
Parchet
Apometre
Gresie
Telefon
Faianta
Gaz
Incalzire proprie
Incalzire prin pardoseala
Aer conditionat
Bloc reabiliat termic
Lift
Broker Imobiliar
Stefan Pop
Consultant imobiliar
0317 xxx xxx
PROPRIETATI SIMILARE
Apartament, 2 camere, 48.31 mp Bucuresti/Aviatiei
185.000 €
Supra.
48.31 mp
Etaj
7
An
2016
Apartament, 2 camere, 50 mp Bucuresti/Aviatiei
214.900 €
Supra.
50 mp
Etaj
2
An
2022
Apartament, 2 camere, 55 mp Bucuresti/Aviatiei
208.000 €
Supra.
55 mp
Etaj
3
An
2023
Apartament, 2 camere, 49 mp Bucuresti/Aviatiei
188.000 €
Supra.
49 mp
Etaj
9
An
2026

LOCALIZARE

Credit ipotecar
Rata lunara: 4.380 LEI Dobanda: 4.97%
PROPRIETATI SIMILARE