Apartament, 2 camere cu loc parcare subteran inclus, Bucuresti / Sector 1 / Aviatiei

  • Zona
    AVIATIEI
  • Nr.
    2 camere
  • Supra.
    44 mp
  • Etaj
    P
  • An
    2020
PRET VANZARE
178.000 €

DESCRIERE

SVN Residentialist va propune spre achizitionare un apartament, cu mobila si finisaje de calitate, situat in zona Aviatiei.

LOCALIZARE:
Acest imobil este situat in imediata apropiere de urmatoarele puncte: Floreasca, Aviatiei, Promenada, Baneasa.
In proximitate se afla si principalele hub-uri comerciale si de birouri ale Bucurestiului.

COMPARTIMENTARE:
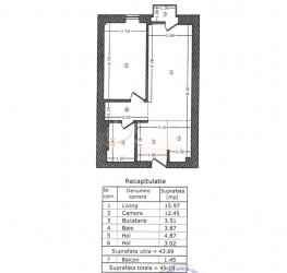
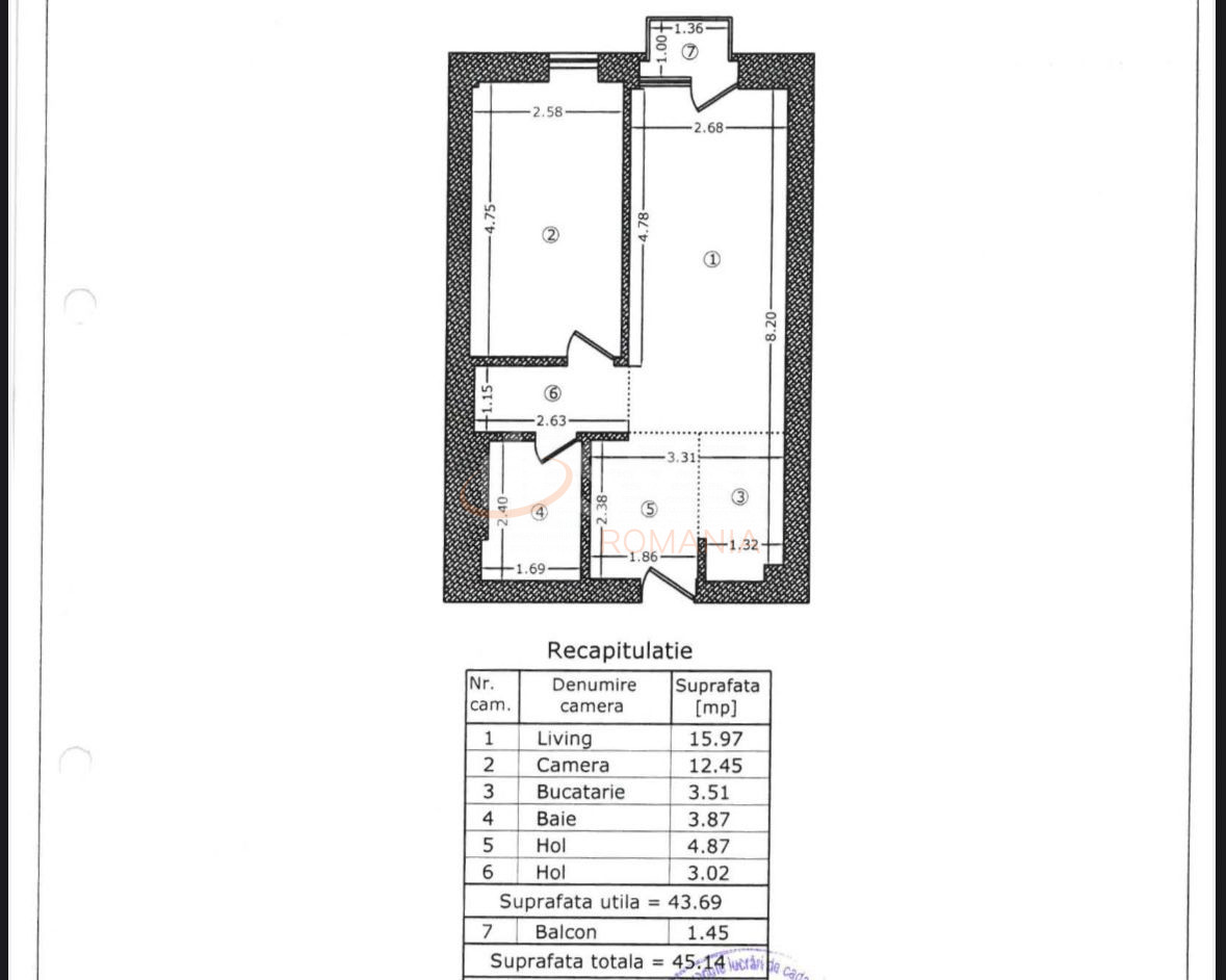
Proprietatea este dispusa pe 2 camere:
Living-ul cu suprafete vitrate mari, bucatarie open space ce contine: plita, cuptor, hota, combina frigorifica,zona dining, acces in terasa,
dormitorul cu dressing
baie


DOTARI
Proprietatea detine:
- incalzire in pardoseala
- tamplarie de cea mai inalta calitate din aluminiu, geam tripan cu 5 camere de izolare fonica
- usa metalica;
- aer conditionat
- parchet triplustratificat

Apartamentul detine si loc de parcare la pretul de 22.000 euro

Imobilul are o calitate superioara, fatada ventilata, ce ajuta cladirea in pastrarea unui aspect placut pe termen lung, dar asigura si o izolatie mult mai buna.


Cu deosebita consideratie,
Echipa SVN Residentialist

ATRIBUTE

Vechime constructie
Noua
Suprafata construita
55 mp
Suprafata utila
44 mp
Regim Inaltime
P / 1
Etaj
P
Nr. camere
2 camere
Nr. bai
1
Nr. balcoane
0 balcoane
Confort
1
Compartimentare
Semidecomandat
Tip constructie
In bloc
Status constructie
Finalizat
An constructie
2020
Oras
BUCURESTI
Judet/ Sector
SECTOR 1
Zona
AVIATIEI
Gps lat
44.488206
Gps lng
26.093260
Nr. terase
1
Primary energy consumption
0.00
Co2 consumption index
0.00
Renewable energy consumption
0.00
Tag
QkVTVCBDSE9JQ0U=
Parkings
1

FACILITATI

Sistem de alarma
Interfon
Curent electric
Cablu TV
Geamuri termopan
Repartitoare
Parchet
Apometre
Gresie
Telefon
Loc parcare subteran
Faianta
Gaz
Incalzire proprie
Incalzire prin pardoseala
Mobilat
Aer conditionat
Bucatarie mobilata

ATRIBUTE

Vechime constructie
Noua
Suprafata construita
55 mp
Suprafata utila
44 mp
Regim Inaltime
P / 1
Etaj
P
Nr. camere
2 camere
Nr. bai
1
Nr. balcoane
0 balcoane
Confort
1
Compartimentare
Semidecomandat
Tip constructie
In bloc
Status constructie
Finalizat
An constructie
2020
Oras
BUCURESTI
Judet/ Sector
SECTOR 1
Zona
AVIATIEI
Gps lat
44.488206
Gps lng
26.093260
Nr. terase
1
Primary energy consumption
0.00
Co2 consumption index
0.00
Renewable energy consumption
0.00
Tag
QkVTVCBDSE9JQ0U=
Parkings
1

DESCRIERE

SVN Residentialist va propune spre achizitionare un apartament, cu mobila si finisaje de calitate, situat in zona Aviatiei.

LOCALIZARE:
Acest imobil este situat in imediata apropiere de urmatoarele puncte: Floreasca, Aviatiei, Promenada, Baneasa.
In proximitate se afla si principalele hub-uri comerciale si de birouri ale Bucurestiului.

COMPARTIMENTARE:
Proprietatea este dispusa pe 2 camere:
Living-ul cu suprafete vitrate mari, bucatarie open space ce contine: plita, cuptor, hota, combina frigorifica,zona dining, acces in terasa,
dormitorul cu dressing
baie


DOTARI
Proprietatea detine:
- incalzire in pardoseala
- tamplarie de cea mai inalta calitate din aluminiu, geam tripan cu 5 camere de izolare fonica
- usa metalica;
- aer conditionat
- parchet triplustratificat

Apartamentul detine si loc de parcare la pretul de 22.000 euro

Imobilul are o calitate superioara, fatada ventilata, ce ajuta cladirea in pastrarea unui aspect placut pe termen lung, dar asigura si o izolatie mult mai buna.


Cu deosebita consideratie,
Echipa SVN Residentialist

FACILITATI

Sistem de alarma
Interfon
Curent electric
Cablu TV
Geamuri termopan
Repartitoare
Parchet
Apometre
Gresie
Telefon
Loc parcare subteran
Faianta
Gaz
Incalzire proprie
Incalzire prin pardoseala
Mobilat
Aer conditionat
Bucatarie mobilata
Broker Imobiliar
Claudia Gavrila
Consultant imobiliar
0317 xxx xxx
PROPRIETATI SIMILARE
Apartament, 2 camere, 48.31 mp Bucuresti/Aviatiei
180.000 €
Supra.
48.31 mp
Etaj
7
An
2016
Apartament, 2 camere, 44.43 mp Bucuresti/Aviatiei
181.000 €
Supra.
44.43 mp
Etaj
1
An
2019
Apartament, 2 camere, 66.08 mp Bucuresti/Aviatiei
176.000 €
Supra.
66.08 mp
Etaj
3
An
1990

LOCALIZARE

Credit ipotecar
Rata lunara: 3.918 LEI Dobanda: 4.97%
PROPRIETATI SIMILARE