Teren 474 mp, Bucuresti / Sector 2 / Floreasca

  • Zona
    FLOREASCA
  • Supra.
    474 mp
PRET VANZARE
1.190.000 €

DESCRIERE

SVN va propune spre vanzare situat in zona Floreasca.

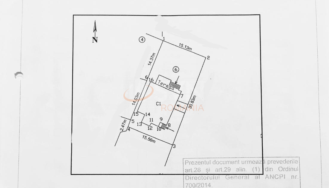
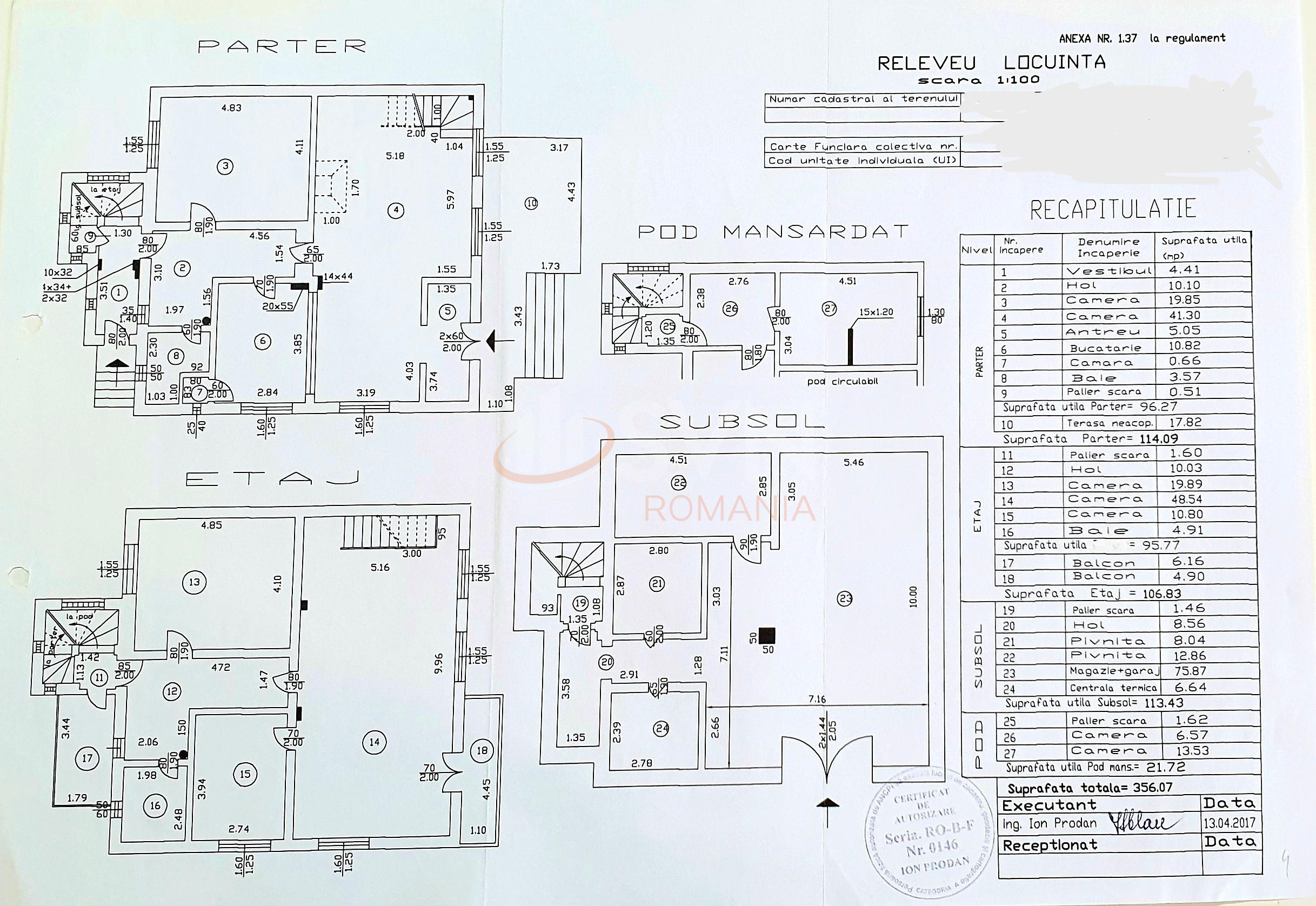
Terenul are o suprafat de 474 mp si in momentul de fata pe teren se afla o casa demolabila cu o amprenta de 126 mp.

Casa a fost contruita in 1998 desfasurata pe S+P+1E+M cu o suprafata construita de 393 mp.

Terenul are un certificat de urbanism din 15.07.2024 pentru demolarea constructiei existente si construirea unui imobil de locuinte colective cu regim de inaltime S+P+3E+4R.

Terenul are un POT de 60% si un CUT de 2.5 mp.

Pentru mai multe detalii sau vizionari nu ezitati sa ne contactati!

ATRIBUTE

Suprafata
474 mp
POT
60
CUT
2.50
Regim de inaltime
UytQKzMrNHI=
Oras
BUCURESTI
Judet/ Sector
SECTOR 2
Zona
FLOREASCA
Gps lat
44.471220
Gps lng
26.105166
Tag
SU5WRVNUIE9QT1JUVU5JVFk=

ATRIBUTE

Suprafata
474 mp
POT
60
CUT
2.50
Regim de inaltime
UytQKzMrNHI=
Oras
BUCURESTI
Judet/ Sector
SECTOR 2
Zona
FLOREASCA
Gps lat
44.471220
Gps lng
26.105166
Tag
SU5WRVNUIE9QT1JUVU5JVFk=

DESCRIERE

SVN va propune spre vanzare situat in zona Floreasca.

Terenul are o suprafat de 474 mp si in momentul de fata pe teren se afla o casa demolabila cu o amprenta de 126 mp.

Casa a fost contruita in 1998 desfasurata pe S+P+1E+M cu o suprafata construita de 393 mp.

Terenul are un certificat de urbanism din 15.07.2024 pentru demolarea constructiei existente si construirea unui imobil de locuinte colective cu regim de inaltime S+P+3E+4R.

Terenul are un POT de 60% si un CUT de 2.5 mp.

Pentru mai multe detalii sau vizionari nu ezitati sa ne contactati!
Broker Imobiliar
Iustina Dragu
Consultant imobiliar
0317 xxx xxx
PROPRIETATI SIMILARE

LOCALIZARE

Credit ipotecar
Rata lunara: 26.192 LEI Dobanda: 4.97%
PROPRIETATI SIMILARE