Spatiu comercial cu loc parcare exterior inclus, Bucuresti / Sector 3 / Mihai Bravu (s3)

  • Zona
    MIHAI BRAVU (S3)
PRET VANZARE + TVA
310.000 €

DESCRIERE

SVN Pipera va ofera spre vanzare un spatiu comercial in suprafata totala de 154 mp situat la parterul unui bloc langa metrou Mihai Bravu.

Spatiul se preda la rosu astfel:

Pardoseli cu sapa din ciment turnata conform cu normativele de rezistenta mecanica in vigoare;

Baie cu instalatie sanitara;

Contor curent si apometru apa;

Instalatia electrica, sistemul de incalzire, sistemul de ventilatie se realizeaza separat in functie de proiect.

Daca se doreste coordonarea realizarii intregului proiect de amenajare, se ofera asistenta atat in privinta alegerilor optiunilor tehnice de amenajare, cat si la realizarea lor prin intermediul firmelor contractante care sa asigure un cost si o calitate corespunzatoare.

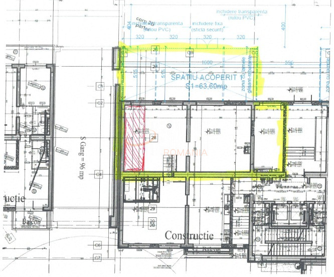
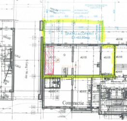
Pe schita atasata, culoarea galbena delimiteaza spatiul comercial, hasurat in culoarea rosie este zona de toaleta.

SVN Residentialist Pipera va asteapta la vizionare.

ATRIBUTE

Regim Inaltime
P / P + 18
Etaj
P
Nr. bai
1
Suprafata comerciala
154
Suprafata depozit
20
Deschidere fereastra
5.00
Oras
BUCURESTI
Judet/ Sector
SECTOR 3
Zona
MIHAI BRAVU (S3)
Gps lat
44.413271
Gps lng
26.125771
Nr. terase
1
Primary energy consumption
0.00
Co2 consumption index
0.00
Renewable energy consumption
0.00
Commercial space type
Bloc
Tag
SU5WRVNUIE9QT1JUVU5JVFk=
Parkings
4

FACILITATI

Cablu TV
Curent electric
Internet prin fibra optica
Internet Wireless
Interfon
Detector de gaze
Supraveghere 24/7
Geamuri termopan
Balcon inchis
Gaz
Loc parcare exterior
Incalzire proprie

ATRIBUTE

Regim Inaltime
P / P + 18
Etaj
P
Nr. bai
1
Suprafata comerciala
154
Suprafata depozit
20
Deschidere fereastra
5.00
Oras
BUCURESTI
Judet/ Sector
SECTOR 3
Zona
MIHAI BRAVU (S3)
Gps lat
44.413271
Gps lng
26.125771
Nr. terase
1
Primary energy consumption
0.00
Co2 consumption index
0.00
Renewable energy consumption
0.00
Commercial space type
Bloc
Tag
SU5WRVNUIE9QT1JUVU5JVFk=
Parkings
4

DESCRIERE

SVN Pipera va ofera spre vanzare un spatiu comercial in suprafata totala de 154 mp situat la parterul unui bloc langa metrou Mihai Bravu.

Spatiul se preda la rosu astfel:

Pardoseli cu sapa din ciment turnata conform cu normativele de rezistenta mecanica in vigoare;

Baie cu instalatie sanitara;

Contor curent si apometru apa;

Instalatia electrica, sistemul de incalzire, sistemul de ventilatie se realizeaza separat in functie de proiect.

Daca se doreste coordonarea realizarii intregului proiect de amenajare, se ofera asistenta atat in privinta alegerilor optiunilor tehnice de amenajare, cat si la realizarea lor prin intermediul firmelor contractante care sa asigure un cost si o calitate corespunzatoare.

Pe schita atasata, culoarea galbena delimiteaza spatiul comercial, hasurat in culoarea rosie este zona de toaleta.

SVN Residentialist Pipera va asteapta la vizionare.

FACILITATI

Cablu TV
Curent electric
Internet prin fibra optica
Internet Wireless
Interfon
Detector de gaze
Supraveghere 24/7
Geamuri termopan
Balcon inchis
Gaz
Loc parcare exterior
Incalzire proprie
Broker Imobiliar
Bogdan Tampau
Consultant imobiliar
0317 xxx xxx
PROPRIETATI SIMILARE

LOCALIZARE

Credit ipotecar
Rata lunara: 6.823 LEI Dobanda: 4.97%
PROPRIETATI SIMILARE