Spatiu comercial cu loc parcare exterior inclus, Ilfov / Est / Voluntari

  • Zona
    VOLUNTARI
PRET VANZARE + TVA
374.900 €

DESCRIERE

SVN Residentialist Pipera va propune spre vanzare un spatiu comercial situat la etajul 1 al unui imobil P+2. Proprietatea este potrivita pentru diverse activitati precum salon de infrumusetare, sala de antrenament, birouri sau alte servicii comerciale. Spatiul dispune de instalatie de gaz proprie si este format din doua unitati separate printr-un perete de rigips, care pot fi achizitionate impreuna sau individual, in functie de nevoile cumparatorului.

Etajul beneficiaza de un flux redus de persoane, existand doar doua unitati, ceea ce asigura intimitate si un mediu de lucru linistit. Proprietatea dispune si de 4 locuri de parcare dedicate, un avantaj important pentru angajati, clienti sau colaboratori.

Amplasarea este excelenta: imobilul se afla la aproximativ 100 de metri de intrarea pe autostrada Bucuresti–Ploiesti, iar statia de autobuz este situata chiar in fata cladirii, oferind acces facil la mijloacele de transport in comun. De asemenea, cladirea este dotata cu sistem de supraveghere video, asigurand un nivel ridicat de siguranta.

La parterul imobilului functioneaza un Mega Image cu program pana la ora 24:00, iar dupa aceasta ora accesul in cladire se face doar pe baza de chei, moment din care sistemul de alarma se activeaza automat.

Pretul este afisat cu TVA inclus, iar proprietatea permite regim de taxare inversa, oferind flexibilitate pentru persoanele juridice. Este o oportunitate excelenta pentru investitori sau antreprenori care cauta un spatiu versatil, usor accesibil si cu vizibilitate foarte buna.

SVN Residentialist Pipera va asteapta la vizionare.

ATRIBUTE

Regim Inaltime
1 / P + 2
Etaj
1
Nr. bai
2
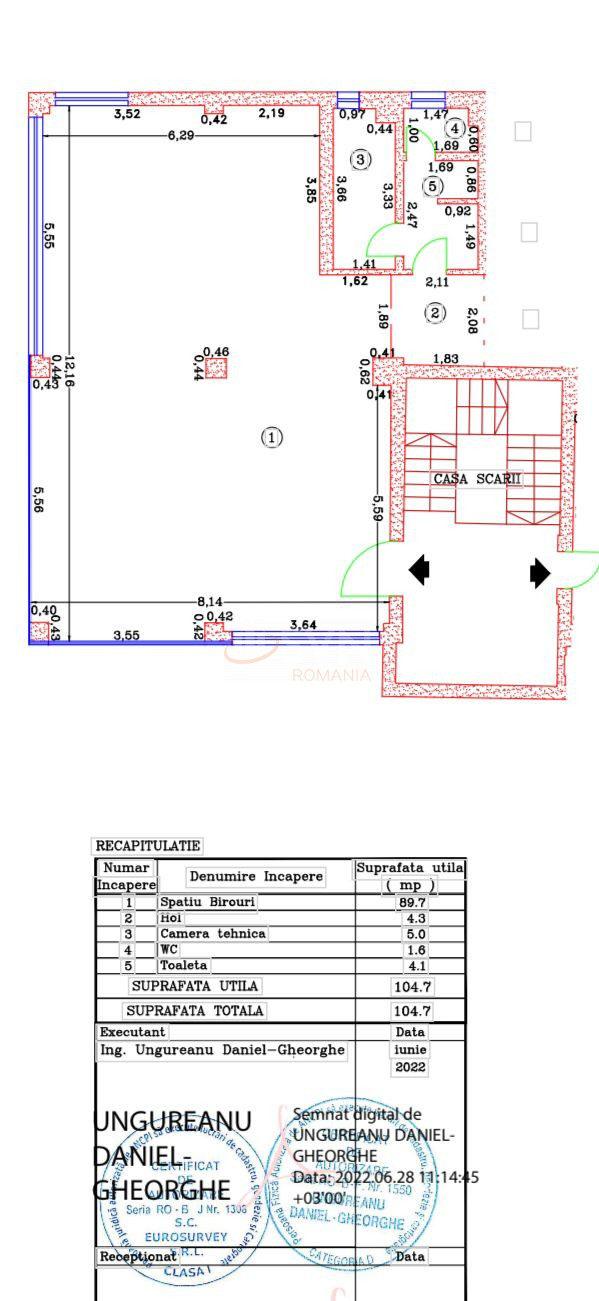
Suprafata comerciala
212.08 mp
Deschidere fereastra
0.00
Oras
ILFOV
Judet/ Sector
EST
Zona
VOLUNTARI
Gps lat
44.494536
Gps lng
26.145279
Primary energy consumption
0.00
Co2 consumption index
0.00
Renewable energy consumption
0.00
Commercial space type
Cladire de birouri
Tag
SU5WRVNUIE9QT1JUVU5JVFk=
Parkings
4

FACILITATI

Curent electric
Sistem de alarma
Supraveghere video
Spatiu de depozitare
Supraveghere 24/7
Geamuri termopan
Parchet
Gresie
Faianta
Loc parcare exterior
WC serviciu
Aer conditionat

ATRIBUTE

Regim Inaltime
1 / P + 2
Etaj
1
Nr. bai
2
Suprafata comerciala
212.08 mp
Deschidere fereastra
0.00
Oras
ILFOV
Judet/ Sector
EST
Zona
VOLUNTARI
Gps lat
44.494536
Gps lng
26.145279
Primary energy consumption
0.00
Co2 consumption index
0.00
Renewable energy consumption
0.00
Commercial space type
Cladire de birouri
Tag
SU5WRVNUIE9QT1JUVU5JVFk=
Parkings
4

DESCRIERE

SVN Residentialist Pipera va propune spre vanzare un spatiu comercial situat la etajul 1 al unui imobil P+2. Proprietatea este potrivita pentru diverse activitati precum salon de infrumusetare, sala de antrenament, birouri sau alte servicii comerciale. Spatiul dispune de instalatie de gaz proprie si este format din doua unitati separate printr-un perete de rigips, care pot fi achizitionate impreuna sau individual, in functie de nevoile cumparatorului.

Etajul beneficiaza de un flux redus de persoane, existand doar doua unitati, ceea ce asigura intimitate si un mediu de lucru linistit. Proprietatea dispune si de 4 locuri de parcare dedicate, un avantaj important pentru angajati, clienti sau colaboratori.

Amplasarea este excelenta: imobilul se afla la aproximativ 100 de metri de intrarea pe autostrada Bucuresti–Ploiesti, iar statia de autobuz este situata chiar in fata cladirii, oferind acces facil la mijloacele de transport in comun. De asemenea, cladirea este dotata cu sistem de supraveghere video, asigurand un nivel ridicat de siguranta.

La parterul imobilului functioneaza un Mega Image cu program pana la ora 24:00, iar dupa aceasta ora accesul in cladire se face doar pe baza de chei, moment din care sistemul de alarma se activeaza automat.

Pretul este afisat cu TVA inclus, iar proprietatea permite regim de taxare inversa, oferind flexibilitate pentru persoanele juridice. Este o oportunitate excelenta pentru investitori sau antreprenori care cauta un spatiu versatil, usor accesibil si cu vizibilitate foarte buna.

SVN Residentialist Pipera va asteapta la vizionare.

FACILITATI

Curent electric
Sistem de alarma
Supraveghere video
Spatiu de depozitare
Supraveghere 24/7
Geamuri termopan
Parchet
Gresie
Faianta
Loc parcare exterior
WC serviciu
Aer conditionat
Broker Imobiliar
Bianca Moisa
Consultant imobiliar
0317 xxx xxx
PROPRIETATI SIMILARE

LOCALIZARE

Credit ipotecar
Rata lunara: 8.252 LEI Dobanda: 4.97%
PROPRIETATI SIMILARE