Spatiu comercial, Bucuresti / Sector 4 / Cantemir

  • Zona
    CANTEMIR
PRET INCHIRIERE
3.000 €/luna

DESCRIERE

SVN Residentiaist Floreasca va prezinta spre inchiriere parterul unei vile interbelice in stil baroc, situata in zona Budapesta — un spatiu impresionant prin eleganta si rafinament, ideal pentru un concept HoReCa premium sau o investitie sigura.

Parterul gazduieste un restaurant de lux complet echipat, pregatit pentru preluare imediata. Spatiul functioneaza intr-un cadru deosebit, beneficiind de o terasa spatioasa si de toate autorizatiile necesare desfasurarii activitatii. Este alegerea perfecta pentru un operator care isi doreste o locatie reprezentativa, gata de utilizare.

Reconsolidata in anul 2008, proprietatea imbina farmecul arhitecturii istorice cu dotari moderne si finisaje de lux, care sporesc valoarea si atractivitatea spatiului.

Intrarea separata si contorizarea individuala pentru utilitati ofera flexibilitate si transparenta in administrare, facand din aceasta proprietate o solutie excelenta pentru activitati din segmentul HoReCa.

Cu o deschidere generoasa de 15 metri la strada, spatiul beneficiaza de vizibilitate excelenta, atragand un flux constant de clienti si oferind premise solide pentru succesul afacerii.

Exista, de asemenea, posibilitatea de achizitie a intregului imobil, valoarea acestuia fiind de 650.000 Euro.

Pentru mai multe detalii si pentru organizarea unei vizionari, va invitam sa ne contactati!

ATRIBUTE

Regim Inaltime
P / S + P + 2
Etaj
P
Nr. bai
3
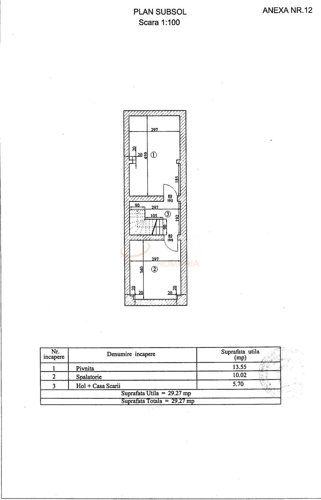
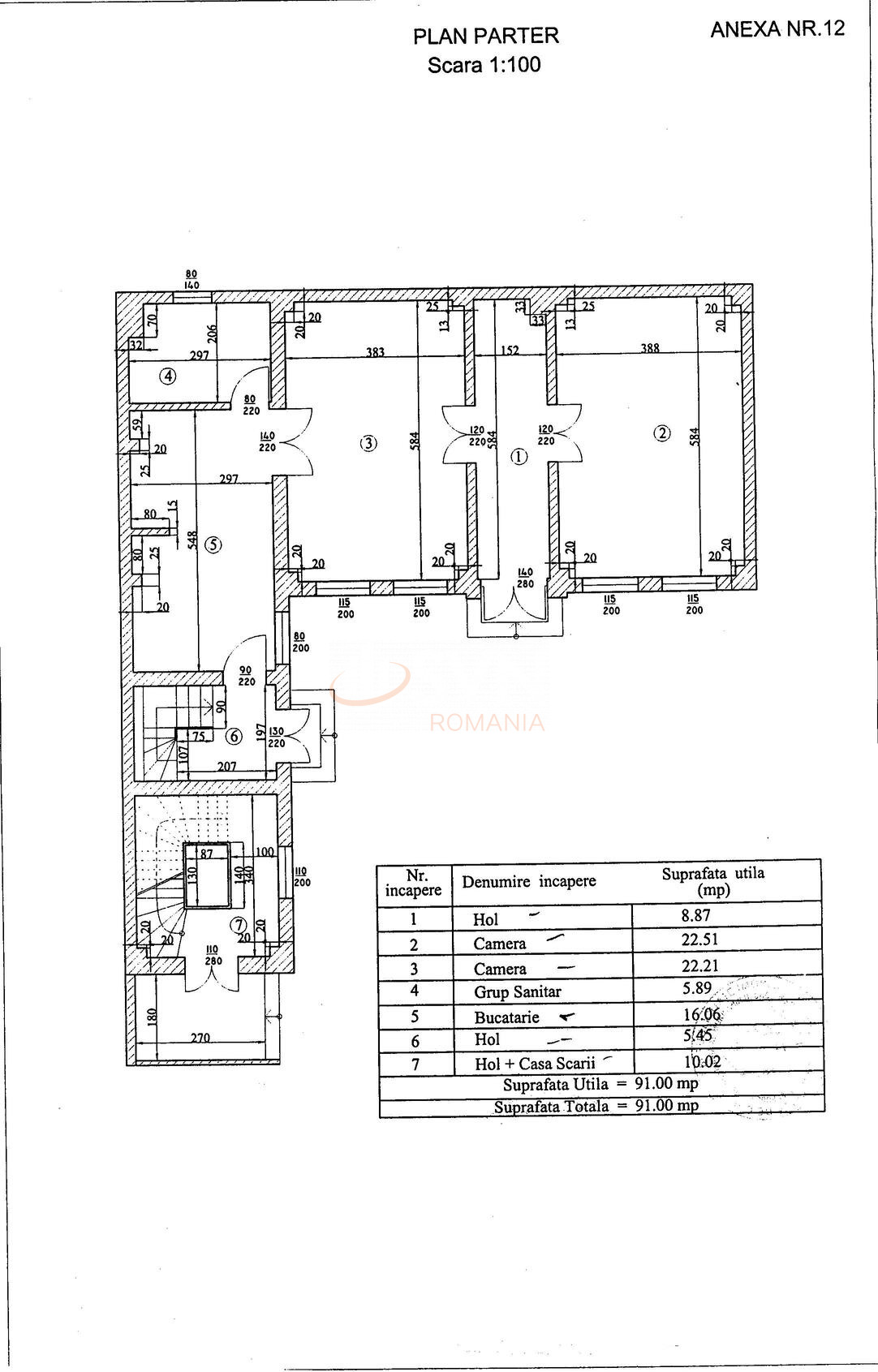
Suprafata comerciala
120.27
Deschidere fereastra
0.00
Recent renovat
1
Oras
BUCURESTI
Judet/ Sector
SECTOR 4
Zona
CANTEMIR
Gps lat
44.420905
Gps lng
26.104296
Nr. terase
1
Commercial space type
Casa/vila
Tag
SU5WRVNUIE9QT1JUVU5JVFk=

FACILITATI

Curent electric
Facilitati pentru persoane cu handicap
Baie privata
Supraveghere 24/7
Receptie
Spatiu de depozitare
Detector de incendiu
Supraveghere video
Detector de gaze
Sistem de alarma
Termoizolatie
Internet Wireless
Internet prin fibra optica
Cablu TV
Geamuri termopan
Parchet
Boxa
Gresie
Telefon
Faianta
Gaz
Incalzire proprie
WC serviciu
Mobilat
Aer conditionat
Bucatarie mobilata

ATRIBUTE

Regim Inaltime
P / S + P + 2
Etaj
P
Nr. bai
3
Suprafata comerciala
120.27
Deschidere fereastra
0.00
Recent renovat
1
Oras
BUCURESTI
Judet/ Sector
SECTOR 4
Zona
CANTEMIR
Gps lat
44.420905
Gps lng
26.104296
Nr. terase
1
Commercial space type
Casa/vila
Tag
SU5WRVNUIE9QT1JUVU5JVFk=

DESCRIERE

SVN Residentiaist Floreasca va prezinta spre inchiriere parterul unei vile interbelice in stil baroc, situata in zona Budapesta — un spatiu impresionant prin eleganta si rafinament, ideal pentru un concept HoReCa premium sau o investitie sigura.

Parterul gazduieste un restaurant de lux complet echipat, pregatit pentru preluare imediata. Spatiul functioneaza intr-un cadru deosebit, beneficiind de o terasa spatioasa si de toate autorizatiile necesare desfasurarii activitatii. Este alegerea perfecta pentru un operator care isi doreste o locatie reprezentativa, gata de utilizare.

Reconsolidata in anul 2008, proprietatea imbina farmecul arhitecturii istorice cu dotari moderne si finisaje de lux, care sporesc valoarea si atractivitatea spatiului.

Intrarea separata si contorizarea individuala pentru utilitati ofera flexibilitate si transparenta in administrare, facand din aceasta proprietate o solutie excelenta pentru activitati din segmentul HoReCa.

Cu o deschidere generoasa de 15 metri la strada, spatiul beneficiaza de vizibilitate excelenta, atragand un flux constant de clienti si oferind premise solide pentru succesul afacerii.

Exista, de asemenea, posibilitatea de achizitie a intregului imobil, valoarea acestuia fiind de 650.000 Euro.

Pentru mai multe detalii si pentru organizarea unei vizionari, va invitam sa ne contactati!

FACILITATI

Curent electric
Facilitati pentru persoane cu handicap
Baie privata
Supraveghere 24/7
Receptie
Spatiu de depozitare
Detector de incendiu
Supraveghere video
Detector de gaze
Sistem de alarma
Termoizolatie
Internet Wireless
Internet prin fibra optica
Cablu TV
Geamuri termopan
Parchet
Boxa
Gresie
Telefon
Faianta
Gaz
Incalzire proprie
WC serviciu
Mobilat
Aer conditionat
Bucatarie mobilata
Broker Imobiliar
Alina Rezmerita
Consultant imobiliar
0317 xxx xxx
PROPRIETATI SIMILARE

LOCALIZARE

PROPRIETATI SIMILARE