Spatiu comercial cu loc parcare exterior inclus, Bucuresti / Sector 1 / Pipera

  • Zona
    PIPERA
PRET INCHIRIERE + TVA
1.500 €/luna

DESCRIERE

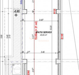
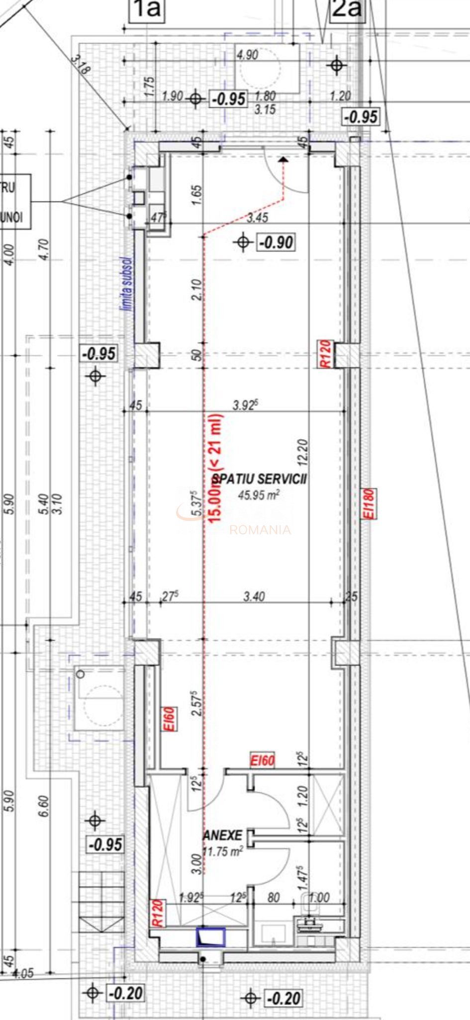
SVN Rezidentialist Pipera va ofera spre inchiriere un spatiu comercial stradal situat pe Bulevardul Pipera, in complexul Residence 5. Proprietatea are o suprafata totala de 83 mp, dintre care 58 mp utili, si beneficiaza de o terasa si 3 locuri de parcare incluse in pret. Spatiul este nou, aflandu-se la prima inchiriere, si este amplasat la parter, cu iesire directa la strada, oferind o vizibilitate excelenta.

Este pretabil pentru diverse activitati comerciale precum farmacie, magazin cu produse artizanale, curatatorie haine, cafenea sau alte concepte similare. Cladirea dispune de incalzire in pardoseala, sistem de climatizare, curent trifazic si toaleta proprie. Imobilul face parte dintr-un complex modern format din 6 blocuri exclusiviste din cadrul Residence 5.

Spatiul se preda gol, exact ca in fotografii, oferind chiriasului posibilitatea de a-l amenaja in functie de propriile nevoi. Suprafata generoasa permite recompartimentarea in functie de specificul activitatii. Pretul chiriei este de 1500 euro + TVA.

Amplasat intr-o zona de mare interes, cu acces rapid la mijloace de transport in comun si diverse facilitati urbane, acest spatiu reprezinta o oportunitate ideala pentru dezvoltarea unei afaceri.

Va invitam cu drag sa programati o vizionare si sa descoperiti personal aceasta proprietate exceptionala! Pentru orice alte detalii sau intrebari, nu ezitati sa ne contactati.

ATRIBUTE

Regim Inaltime
P / P + 5
Etaj
P
Nr. bai
1
Suprafata comerciala
58
Deschidere fereastra
0.00
Oras
BUCURESTI
Judet/ Sector
SECTOR 1
Zona
PIPERA
Gps lat
44.517476
Gps lng
26.141683
Nr. terase
1
Commercial space type
Bloc
Tag
QkVTVCBDSE9JQ0U=
Parkings
3

FACILITATI

Cablu TV
Curent electric
Interfon
Lift
Baie privata
Geamuri termopan
Gresie
Faianta
Loc parcare exterior
Incalzire proprie
Aer conditionat

ATRIBUTE

Regim Inaltime
P / P + 5
Etaj
P
Nr. bai
1
Suprafata comerciala
58
Deschidere fereastra
0.00
Oras
BUCURESTI
Judet/ Sector
SECTOR 1
Zona
PIPERA
Gps lat
44.517476
Gps lng
26.141683
Nr. terase
1
Commercial space type
Bloc
Tag
QkVTVCBDSE9JQ0U=
Parkings
3

DESCRIERE

SVN Rezidentialist Pipera va ofera spre inchiriere un spatiu comercial stradal situat pe Bulevardul Pipera, in complexul Residence 5. Proprietatea are o suprafata totala de 83 mp, dintre care 58 mp utili, si beneficiaza de o terasa si 3 locuri de parcare incluse in pret. Spatiul este nou, aflandu-se la prima inchiriere, si este amplasat la parter, cu iesire directa la strada, oferind o vizibilitate excelenta.

Este pretabil pentru diverse activitati comerciale precum farmacie, magazin cu produse artizanale, curatatorie haine, cafenea sau alte concepte similare. Cladirea dispune de incalzire in pardoseala, sistem de climatizare, curent trifazic si toaleta proprie. Imobilul face parte dintr-un complex modern format din 6 blocuri exclusiviste din cadrul Residence 5.

Spatiul se preda gol, exact ca in fotografii, oferind chiriasului posibilitatea de a-l amenaja in functie de propriile nevoi. Suprafata generoasa permite recompartimentarea in functie de specificul activitatii. Pretul chiriei este de 1500 euro + TVA.

Amplasat intr-o zona de mare interes, cu acces rapid la mijloace de transport in comun si diverse facilitati urbane, acest spatiu reprezinta o oportunitate ideala pentru dezvoltarea unei afaceri.

Va invitam cu drag sa programati o vizionare si sa descoperiti personal aceasta proprietate exceptionala! Pentru orice alte detalii sau intrebari, nu ezitati sa ne contactati.

FACILITATI

Cablu TV
Curent electric
Interfon
Lift
Baie privata
Geamuri termopan
Gresie
Faianta
Loc parcare exterior
Incalzire proprie
Aer conditionat
Broker Imobiliar
Ana Ziegler
Consultant imobiliar
0317 xxx xxx

LOCALIZARE

PROPRIETATI SIMILARE