Casa, 3 rooms, 206 mp, Bucuresti / Sector 4 / Eroii Revolutiei

  • Zona
    EROII REVOLUTIEI
  • Rooms
    3 rooms
  • Net
    206 mp
  • Struc.
    P + 1 + M
  • Land
    178.00
PRET VANZARE
270.000 €

DESCRIERE

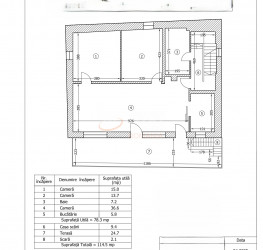
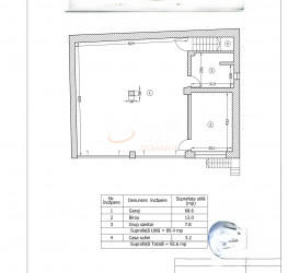
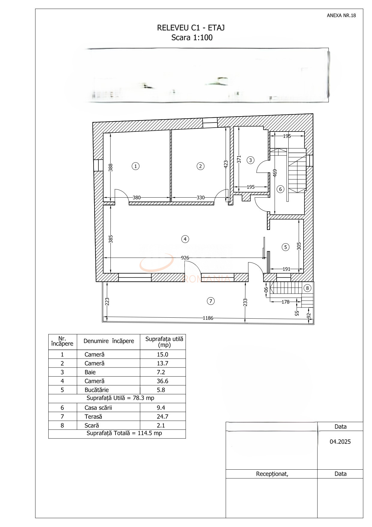
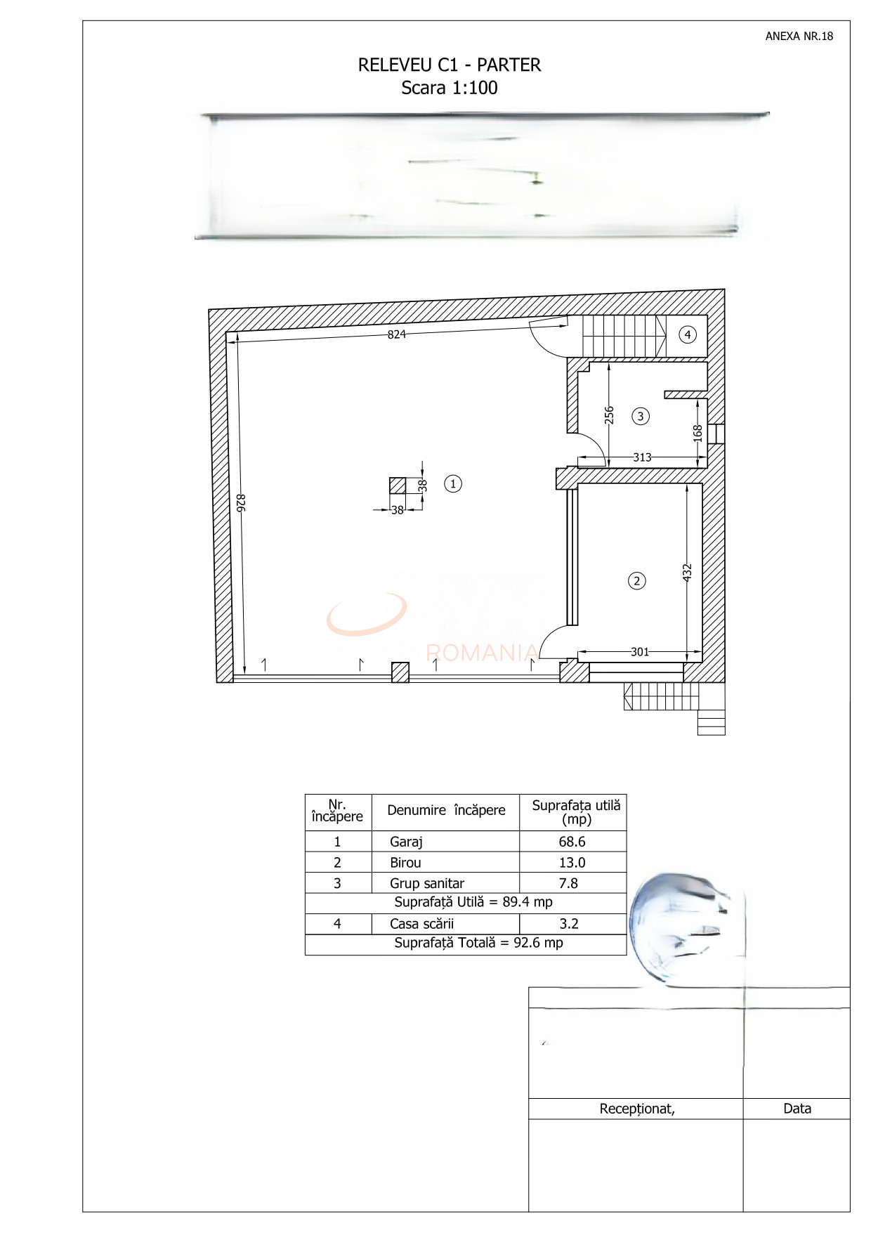
SVN Romania propune spre vanzare o vila P+E+M, cu suprafata utila de 206 mp, totala 247 si amprenta la sol de 114 mp, situata la aproximativ 10 min. de statia de metrou Eroii Revolutiei.

Vila este formata din:
- parter in suprafata utila de 89 mp, compus din service auto complet utilat, bucatarie, baie si beci
- etaj in suprafata utila de 78 mp, compus din living, 2 dormitoare, baie, bucatarie si terasa
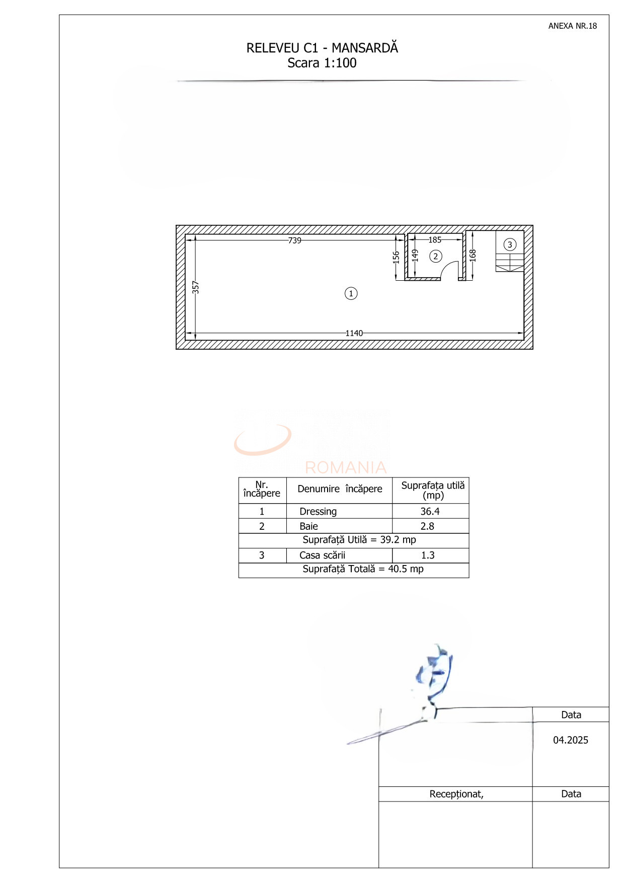
- mansarda in suprafata utila de 39 mp, necompartimentata.

Serviceul auto, aflat la parterul cladirii, este fara activitate, dar a functionat o perioada lunga de timp.

Cladirea a fost construita pe structura de beton cu pereti din caramida poroterm. Este izolata la exterior cu polistiren extrudate de 10 cm, are ferestre termopan si porti PVC la garaj. A fost conceputa ca spatiu de locuit si service auto, dar se poate transforma doar in spatiu de locuit prin reamenajarea parterului sau in scop comercial folosind etajul pentru birouri.

Incalzirea si apa calda menajera se realizeaza cu ajutorul unei centrale murale pe gaze.

Este racordata la toate utilitatile.

Terenul pe care este contruita cladirea are suprafatatotala de 178 mp, are deschidere la strada de 12 m si este imprejmuit cu gard metallic.

In apropriere se regaseste o retea dezvoltata de transport in comun, unitati comerciale, de invatamant, bancare, de cult si agrement.

Pentru mai multe detalii si programarea la vizionare, va rog sa ne contactati.

ATRIBUTE

Construction age
Old
Gross surface
, 247 mp
Net Surface
206 mp
Structure
P + 1 + M
Floor
P + 1 + M
Rooms
3 rooms
Bathrooms
2
Balconies
1 balcon
Construction type
Vila
Construction status
Finished
Construction year
2006
Footprint surface
, 114 mp
Land surface
178.00
Street opening
, 12 m
Individual courtyard
Yes
Level one location
BUCURESTI
Level two location
SECTOR 4
Level three location
EROII REVOLUTIEI
Gps lat
44.399252
Gps lng
26.093695
Terraces
1
Primary energy consumption
0.00
Co2 consumption index
0.00
Renewable energy consumption
0.00
Tag
QkVTVCBDSE9JQ0U=
Price included parking
1
Garages
1

FACILITATI

Acoperis mansardat
Geamuri termopan
Telefon
Parchet
Apa
Acoperis tabla
Gresie
Gaz
Faianta
Canalizare
Garaj
Calorifere
Plansee beton
Parcare in curte
Incalzire centrala termica
Aer conditionat
WC serviciu
Detector de gaze
Spatiu de depozitare
Termoizolatie
Internet prin Dial-Up
Internet Wireless
Internet prin fibra optica
Internet prin cablu
Curent electric
Cablu TV
Beci

ATRIBUTE

Construction age
Old
Gross surface
, 247 mp
Net Surface
206 mp
Structure
P + 1 + M
Floor
P + 1 + M
Rooms
3 rooms
Bathrooms
2
Balconies
1 balcon
Construction type
Vila
Construction status
Finished
Construction year
2006
Footprint surface
, 114 mp
Land surface
178.00
Street opening
, 12 m
Individual courtyard
Yes
Level one location
BUCURESTI
Level two location
SECTOR 4
Level three location
EROII REVOLUTIEI
Gps lat
44.399252
Gps lng
26.093695
Terraces
1
Primary energy consumption
0.00
Co2 consumption index
0.00
Renewable energy consumption
0.00
Tag
QkVTVCBDSE9JQ0U=
Price included parking
1
Garages
1

DESCRIERE

SVN Romania propune spre vanzare o vila P+E+M, cu suprafata utila de 206 mp, totala 247 si amprenta la sol de 114 mp, situata la aproximativ 10 min. de statia de metrou Eroii Revolutiei.

Vila este formata din:
- parter in suprafata utila de 89 mp, compus din service auto complet utilat, bucatarie, baie si beci
- etaj in suprafata utila de 78 mp, compus din living, 2 dormitoare, baie, bucatarie si terasa
- mansarda in suprafata utila de 39 mp, necompartimentata.

Serviceul auto, aflat la parterul cladirii, este fara activitate, dar a functionat o perioada lunga de timp.

Cladirea a fost construita pe structura de beton cu pereti din caramida poroterm. Este izolata la exterior cu polistiren extrudate de 10 cm, are ferestre termopan si porti PVC la garaj. A fost conceputa ca spatiu de locuit si service auto, dar se poate transforma doar in spatiu de locuit prin reamenajarea parterului sau in scop comercial folosind etajul pentru birouri.

Incalzirea si apa calda menajera se realizeaza cu ajutorul unei centrale murale pe gaze.

Este racordata la toate utilitatile.

Terenul pe care este contruita cladirea are suprafatatotala de 178 mp, are deschidere la strada de 12 m si este imprejmuit cu gard metallic.

In apropriere se regaseste o retea dezvoltata de transport in comun, unitati comerciale, de invatamant, bancare, de cult si agrement.

Pentru mai multe detalii si programarea la vizionare, va rog sa ne contactati.

FACILITATI

Acoperis mansardat
Geamuri termopan
Telefon
Parchet
Apa
Acoperis tabla
Gresie
Gaz
Faianta
Canalizare
Garaj
Calorifere
Plansee beton
Parcare in curte
Incalzire centrala termica
Aer conditionat
WC serviciu
Detector de gaze
Spatiu de depozitare
Termoizolatie
Internet prin Dial-Up
Internet Wireless
Internet prin fibra optica
Internet prin cablu
Curent electric
Cablu TV
Beci
Broker Imobiliar
Constantin Nicolae
Consultant imobiliar
0317 xxx xxx
PROPRIETATI SIMILARE

LOCALIZARE

Loan calculator
Monthly amount: 5.943 LEI Interest rate: 4.97%
PROPRIETATI SIMILARE