Spatiu comercial with outdoor parking included, Bucuresti / Sector 1 / Dorobanti

  • Zona
    DOROBANTI
PRET VANZARE
368.000 €

DESCRIERE

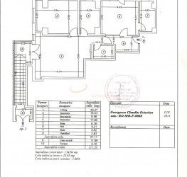
SVN Residentialist Pipera offers for sale a commercial space with a total area of 111 sqm, complemented by 10 sqm consisting of two united storage rooms located in the basement of the building, plus an exterior storage unit situated under the entrance stairs, as well as one parking space. The property includes two fully furnished bathrooms and a fully equipped kitchen. All these are offered together at the price of 368000 euro, with all taxes included.

The building is located in the central area of Bucharest, in Dorobanti, and was completed in 2013. It is equipped with its own central heating system. The space benefits from two separate entrances: the main entrance, facing the street, with private exterior steps located on the left side of the Mega Image store, and a second entrance accessible from inside the building, from the first floor.

The property is suitable for multiple business activities, such as offices, medical clinics, beauty salons or pharmacies. The Dorobanti area is one of the most prestigious and well-developed zones of Bucharest, known for its excellent visibility, easy access, and high pedestrian and car traffic. It offers proximity to major boulevards, public transport, premium residential buildings, embassies, restaurants, cafes and commercial points of interest, making it an ideal location for a stable and profitable business.

SVN Residentialist invites you to schedule a viewing.

ATRIBUTE

Structure
P / P
Floor
P
Bathrooms
2
Commercial surface
, 111 mp
Warehouse surface
, 10 mp
Shop window width
0.00
Level one location
BUCURESTI
Level two location
SECTOR 1
Level three location
DOROBANTI
Gps lat
44.439110
Gps lng
26.074976
Primary energy consumption
0.00
Co2 consumption index
0.00
Renewable energy consumption
0.00
Commercial space type
Centru comercial
Tag
SU5WRVNUIE9QT1JUVU5JVFk=
Parkings
1

FACILITATI

Cablu TV
Curent electric
Interfon
Detector de gaze
Supraveghere video
Spatiu de depozitare
Parchet
Boxa
Gresie
Faianta
Outdoor parking
Incalzire proprie
WC serviciu
Mobilat
Aer conditionat
Bucatarie mobilata

ATRIBUTE

Structure
P / P
Floor
P
Bathrooms
2
Commercial surface
, 111 mp
Warehouse surface
, 10 mp
Shop window width
0.00
Level one location
BUCURESTI
Level two location
SECTOR 1
Level three location
DOROBANTI
Gps lat
44.439110
Gps lng
26.074976
Primary energy consumption
0.00
Co2 consumption index
0.00
Renewable energy consumption
0.00
Commercial space type
Centru comercial
Tag
SU5WRVNUIE9QT1JUVU5JVFk=
Parkings
1

DESCRIERE

SVN Residentialist Pipera offers for sale a commercial space with a total area of 111 sqm, complemented by 10 sqm consisting of two united storage rooms located in the basement of the building, plus an exterior storage unit situated under the entrance stairs, as well as one parking space. The property includes two fully furnished bathrooms and a fully equipped kitchen. All these are offered together at the price of 368000 euro, with all taxes included.

The building is located in the central area of Bucharest, in Dorobanti, and was completed in 2013. It is equipped with its own central heating system. The space benefits from two separate entrances: the main entrance, facing the street, with private exterior steps located on the left side of the Mega Image store, and a second entrance accessible from inside the building, from the first floor.

The property is suitable for multiple business activities, such as offices, medical clinics, beauty salons or pharmacies. The Dorobanti area is one of the most prestigious and well-developed zones of Bucharest, known for its excellent visibility, easy access, and high pedestrian and car traffic. It offers proximity to major boulevards, public transport, premium residential buildings, embassies, restaurants, cafes and commercial points of interest, making it an ideal location for a stable and profitable business.

SVN Residentialist invites you to schedule a viewing.

FACILITATI

Cablu TV
Curent electric
Interfon
Detector de gaze
Supraveghere video
Spatiu de depozitare
Parchet
Boxa
Gresie
Faianta
Outdoor parking
Incalzire proprie
WC serviciu
Mobilat
Aer conditionat
Bucatarie mobilata
Broker Imobiliar
Elefteria Ciota
Consultant imobiliar
0317 xxx xxx
PROPRIETATI SIMILARE

LOCALIZARE

Loan calculator
Monthly amount: 8.100 LEI Interest rate: 4.97%
PROPRIETATI SIMILARE