Spatiu comercial with outdoor parking included, Ilfov / Est / Voluntari

  • Zona
    VOLUNTARI
PRET VANZARE + TVA
374.900 €

DESCRIERE

SVN Residentialist Pipera offers for sale a commercial space located on the first floor of a P+2 building. The property is suitable for various activities such as a beauty salon, training studio, offices, or other commercial services. The space features its own gas installation and consists of two units separated by a drywall partition, which can be purchased together or individually, depending on the buyers needs.

The floor benefits from low foot traffic, with only two units present, ensuring privacy and a quiet working environment. The property also includes 4 dedicated parking spaces, an important advantage for employees, clients, or collaborators.

The location is excellent: the building is situated approximately 100 meters from the entrance to the Bucharest–Ploiesti highway, and a bus stop is located right in front of the building, providing easy access to public transportation. Additionally, the building is equipped with a video surveillance system, ensuring a high level of security.

On the ground floor, a Mega Image supermarket operates until 24:00, and after this hour, access to the building is allowed only with keys, at which point the alarm system activates automatically.

The listing price includes VAT, and the property allows reverse charge taxation, offering flexibility for legal entities. This is an excellent opportunity for investors or entrepreneurs seeking a versatile, easily accessible space with very good visibility.

SVN Residentialist Pipera awaits you for a viewing.

ATRIBUTE

Structure
1 / P + 2
Floor
1
Bathrooms
2
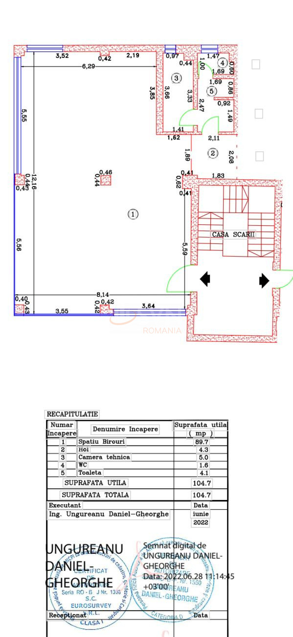
Commercial surface
, 212.08 mp
Shop window width
0.00
Level one location
ILFOV
Level two location
EST
Level three location
VOLUNTARI
Gps lat
44.494536
Gps lng
26.145279
Primary energy consumption
0.00
Co2 consumption index
0.00
Renewable energy consumption
0.00
Commercial space type
Cladire de birouri
Tag
SU5WRVNUIE9QT1JUVU5JVFk=
Parkings
4

FACILITATI

Curent electric
Sistem de alarma
Supraveghere video
Spatiu de depozitare
Supraveghere 24/7
Geamuri termopan
Parchet
Gresie
Faianta
Outdoor parking
WC serviciu
Aer conditionat

ATRIBUTE

Structure
1 / P + 2
Floor
1
Bathrooms
2
Commercial surface
, 212.08 mp
Shop window width
0.00
Level one location
ILFOV
Level two location
EST
Level three location
VOLUNTARI
Gps lat
44.494536
Gps lng
26.145279
Primary energy consumption
0.00
Co2 consumption index
0.00
Renewable energy consumption
0.00
Commercial space type
Cladire de birouri
Tag
SU5WRVNUIE9QT1JUVU5JVFk=
Parkings
4

DESCRIERE

SVN Residentialist Pipera offers for sale a commercial space located on the first floor of a P+2 building. The property is suitable for various activities such as a beauty salon, training studio, offices, or other commercial services. The space features its own gas installation and consists of two units separated by a drywall partition, which can be purchased together or individually, depending on the buyers needs.

The floor benefits from low foot traffic, with only two units present, ensuring privacy and a quiet working environment. The property also includes 4 dedicated parking spaces, an important advantage for employees, clients, or collaborators.

The location is excellent: the building is situated approximately 100 meters from the entrance to the Bucharest–Ploiesti highway, and a bus stop is located right in front of the building, providing easy access to public transportation. Additionally, the building is equipped with a video surveillance system, ensuring a high level of security.

On the ground floor, a Mega Image supermarket operates until 24:00, and after this hour, access to the building is allowed only with keys, at which point the alarm system activates automatically.

The listing price includes VAT, and the property allows reverse charge taxation, offering flexibility for legal entities. This is an excellent opportunity for investors or entrepreneurs seeking a versatile, easily accessible space with very good visibility.

SVN Residentialist Pipera awaits you for a viewing.

FACILITATI

Curent electric
Sistem de alarma
Supraveghere video
Spatiu de depozitare
Supraveghere 24/7
Geamuri termopan
Parchet
Gresie
Faianta
Outdoor parking
WC serviciu
Aer conditionat
Broker Imobiliar
Bianca Moisa
Consultant imobiliar
0317 xxx xxx
PROPRIETATI SIMILARE

LOCALIZARE

Loan calculator
Monthly amount: 8.252 LEI Interest rate: 4.97%
PROPRIETATI SIMILARE