Apartament, 1 room, 44 mp, Bucuresti / Sector 6 / Lujerului

  • Zona
    LUJERULUI
  • Rooms
    1 room
  • Net
    44 mp
  • Floor
    5
  • Const.
    2023
PRET VANZARE + TVA
106.500 €

DESCRIERE

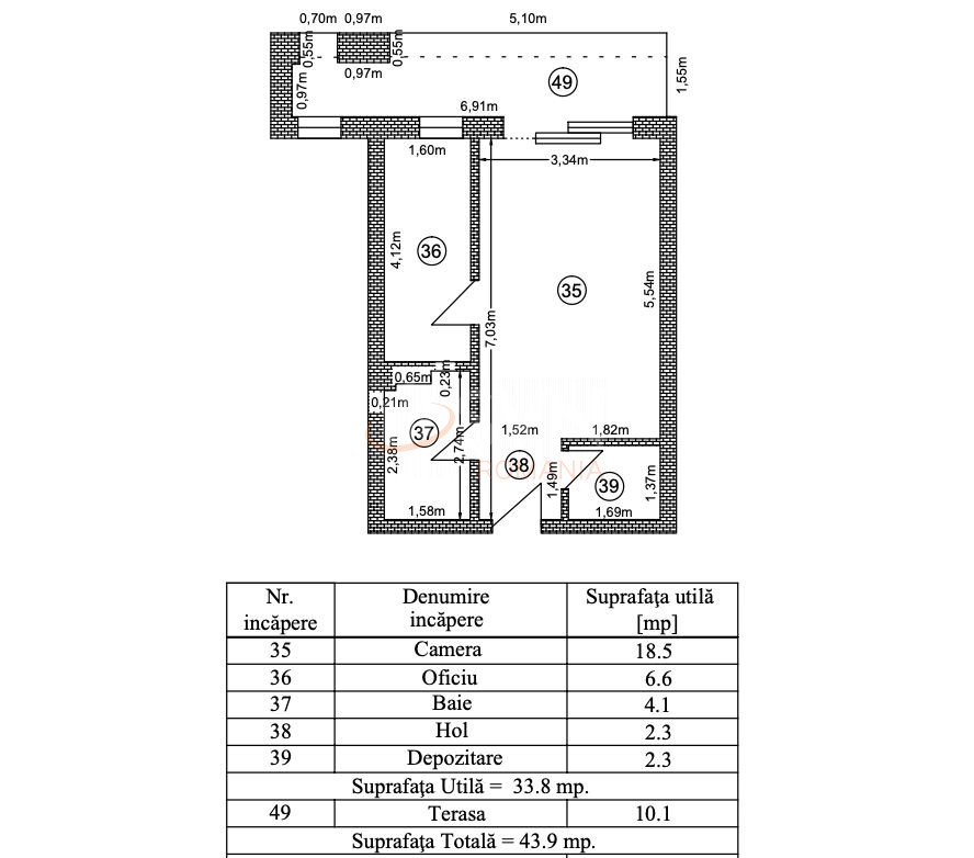
SVN Residentialist va propune spre vanzare un studio modern situat in zona Lujerului, intr-un bloc rezidential nou, ideal atat pentru locuire, cat si pentru investitie. Proprietatea are o suprafata utila de 33.8 mp, completata de o terasa generoasa de 10.1 mp, care ofera un spatiu suplimentar pentru relaxare.

Studio-ul este eficient compartimentat. Camera principala de 18.5 mp este luminoasa si permite amenajarea unei zone de zi si de dormit. Bucataria tip oficiu are o suprafata de 6.6 mp si se preteaza perfect pentru amenajari moderne si practice. Baia are o suprafata de 4.1 mp si este configurata astfel incat sa ofere functionalitate maxima. Holul de 2.3 mp asigura un flux natural intre incaperi, iar spatiul de depozitare de 2.3 mp reprezinta un avantaj important pentru organizarea locuintei. Terasa de 10.1 mp completeaza perfect proprietatea si poate fi amenajata ca zona de relaxare in aer liber.

Imobilul este situat intr-o locatie excelenta, la doar cateva minute de mers pe jos de statia de metrou Lujerului, centre comerciale, supermarketuri si alte facilitati urbane. Datorita amplasarii si compartimentarii, studio-ul reprezinta o alegere potrivita atat pentru locuire, cat si pentru investitie.

Pentru mai multe informatii sau pentru a programa o vizionare, vă stau cu drag la dispozitie. Aceasta proprietate poate deveni cu usurinta noul dumneavoastra camin.

ATRIBUTE

Construction age
New
Gross surface
, 54 mp
Net Surface
44 mp
Terrace surface
, 10 mp
Structure
5 / 5
Floor
5
Rooms
1 room
Bathrooms
1
Balconies
1 balcon
Convenience
1
Split
Decomandat
Construction type
In bloc
Construction status
Finished
Construction year
2023
Level one location
BUCURESTI
Level two location
SECTOR 6
Level three location
LUJERULUI
Gps lat
44.428387
Gps lng
26.022403
Primary energy consumption
0.00
Co2 consumption index
0.00
Renewable energy consumption
0.00
Tag
QkVTVCBDSE9JQ0U=

FACILITATI

Curent electric
Interfon
Geamuri termopan
Parchet
Gresie
Gaz
Incalzire proprie
Incalzire prin pardoseala
Mobilat
Aer conditionat
Bucatarie mobilata
Lift

ATRIBUTE

Construction age
New
Gross surface
, 54 mp
Net Surface
44 mp
Terrace surface
, 10 mp
Structure
5 / 5
Floor
5
Rooms
1 room
Bathrooms
1
Balconies
1 balcon
Convenience
1
Split
Decomandat
Construction type
In bloc
Construction status
Finished
Construction year
2023
Level one location
BUCURESTI
Level two location
SECTOR 6
Level three location
LUJERULUI
Gps lat
44.428387
Gps lng
26.022403
Primary energy consumption
0.00
Co2 consumption index
0.00
Renewable energy consumption
0.00
Tag
QkVTVCBDSE9JQ0U=

DESCRIERE

SVN Residentialist va propune spre vanzare un studio modern situat in zona Lujerului, intr-un bloc rezidential nou, ideal atat pentru locuire, cat si pentru investitie. Proprietatea are o suprafata utila de 33.8 mp, completata de o terasa generoasa de 10.1 mp, care ofera un spatiu suplimentar pentru relaxare.

Studio-ul este eficient compartimentat. Camera principala de 18.5 mp este luminoasa si permite amenajarea unei zone de zi si de dormit. Bucataria tip oficiu are o suprafata de 6.6 mp si se preteaza perfect pentru amenajari moderne si practice. Baia are o suprafata de 4.1 mp si este configurata astfel incat sa ofere functionalitate maxima. Holul de 2.3 mp asigura un flux natural intre incaperi, iar spatiul de depozitare de 2.3 mp reprezinta un avantaj important pentru organizarea locuintei. Terasa de 10.1 mp completeaza perfect proprietatea si poate fi amenajata ca zona de relaxare in aer liber.

Imobilul este situat intr-o locatie excelenta, la doar cateva minute de mers pe jos de statia de metrou Lujerului, centre comerciale, supermarketuri si alte facilitati urbane. Datorita amplasarii si compartimentarii, studio-ul reprezinta o alegere potrivita atat pentru locuire, cat si pentru investitie.

Pentru mai multe informatii sau pentru a programa o vizionare, vă stau cu drag la dispozitie. Aceasta proprietate poate deveni cu usurinta noul dumneavoastra camin.

FACILITATI

Curent electric
Interfon
Geamuri termopan
Parchet
Gresie
Gaz
Incalzire proprie
Incalzire prin pardoseala
Mobilat
Aer conditionat
Bucatarie mobilata
Lift
Broker Imobiliar
Alexandra Duma
Consultant imobiliar
0317 xxx xxx
PROPRIETATI SIMILARE
Apartament, 1 room, 38 mp Bucuresti/Lujerului
0 €/mp
Net
38 mp
Floor
P
Const.
2018
Apartament, 1 room, 40 mp Bucuresti/Lujerului
0 €/mp
Net
40 mp
Floor
P
Const.
2024
Apartament, 2 rooms, 56 mp Bucuresti/Lujerului
0 €/mp
Net
56 mp
Floor
3
Const.
2023
Apartament, 2 rooms, 56 mp Bucuresti/Lujerului
0 €/mp
Net
56 mp
Floor
P
Const.
2023
Apartament, 2 rooms, 84 mp Bucuresti/Lujerului
0 €/mp
Net
84 mp
Floor
11
Const.
2021

LOCALIZARE

Loan calculator
Monthly amount: 2.345 LEI Interest rate: 4.97%
PROPRIETATI SIMILARE