Apartament, 4 rooms, 156.65 mp, Bucuresti / Sector 2 / Mihai Bravu (s2)

  • Zona
    MIHAI BRAVU (S2)
  • Rooms
    4 rooms
  • Net
    156.65 mp
  • Floor
    3
  • Const.
    2026
PRET VANZARE
465.000 €

DESCRIERE

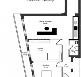
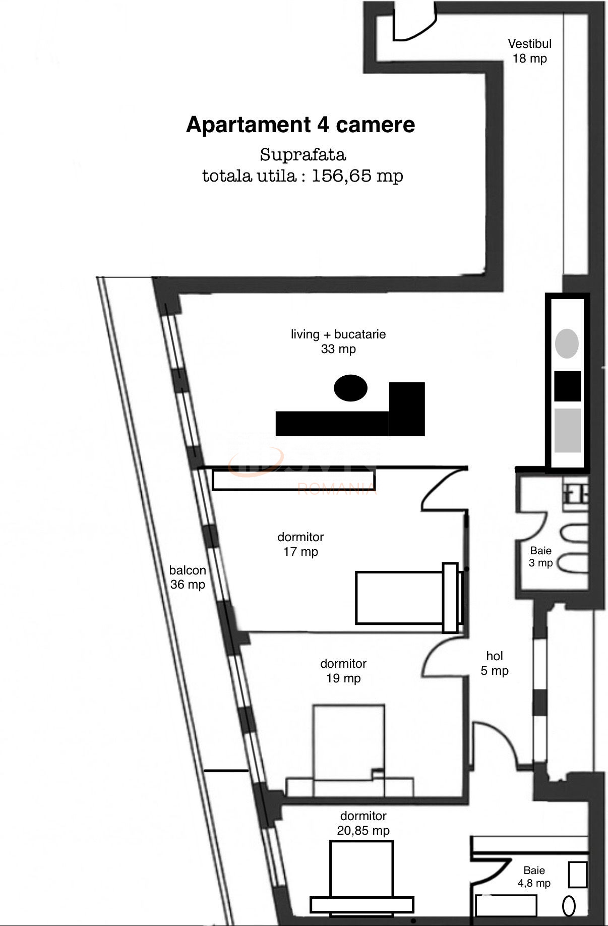
Descoperiți un apartament de excepție, situat într-un bloc nou, ce urmeaza a fi finalizat în 2026, conceput pentru un stil de viață rafinat și confort absolut.
Cu o suprafață utilă de 156,65 mp, proprietatea impresionează prin compartimentarea elegantă și funcțională:
3 dormitoare spațioase, dintre care un dormitor matrimonial cu baie proprie și dressing
Living cu bucătărie open-space, în suprafață de 33 mp, ideal pentru momentele petrecute în familie sau cu invitații
2 băi moderne
Balcon generos de 36 mp, un adevărat spațiu de relaxare

Apartamentul se remarcă prin finisaje premium, materiale de calitate superioară și atenție la cele mai mici detalii, oferind un ambient sofisticat și modern.
O locuință dedicată celor care apreciază eleganța, spațiul și calitatea, într-un imobil nou, la cele mai înalte standarde.

La ora actuala, blocul este ridicat, sunt realizate finisajele exterioare si compartimentarile, se mai lucreaza doar la detaliile interioare (in aceasta faza a lucrarilor finisajele pot fi personalizate).

Va stam la dispozitie cu placere pentru detalii sau stabilirea vizionarii!

ATRIBUTE

Construction age
New
Gross surface
, 195 mp
Net Surface
156.65 mp
Terrace surface
, 36 mp
Structure
3 / 4
Floor
3
Rooms
4 rooms
Bathrooms
1
Balconies
, 0 balcoane
Convenience
1
Split
Semidecomandat
Construction type
In bloc
Construction status
In construction
Construction year
2026
Level one location
BUCURESTI
Level two location
SECTOR 2
Level three location
MIHAI BRAVU (S2)
Gps lat
44.442572
Gps lng
26.129797
Terraces
1
Primary energy consumption
0.00
Co2 consumption index
0.00
Renewable energy consumption
0.00
Tag
TU9ERVJOIEhPTUU=

FACILITATI

Cablu TV
Supraveghere 24/7
Supraveghere video
Detector de gaze
Sistem de alarma
Interfon
Internet prin fibra optica
Internet prin cablu
Curent electric
Geamuri termopan
Repartitoare
Parchet
Apometre
Gresie
Telefon
Faianta
Gaz
Incalzire proprie
Lift

ATRIBUTE

Construction age
New
Gross surface
, 195 mp
Net Surface
156.65 mp
Terrace surface
, 36 mp
Structure
3 / 4
Floor
3
Rooms
4 rooms
Bathrooms
1
Balconies
, 0 balcoane
Convenience
1
Split
Semidecomandat
Construction type
In bloc
Construction status
In construction
Construction year
2026
Level one location
BUCURESTI
Level two location
SECTOR 2
Level three location
MIHAI BRAVU (S2)
Gps lat
44.442572
Gps lng
26.129797
Terraces
1
Primary energy consumption
0.00
Co2 consumption index
0.00
Renewable energy consumption
0.00
Tag
TU9ERVJOIEhPTUU=

DESCRIERE

Descoperiți un apartament de excepție, situat într-un bloc nou, ce urmeaza a fi finalizat în 2026, conceput pentru un stil de viață rafinat și confort absolut.
Cu o suprafață utilă de 156,65 mp, proprietatea impresionează prin compartimentarea elegantă și funcțională:
3 dormitoare spațioase, dintre care un dormitor matrimonial cu baie proprie și dressing
Living cu bucătărie open-space, în suprafață de 33 mp, ideal pentru momentele petrecute în familie sau cu invitații
2 băi moderne
Balcon generos de 36 mp, un adevărat spațiu de relaxare

Apartamentul se remarcă prin finisaje premium, materiale de calitate superioară și atenție la cele mai mici detalii, oferind un ambient sofisticat și modern.
O locuință dedicată celor care apreciază eleganța, spațiul și calitatea, într-un imobil nou, la cele mai înalte standarde.

La ora actuala, blocul este ridicat, sunt realizate finisajele exterioare si compartimentarile, se mai lucreaza doar la detaliile interioare (in aceasta faza a lucrarilor finisajele pot fi personalizate).

Va stam la dispozitie cu placere pentru detalii sau stabilirea vizionarii!

FACILITATI

Cablu TV
Supraveghere 24/7
Supraveghere video
Detector de gaze
Sistem de alarma
Interfon
Internet prin fibra optica
Internet prin cablu
Curent electric
Geamuri termopan
Repartitoare
Parchet
Apometre
Gresie
Telefon
Faianta
Gaz
Incalzire proprie
Lift
Broker Imobiliar
Teodor Taranu
Consultant imobiliar
0317 xxx xxx
PROPRIETATI SIMILARE
Apartament, 4 rooms, 106.56 mp Bucuresti/Mihai Bravu (s2)
0 €/mp
Net
106.56 mp
Floor
3
Const.
2026
Apartament, 2 rooms, 70.12 mp Bucuresti/Mihai Bravu (s2)
0 €/mp
Net
70.12 mp
Floor
10
Const.
2009
Apartament, 2 rooms, 50.2 mp Bucuresti/Mihai Bravu (s2)
0 €/mp
Net
50.2 mp
Floor
7
Const.
2021
Apartament, 3 rooms, 103.46 mp Bucuresti/Mihai Bravu (s2)
0 €/mp
Net
103.46 mp
Floor
4
Const.
2026

LOCALIZARE

Loan calculator
Monthly amount: 10.235 LEI Interest rate: 4.97%
PROPRIETATI SIMILARE