Apartament, 3 rooms with underground parking included, Bucuresti / Sector 1 / Pipera

  • Zona
    PIPERA
  • Rooms
    3 rooms
  • Net
    85 mp
  • Floor
    10
  • Const.
    2018
PRET VANZARE
379.900 €

DESCRIERE

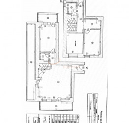
Avem placerea de a va oferi spre vanzare un duplex cu 3 camere situat la etajele 10 si 11 in Faza 1 din Ansamblul Belvedere Residence.

Apartamentul dispune de compartimentare decomandata si este dispus astfel: la etajul 10 living generos cu iesire pe terasa, bucatarie inchisa cu acces pe terasa cu vedere spre lac , baie, hol, iar la etajul 11 regasim 2 dormitoare , 1 terasa, baie pe hol, dressing. Toate acestea insumeaza suprafata utila de 85 mp la care se adauga terasele cu suprafata de 31 mp

Apartamentul se vinde complet mobilat si utilat , asa cum este prezentat in fotografii.

Pretul include 2 locuri de parcare in subteran in sistem Klaus cu posibilitate incarcare masina electrica precum si o boxa de depozitare.

Complexul este foarte bine pozitionat, avand iesire imediata catre zona de business Aviatiei, Pipera si Autostrada A3.
In imediata apropiere avem Kaufland, Mobexpert, Mall Promenada, statie de metrou si tramvai, etc.

Certificatul energetic va fi disponibil la vanzare.

Pentru mai multe detalii si vizionari nu ezitati sa ne contactati.

ATRIBUTE

Construction age
Old
Gross surface
, 120 mp
Net Surface
85 mp
Terrace surface
, 31 mp
Structure
10 / 11
Floor
10
Rooms
3 rooms
Bathrooms
2
Balconies
, 2 balcoane
Convenience
1
Split
Decomandat
Construction type
Bloc
Construction status
Finished
Construction year
2018
Level one location
BUCURESTI
Level two location
SECTOR 1
Level three location
PIPERA
Gps lat
44.478118
Gps lng
26.121659
Terraces
2
Primary energy consumption
0.00
Co2 consumption index
0.00
Renewable energy consumption
0.00
Tag
RFJFQU0gSE9NRQ==
Parkings
2
Price included parking
1
Penthouse
1

FACILITATI

Interfon
Supraveghere 24/7
Internet Wireless
Internet prin cablu
Curent electric
Cablu TV
Sistem de alarma
Supraveghere video
Detector de gaze
Geamuri termopan
Repartitoare
Balcon inchis
Parchet
Apometre
Boxa
Gresie
Telefon
Underground parking
Faianta
Gaz
Calorifere
Incalzire proprie
WC serviciu
Mobilat
Aer conditionat
Bucatarie mobilata
Bloc reabiliat termic
Lift

ATRIBUTE

Construction age
Old
Gross surface
, 120 mp
Net Surface
85 mp
Terrace surface
, 31 mp
Structure
10 / 11
Floor
10
Rooms
3 rooms
Bathrooms
2
Balconies
, 2 balcoane
Convenience
1
Split
Decomandat
Construction type
Bloc
Construction status
Finished
Construction year
2018
Level one location
BUCURESTI
Level two location
SECTOR 1
Level three location
PIPERA
Gps lat
44.478118
Gps lng
26.121659
Terraces
2
Primary energy consumption
0.00
Co2 consumption index
0.00
Renewable energy consumption
0.00
Tag
RFJFQU0gSE9NRQ==
Parkings
2
Price included parking
1
Penthouse
1

DESCRIERE

Avem placerea de a va oferi spre vanzare un duplex cu 3 camere situat la etajele 10 si 11 in Faza 1 din Ansamblul Belvedere Residence.

Apartamentul dispune de compartimentare decomandata si este dispus astfel: la etajul 10 living generos cu iesire pe terasa, bucatarie inchisa cu acces pe terasa cu vedere spre lac , baie, hol, iar la etajul 11 regasim 2 dormitoare , 1 terasa, baie pe hol, dressing. Toate acestea insumeaza suprafata utila de 85 mp la care se adauga terasele cu suprafata de 31 mp

Apartamentul se vinde complet mobilat si utilat , asa cum este prezentat in fotografii.

Pretul include 2 locuri de parcare in subteran in sistem Klaus cu posibilitate incarcare masina electrica precum si o boxa de depozitare.

Complexul este foarte bine pozitionat, avand iesire imediata catre zona de business Aviatiei, Pipera si Autostrada A3.
In imediata apropiere avem Kaufland, Mobexpert, Mall Promenada, statie de metrou si tramvai, etc.

Certificatul energetic va fi disponibil la vanzare.

Pentru mai multe detalii si vizionari nu ezitati sa ne contactati.

FACILITATI

Interfon
Supraveghere 24/7
Internet Wireless
Internet prin cablu
Curent electric
Cablu TV
Sistem de alarma
Supraveghere video
Detector de gaze
Geamuri termopan
Repartitoare
Balcon inchis
Parchet
Apometre
Boxa
Gresie
Telefon
Underground parking
Faianta
Gaz
Calorifere
Incalzire proprie
WC serviciu
Mobilat
Aer conditionat
Bucatarie mobilata
Bloc reabiliat termic
Lift
Broker Imobiliar
Raluca Utica
Consultant imobiliar
0317 xxx xxx
PROPRIETATI SIMILARE
Apartament, 3 rooms, 97 mp Bucuresti/Pipera
0 €/mp
Net
97 mp
Floor
2
Const.
2025
Apartament, 3 rooms in Pipera Concept II Bucuresti/Pipera
0 €/mp
Net
81.53 mp
Floor
1
Const.
2024

LOCALIZARE

Loan calculator
Monthly amount: 8.362 LEI Interest rate: 4.97%
PROPRIETATI SIMILARE