Apartament, 1 room, 40.7 mp, Bucuresti / Sector 1 / Pipera

  • Zona
    PIPERA
  • Rooms
    1 room
  • Net
    40.7 mp
  • Floor
    2
  • Const.
    2024
PRET VANZARE + TVA
105.000 €

DESCRIERE

SVN Residentialist va propune spre achizitie un studio modern, complet mobilat si utilat, situat in complexul rezidential Ivory Residence, zona Rond OMV – Pipera.

Caracteristici apartament
An constructie: 2023, faza a 3-a
Etaj: 2 din 4
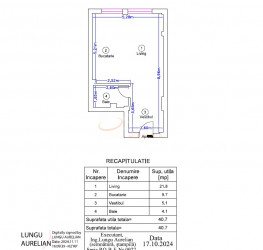
Suprafata utila: 40,7 metri patrati
Compartimentare: living spatios cu bucatarie open-space, baie
Orientare: vest
Incalzire in pardoseala, finisaje premium, mobilier si electrocasnice de calitate superioara

Beneficii
Apartament luminos si primitor
Complet mobilat si utilat – gata de mutare imediata
Balcon inchis pentru confort si spatiu suplimentar
Complex modern, construit recent, cu standarde ridicate

Zona si accesibilitate
Ivory Residence se afla in imediata apropiere a rondului OMV Pipera, cu acces facil catre statia de metrou Pipera, zona de birouri Dimitrie Pompeiu si cartierul Aviatiei.
In apropiere se gasesc magazine, restaurante, centre comerciale, sali de fitness si toate facilitatile necesare unui stil de viata modern.

Pretabil atat ca locuinta proprie, cat si ca investitie, cu potential de inchiriere la un randament foarte bun.

Pretul este de105.000 euro + TVA (se vinde de pe firma).

Pentru mai multe detalii si pentru vizionari va stam la dispozitie!

ATRIBUTE

Construction age
New
Gross surface
, 46.8 mp
Net Surface
40.7 mp
Structure
2 / 4
Floor
2
Rooms
1 room
Bathrooms
1
Balconies
, 0 balcoane
Convenience
1
Split
Semidecomandat
Construction type
In bloc
Construction status
Finished
Construction year
2024
Level one location
BUCURESTI
Level two location
SECTOR 1
Level three location
PIPERA
Gps lat
44.493642
Gps lng
26.124451
Primary energy consumption
0.00
Co2 consumption index
0.00
Renewable energy consumption
0.00
Tag
QkVTVCBDSE9JQ0U=

FACILITATI

Supraveghere 24/7
Supraveghere video
Curent electric
Interfon
Detector de gaze
Sistem de alarma
Geamuri termopan
Parchet
Apometre
Gresie
Faianta
Incalzire prin pardoseala
Incalzire proprie
Mobilat
Aer conditionat
Bucatarie mobilata
Lift

ATRIBUTE

Construction age
New
Gross surface
, 46.8 mp
Net Surface
40.7 mp
Structure
2 / 4
Floor
2
Rooms
1 room
Bathrooms
1
Balconies
, 0 balcoane
Convenience
1
Split
Semidecomandat
Construction type
In bloc
Construction status
Finished
Construction year
2024
Level one location
BUCURESTI
Level two location
SECTOR 1
Level three location
PIPERA
Gps lat
44.493642
Gps lng
26.124451
Primary energy consumption
0.00
Co2 consumption index
0.00
Renewable energy consumption
0.00
Tag
QkVTVCBDSE9JQ0U=

DESCRIERE

SVN Residentialist va propune spre achizitie un studio modern, complet mobilat si utilat, situat in complexul rezidential Ivory Residence, zona Rond OMV – Pipera.

Caracteristici apartament
An constructie: 2023, faza a 3-a
Etaj: 2 din 4
Suprafata utila: 40,7 metri patrati
Compartimentare: living spatios cu bucatarie open-space, baie
Orientare: vest
Incalzire in pardoseala, finisaje premium, mobilier si electrocasnice de calitate superioara

Beneficii
Apartament luminos si primitor
Complet mobilat si utilat – gata de mutare imediata
Balcon inchis pentru confort si spatiu suplimentar
Complex modern, construit recent, cu standarde ridicate

Zona si accesibilitate
Ivory Residence se afla in imediata apropiere a rondului OMV Pipera, cu acces facil catre statia de metrou Pipera, zona de birouri Dimitrie Pompeiu si cartierul Aviatiei.
In apropiere se gasesc magazine, restaurante, centre comerciale, sali de fitness si toate facilitatile necesare unui stil de viata modern.

Pretabil atat ca locuinta proprie, cat si ca investitie, cu potential de inchiriere la un randament foarte bun.

Pretul este de105.000 euro + TVA (se vinde de pe firma).

Pentru mai multe detalii si pentru vizionari va stam la dispozitie!

FACILITATI

Supraveghere 24/7
Supraveghere video
Curent electric
Interfon
Detector de gaze
Sistem de alarma
Geamuri termopan
Parchet
Apometre
Gresie
Faianta
Incalzire prin pardoseala
Incalzire proprie
Mobilat
Aer conditionat
Bucatarie mobilata
Lift
Broker Imobiliar
Nicusor Gavrila
Consultant imobiliar
0317 xxx xxx
PROPRIETATI SIMILARE
Apartament, 1 room, 41.4 mp Bucuresti/Pipera
0 €/mp
Net
41.4 mp
Floor
2
Const.
2025
Apartament, 1 room, 37.4 mp Bucuresti/Pipera
0 €/mp
Net
37.4 mp
Floor
7
Const.
2023
Apartament, 1 room, 40.1 mp Bucuresti/Pipera
0 €/mp
Net
40.1 mp
Floor
5
Const.
2025

LOCALIZARE

Loan calculator
Monthly amount: 2.311 LEI Interest rate: 4.97%
PROPRIETATI SIMILARE