Apartament, 3 rooms with underground parking included, Bucuresti / Sector 1 / P-ta Presei Libere

  • Zona
    P-TA PRESEI LIBERE
  • Rooms
    3 rooms
  • Net
    63.45 mp
  • Floor
    1
  • Const.
    2020
PRET VANZARE
265.000 €

DESCRIERE

SVN Romania va propune spre vanzare un apartament de 3 camere in complexul rezidential Parcului 20, in zona Expozitiei - Piata Presei.

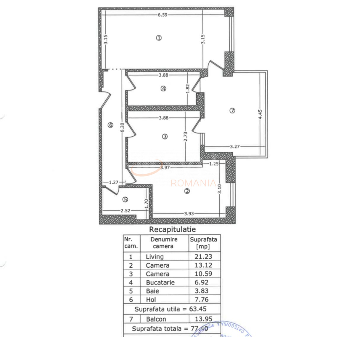
Apartamentul este situat la etajul 1/11, intr-un bloc construit in 2020, decomandat, avand o suprafata utila de 63.45 mp si o terasa de 13.95 mp.

Acesta este pozitionat pe partea din fata a cladirii, avand vedere libera nefiind obstructionata de alte cladiri.

Locuinta se vinde complet mobilata si utilata, asa cum este prezentata in imagini.

In pretul de vanzare este inclus si un loc de parcare in subteran.
Apartamentul este situat in complexul rezidential Parcului 20 by Cordia, un ansamblu premium ce beneficiaza de paza permanenta 24/7, supraveghere video si o curte interioara amenajata modern.

Locuinta se vinde complet mobilata si utilata, exact ca in fotografii, mobilierul si electrocasnicele fiind incluse in pret. Bucataria este complet echipata, inclusiv cu masina de spalat vase, oferind tot confortul necesar unei locuinte moderne.

Apartamentul este bine compartimentat si cuprinde un living luminos, un dormitor matrimonial, bucatarie si o a treia camera care in prezent este amenajata ca dressing si birou. Aceasta poate fi usor reconfigurata in functie de nevoile viitorului proprietar, putand deveni dormitor pentru copil, birou sau camera de oaspeti.

Pentru mai multe informatii sau pentru programarea vizionarilor, contactul meu va sta la dispozitie!

ATRIBUTE

Construction age
Old
Gross surface
, 77.4 mp
Net Surface
63.45 mp
Terrace surface
, 13.95 mp
Structure
1 / 11
Floor
1
Rooms
3 rooms
Bathrooms
1
Balconies
, 0 balcoane
Convenience
1
Split
Decomandat
Construction type
In bloc
Construction status
Finished
Construction year
2020
Level one location
BUCURESTI
Level two location
SECTOR 1
Level three location
P-TA PRESEI LIBERE
Gps lat
44.478873
Gps lng
26.054125
Terraces
1
Primary energy consumption
0.00
Co2 consumption index
0.00
Renewable energy consumption
0.00
Tag
QkVTVCBDSE9JQ0U=
Parkings
1
Price included parking
1

FACILITATI

Supraveghere 24/7
Supraveghere video
Cablu TV
Curent electric
Internet prin fibra optica
Internet Wireless
Interfon
Geamuri termopan
Parchet
Apometre
Gresie
Underground parking
Faianta
Incalzire prin pardoseala
Incalzire proprie
Calorifere
Mobilat
Aer conditionat
Bucatarie mobilata
Bloc reabiliat termic
Lift

ATRIBUTE

Construction age
Old
Gross surface
, 77.4 mp
Net Surface
63.45 mp
Terrace surface
, 13.95 mp
Structure
1 / 11
Floor
1
Rooms
3 rooms
Bathrooms
1
Balconies
, 0 balcoane
Convenience
1
Split
Decomandat
Construction type
In bloc
Construction status
Finished
Construction year
2020
Level one location
BUCURESTI
Level two location
SECTOR 1
Level three location
P-TA PRESEI LIBERE
Gps lat
44.478873
Gps lng
26.054125
Terraces
1
Primary energy consumption
0.00
Co2 consumption index
0.00
Renewable energy consumption
0.00
Tag
QkVTVCBDSE9JQ0U=
Parkings
1
Price included parking
1

DESCRIERE

SVN Romania va propune spre vanzare un apartament de 3 camere in complexul rezidential Parcului 20, in zona Expozitiei - Piata Presei.

Apartamentul este situat la etajul 1/11, intr-un bloc construit in 2020, decomandat, avand o suprafata utila de 63.45 mp si o terasa de 13.95 mp.

Acesta este pozitionat pe partea din fata a cladirii, avand vedere libera nefiind obstructionata de alte cladiri.

Locuinta se vinde complet mobilata si utilata, asa cum este prezentata in imagini.

In pretul de vanzare este inclus si un loc de parcare in subteran.
Apartamentul este situat in complexul rezidential Parcului 20 by Cordia, un ansamblu premium ce beneficiaza de paza permanenta 24/7, supraveghere video si o curte interioara amenajata modern.

Locuinta se vinde complet mobilata si utilata, exact ca in fotografii, mobilierul si electrocasnicele fiind incluse in pret. Bucataria este complet echipata, inclusiv cu masina de spalat vase, oferind tot confortul necesar unei locuinte moderne.

Apartamentul este bine compartimentat si cuprinde un living luminos, un dormitor matrimonial, bucatarie si o a treia camera care in prezent este amenajata ca dressing si birou. Aceasta poate fi usor reconfigurata in functie de nevoile viitorului proprietar, putand deveni dormitor pentru copil, birou sau camera de oaspeti.

Pentru mai multe informatii sau pentru programarea vizionarilor, contactul meu va sta la dispozitie!

FACILITATI

Supraveghere 24/7
Supraveghere video
Cablu TV
Curent electric
Internet prin fibra optica
Internet Wireless
Interfon
Geamuri termopan
Parchet
Apometre
Gresie
Underground parking
Faianta
Incalzire prin pardoseala
Incalzire proprie
Calorifere
Mobilat
Aer conditionat
Bucatarie mobilata
Bloc reabiliat termic
Lift
Broker Imobiliar
Cristian Vasile
Consultant imobiliar
0317 xxx xxx
PROPRIETATI SIMILARE

LOCALIZARE

Loan calculator
Monthly amount: 5.833 LEI Interest rate: 4.97%
PROPRIETATI SIMILARE