Apartament, 3 rooms, 80 mp, Bucuresti / Sector 1 / Iancu Nicolae

  • Zona
    IANCU NICOLAE
  • Rooms
    3 rooms
  • Net
    80 mp
  • Floor
    7
  • Const.
    2024
PRET VANZARE
330.000 €

DESCRIERE

SVN Romania va propune spre vanzare un apartament modern cu 3 camere, situat in ansamblul rezidential Cortina 126, pe Bulevardul Iancu Nicolae, una dintre cele mai exclusiviste zone rezidentiale din nordul Capitalei.

Apartamentul este amplasat la etajul 7, etaj superior, beneficiind de lumina naturala din abundenta si vedere deschisa. Proprietatea se preda nemobilata, dar utilata, oferind oportunitatea urmatorilor proprietari de a o stiliza dupa propriul gust

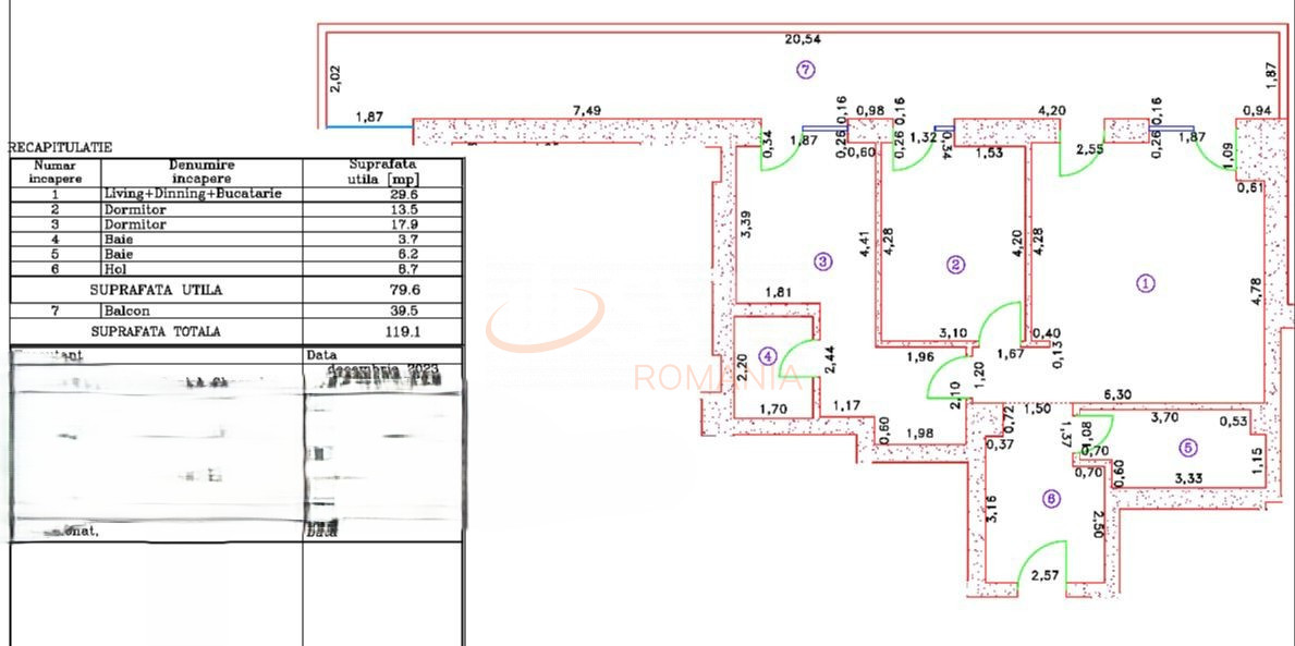
Compartimentarea este eficienta si functionala, incluzand un living generos cu zona de dining, bucatarie complet echipata, doua dormitoare confortabile, bai moderne si spatii de depozitare bine integrate. Finisajele sunt premium, incluzand parchet de inalta calitate, ceramica si obiecte sanitare de top, usi interioare moderne si iluminat ambiental.

Apartamentul beneficiaza de incalzire in pardoseala, sistem de climatizare performant si ferestre ample cu tamplarie premium, oferind un nivel ridicat de confort si eficienta energetica.

Ansamblul rezidential Cortina 126 ofera standarde ridicate de locuire, cu acces securizat, paza permanenta, lifturi moderne, parcari subterane si spatii comune atent amenajate.

Localizarea pe Iancu Nicolae asigura acces rapid catre scolile internationale, zonele de business din Pipera, centre comerciale, restaurante, spatii verzi si principalele artere de circulatie.
Se poate achizitiona loc de parcare subteran separat astfel:
LP-1 25.000+tva
LP-2 18.000+tva

Proprietatea este ideala pentru cei care cauta un apartament premium, intr-un complex modern, intr-o zona exclusivista a orasului.

ATRIBUTE

Construction age
New
Gross surface
, 120 mp
Net Surface
80 mp
Terrace surface
, 40 mp
Structure
7 / 8
Floor
7
Rooms
3 rooms
Bathrooms
2
Balconies
, 0 balcoane
Convenience
1
Split
Semidecomandat
Construction type
In bloc
Construction status
Finished
Construction year
2024
Level one location
BUCURESTI
Level two location
SECTOR 1
Level three location
IANCU NICOLAE
Gps lat
44.517233
Gps lng
26.110212
Terraces
1
Primary energy consumption
0.00
Co2 consumption index
0.00
Renewable energy consumption
0.00
Tag
QkVTVCBDSE9JQ0U=
Parkings
1

FACILITATI

Sistem de alarma
Supraveghere video
Interfon
Supraveghere 24/7
Internet Wireless
Cablu TV
Curent electric
Internet prin cablu
Internet prin fibra optica
Geamuri termopan
Repartitoare
Parchet
Apometre
Gresie
Telefon
Faianta
Incalzire prin pardoseala
WC serviciu
Aer conditionat
Lift

ATRIBUTE

Construction age
New
Gross surface
, 120 mp
Net Surface
80 mp
Terrace surface
, 40 mp
Structure
7 / 8
Floor
7
Rooms
3 rooms
Bathrooms
2
Balconies
, 0 balcoane
Convenience
1
Split
Semidecomandat
Construction type
In bloc
Construction status
Finished
Construction year
2024
Level one location
BUCURESTI
Level two location
SECTOR 1
Level three location
IANCU NICOLAE
Gps lat
44.517233
Gps lng
26.110212
Terraces
1
Primary energy consumption
0.00
Co2 consumption index
0.00
Renewable energy consumption
0.00
Tag
QkVTVCBDSE9JQ0U=
Parkings
1

DESCRIERE

SVN Romania va propune spre vanzare un apartament modern cu 3 camere, situat in ansamblul rezidential Cortina 126, pe Bulevardul Iancu Nicolae, una dintre cele mai exclusiviste zone rezidentiale din nordul Capitalei.

Apartamentul este amplasat la etajul 7, etaj superior, beneficiind de lumina naturala din abundenta si vedere deschisa. Proprietatea se preda nemobilata, dar utilata, oferind oportunitatea urmatorilor proprietari de a o stiliza dupa propriul gust

Compartimentarea este eficienta si functionala, incluzand un living generos cu zona de dining, bucatarie complet echipata, doua dormitoare confortabile, bai moderne si spatii de depozitare bine integrate. Finisajele sunt premium, incluzand parchet de inalta calitate, ceramica si obiecte sanitare de top, usi interioare moderne si iluminat ambiental.

Apartamentul beneficiaza de incalzire in pardoseala, sistem de climatizare performant si ferestre ample cu tamplarie premium, oferind un nivel ridicat de confort si eficienta energetica.

Ansamblul rezidential Cortina 126 ofera standarde ridicate de locuire, cu acces securizat, paza permanenta, lifturi moderne, parcari subterane si spatii comune atent amenajate.

Localizarea pe Iancu Nicolae asigura acces rapid catre scolile internationale, zonele de business din Pipera, centre comerciale, restaurante, spatii verzi si principalele artere de circulatie.
Se poate achizitiona loc de parcare subteran separat astfel:
LP-1 25.000+tva
LP-2 18.000+tva

Proprietatea este ideala pentru cei care cauta un apartament premium, intr-un complex modern, intr-o zona exclusivista a orasului.

FACILITATI

Sistem de alarma
Supraveghere video
Interfon
Supraveghere 24/7
Internet Wireless
Cablu TV
Curent electric
Internet prin cablu
Internet prin fibra optica
Geamuri termopan
Repartitoare
Parchet
Apometre
Gresie
Telefon
Faianta
Incalzire prin pardoseala
WC serviciu
Aer conditionat
Lift
Broker Imobiliar
Anamaria Postolache
Consultant imobiliar
0317 xxx xxx

LOCALIZARE

Loan calculator
Monthly amount: 7.264 LEI Interest rate: 4.97%
PROPRIETATI SIMILARE