Apartament, 2 rooms, 104 mp, Bucuresti / Sector 1 / Dorobanti

  • Zona
    DOROBANTI
  • Rooms
    2 rooms
  • Net
    104 mp
  • Floor
    5
  • Const.
    2010
PRET VANZARE
230.000 €

DESCRIERE

SVN Residentialist va propune spre vanzare o proprietate imobiliara unica, compusa dintr-un apartament cu 2 camere foarte spatios, reprezentand o oportunitate excelenta atat pentru locuire, cat si pentru investitie.

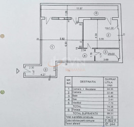
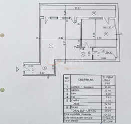
Suprafata utila totala a proprietatii este de 104 mp din care o terasa cu o suprafata utila totala de 15 mp. Proprietatea este complet mobilata si utilata, oferind confort si functionalitate, fiind pregatita pentru utilizare imediata.

Apartamentul cu 2 camere are o suprafata utila de 74,38 mp si beneficiaza de o compartimentare practica, incluzand bucatarie, baie, vestibul, living, dormitor, un al doilea vestibul si cealalta terasa, cu o suprafata utila de 14,93 mp, oferind un spatiu exterior generos si bine integrat.

Localizarea este una de exceptie, proprietatea fiind situata la doar 2 minute de Grupul Sportiv Dinamo si Sala Polivalenta Dinamo, 5 minute de statia de metrou Stefan cel Mare si aproximativ 7 minute de Piata Victoriei. Zona ofera acces rapid catre multiple mijloace de transport in comun, centre de interes urban, spatii verzi, restaurante si facilitati comerciale.

Pentru mai multe detalii si vizionari asteptam sa ne contactati.

ATRIBUTE

Construction age
Old
Gross surface
, 160.4 mp
Net Surface
104 mp
Terrace surface
, 14.93 mp
Structure
5 / 7
Floor
5
Rooms
2 rooms
Bathrooms
2
Balconies
1 balcon
Convenience
1
Split
Semidecomandat
Construction type
In bloc
Construction status
Finished
Construction year
2010
Level one location
BUCURESTI
Level two location
SECTOR 1
Level three location
DOROBANTI
Gps lat
44.454298
Gps lng
26.099855
Primary energy consumption
0.00
Co2 consumption index
0.00
Renewable energy consumption
0.00
Tag
RkFNSUxZIFRZUEU=

FACILITATI

Curent electric
Internet prin fibra optica
Interfon
Geamuri termopan
Parchet
Apometre
Gresie
Faianta
Gaz
Incalzire proprie
Calorifere
Mobilat
Aer conditionat
Bucatarie mobilata
Bloc reabiliat termic
Lift

ATRIBUTE

Construction age
Old
Gross surface
, 160.4 mp
Net Surface
104 mp
Terrace surface
, 14.93 mp
Structure
5 / 7
Floor
5
Rooms
2 rooms
Bathrooms
2
Balconies
1 balcon
Convenience
1
Split
Semidecomandat
Construction type
In bloc
Construction status
Finished
Construction year
2010
Level one location
BUCURESTI
Level two location
SECTOR 1
Level three location
DOROBANTI
Gps lat
44.454298
Gps lng
26.099855
Primary energy consumption
0.00
Co2 consumption index
0.00
Renewable energy consumption
0.00
Tag
RkFNSUxZIFRZUEU=

DESCRIERE

SVN Residentialist va propune spre vanzare o proprietate imobiliara unica, compusa dintr-un apartament cu 2 camere foarte spatios, reprezentand o oportunitate excelenta atat pentru locuire, cat si pentru investitie.

Suprafata utila totala a proprietatii este de 104 mp din care o terasa cu o suprafata utila totala de 15 mp. Proprietatea este complet mobilata si utilata, oferind confort si functionalitate, fiind pregatita pentru utilizare imediata.

Apartamentul cu 2 camere are o suprafata utila de 74,38 mp si beneficiaza de o compartimentare practica, incluzand bucatarie, baie, vestibul, living, dormitor, un al doilea vestibul si cealalta terasa, cu o suprafata utila de 14,93 mp, oferind un spatiu exterior generos si bine integrat.

Localizarea este una de exceptie, proprietatea fiind situata la doar 2 minute de Grupul Sportiv Dinamo si Sala Polivalenta Dinamo, 5 minute de statia de metrou Stefan cel Mare si aproximativ 7 minute de Piata Victoriei. Zona ofera acces rapid catre multiple mijloace de transport in comun, centre de interes urban, spatii verzi, restaurante si facilitati comerciale.

Pentru mai multe detalii si vizionari asteptam sa ne contactati.

FACILITATI

Curent electric
Internet prin fibra optica
Interfon
Geamuri termopan
Parchet
Apometre
Gresie
Faianta
Gaz
Incalzire proprie
Calorifere
Mobilat
Aer conditionat
Bucatarie mobilata
Bloc reabiliat termic
Lift
Broker Imobiliar
Alexandra Duma
Consultant imobiliar
0317 xxx xxx
PROPRIETATI SIMILARE
Apartament, 2 rooms, 92.1 mp Bucuresti/Dorobanti
0 €/mp
Net
92.1 mp
Floor
3
Const.
2010
Apartament, 2 rooms, 70.1 mp Bucuresti/Dorobanti
0 €/mp
Net
70.1 mp
Floor
4
Const.
2010
Apartament, 2 rooms, 41.56 mp Bucuresti/Dorobanti
0 €/mp
Net
41.56 mp
Floor
7
Const.
1976
Apartament, 2 rooms, 55 mp Bucuresti/Dorobanti
0 €/mp
Net
55 mp
Floor
4
Const.
1967

LOCALIZARE

Loan calculator
Monthly amount: 5.063 LEI Interest rate: 4.97%
PROPRIETATI SIMILARE