Apartament, 3 rooms with underground parking included, Bucuresti / Sector 1 / Aviatiei

  • Zona
    AVIATIEI
  • Rooms
    3 rooms
  • Net
    112 mp
  • Floor
    P
  • Const.
    2024
PRET VANZARE + TVA
390.000 €

DESCRIERE

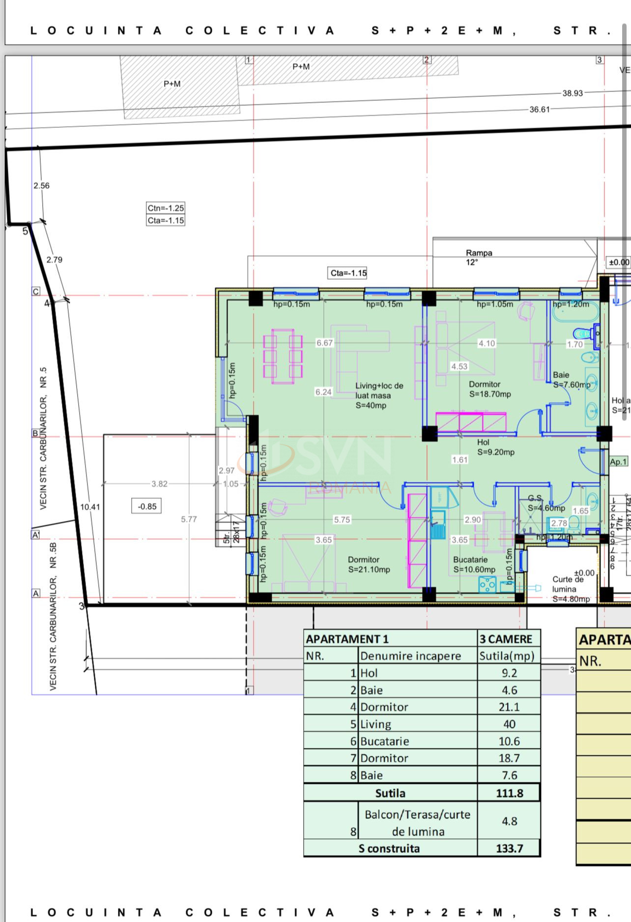
SVN Romania va prezenta un apartament spatios si elegant, situat la parter, cu o suprafata utila de 111.8 mp, balcon de 4.8 mp si o curte privata generoasa de 160 mp – un spatiu ideal pentru relaxare, loc de joaca sau petreceri in aer liber.

Compartimentare:

Hol – 9.2 mp
Baie – 4.6 mp
Dormitor matrimonial – 18.7 mp
Baie matrimoniala – 7.6 mp
Living spatios – 40 mp
Bucatarie inchisa – 10.6 mp
Dormitor secundar – 21 mp

Dotari si finisaje:

-Tamplarie VEKA
-Parchet din lemn natural lipit
-Gresie si faianta moderne
-Incalzire in pardoseala TECE
-Centrala termica proprie Viesmann
-Bucatarie complet mobilata si utilata
-Balcon de 4.8 mp

Ideal pentru:
Familii care doresc un stil de viata confortabil si intim, dar si pentru investitori in cautarea unei proprietati cu randament ridicat la inchiriere.

Pret:
310.000€ + TVA apartamentul
15.000€ + TVA loc de parcare subteran

Pentru mai multe detalii si programari vizionari, nu ezitati sa ne contactati!

ATRIBUTE

Construction age
New
Gross surface
, 128 mp
Net Surface
112 mp
Terrace surface
, 5 mp
Structure
P / 4
Floor
P
Rooms
3 rooms
Bathrooms
2
Balconies
, 0 balcoane
Convenience
1
Split
Decomandat
Construction type
In bloc
Construction status
Finished
Construction year
2024
Level one location
BUCURESTI
Level two location
SECTOR 1
Level three location
AVIATIEI
Gps lat
44.491024
Gps lng
26.094682
Terraces
1
Primary energy consumption
0.00
Co2 consumption index
0.00
Renewable energy consumption
0.00
Tag
QkVTVCBDSE9JQ0U=

FACILITATI

Cablu TV
Curent electric
Internet prin cablu
Internet Wireless
Interfon
Geamuri termopan
Parchet
Gresie
Telefon
Underground parking
Faianta
Gaz
Incalzire prin pardoseala
WC serviciu
Mobilat
Aer conditionat
Bucatarie mobilata
Lift

ATRIBUTE

Construction age
New
Gross surface
, 128 mp
Net Surface
112 mp
Terrace surface
, 5 mp
Structure
P / 4
Floor
P
Rooms
3 rooms
Bathrooms
2
Balconies
, 0 balcoane
Convenience
1
Split
Decomandat
Construction type
In bloc
Construction status
Finished
Construction year
2024
Level one location
BUCURESTI
Level two location
SECTOR 1
Level three location
AVIATIEI
Gps lat
44.491024
Gps lng
26.094682
Terraces
1
Primary energy consumption
0.00
Co2 consumption index
0.00
Renewable energy consumption
0.00
Tag
QkVTVCBDSE9JQ0U=

DESCRIERE

SVN Romania va prezenta un apartament spatios si elegant, situat la parter, cu o suprafata utila de 111.8 mp, balcon de 4.8 mp si o curte privata generoasa de 160 mp – un spatiu ideal pentru relaxare, loc de joaca sau petreceri in aer liber.

Compartimentare:

Hol – 9.2 mp
Baie – 4.6 mp
Dormitor matrimonial – 18.7 mp
Baie matrimoniala – 7.6 mp
Living spatios – 40 mp
Bucatarie inchisa – 10.6 mp
Dormitor secundar – 21 mp

Dotari si finisaje:

-Tamplarie VEKA
-Parchet din lemn natural lipit
-Gresie si faianta moderne
-Incalzire in pardoseala TECE
-Centrala termica proprie Viesmann
-Bucatarie complet mobilata si utilata
-Balcon de 4.8 mp

Ideal pentru:
Familii care doresc un stil de viata confortabil si intim, dar si pentru investitori in cautarea unei proprietati cu randament ridicat la inchiriere.

Pret:
310.000€ + TVA apartamentul
15.000€ + TVA loc de parcare subteran

Pentru mai multe detalii si programari vizionari, nu ezitati sa ne contactati!

FACILITATI

Cablu TV
Curent electric
Internet prin cablu
Internet Wireless
Interfon
Geamuri termopan
Parchet
Gresie
Telefon
Underground parking
Faianta
Gaz
Incalzire prin pardoseala
WC serviciu
Mobilat
Aer conditionat
Bucatarie mobilata
Lift
Broker Imobiliar
Andrei Haiduc
Consultant imobiliar
0317 xxx xxx
PROPRIETATI SIMILARE
Apartament, 3 rooms, 76.1 mp Bucuresti/Aviatiei
0 €/mp
Net
76.1 mp
Floor
9
Const.
2025
Apartament, 3 rooms in City Point 2 Bucuresti/Aviatiei
0 €/mp
Net
122.21 mp
Floor
11
Const.
2026
Apartament, 3 rooms, 78 mp Bucuresti/Aviatiei
0 €/mp
Net
78 mp
Floor
9
Const.
2025
Apartament, 3 rooms, 65 mp Bucuresti/Aviatiei
0 €/mp
Net
65 mp
Floor
3
Const.
1984
Apartament, 3 rooms, 80 mp Bucuresti/Aviatiei
0 €/mp
Net
80 mp
Floor
3
Const.
2021

LOCALIZARE

Loan calculator
Monthly amount: 8.584 LEI Interest rate: 4.97%
PROPRIETATI SIMILARE