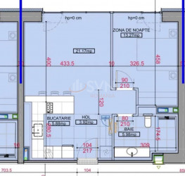
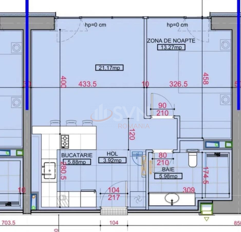
Apartament, 2 rooms, 50 mp, Bucuresti / Sector 1 / Aviatiei

  • Zona
    AVIATIEI
  • Rooms
    2 rooms
  • Net
    50 mp
  • Floor
    4
  • Const.
    2026
PRET VANZARE
225.000 €

DESCRIERE

SVN Residentialist Pipera va propune spre vanzare un apartament modern cu 2 camere, situat in complexul rezidential One High District, unul dintre cele mai exclusiviste proiecte rezidentiale din nordul Bucurestiului. Proprietatea se remarca prin design contemporan, compartimentare eficienta si finisaje de inalta calitate, oferind un stil de viata premium.

Apartamentul beneficiaza de spatii generoase, lumina naturala abundenta si o compartimentare practica, fiind ideal atat pentru locuire, cat si pentru investitie. Complexul One High District ofera standarde ridicate de siguranta, acces controlat, spatii comune atent amenajate si facilitati moderne.

Zona in care este amplasat ansamblul rezidential este extrem de bine conectata la principalele puncte de interes ale orasului. In proximitate se afla zone importante de birouri, centre comerciale, restaurante, scoli internationale si spatii verzi. Accesul rapid catre mijloacele de transport in comun si principalele artere rutiere asigura o mobilitate excelenta.

Avantajele principale includ locatia premium, calitatea constructiei, comunitatea exclusivista si potentialul ridicat de investitie. One High District este alegerea ideala pentru cei care isi doresc confort, siguranta si un stil de viata modern intr-o zona de top.

SVN Residentialist va asteapta la vizionare!

ATRIBUTE

Construction age
New
Gross surface
, 65 mp
Net Surface
50 mp
Terrace surface
, 15 mp
Structure
4 / 20
Floor
4
Rooms
2 rooms
Bathrooms
2
Balconies
, 0 balcoane
Convenience
Lux
Split
Decomandat
Construction type
Bloc
Construction status
Finished
Construction year
2026
Level one location
BUCURESTI
Level two location
SECTOR 1
Level three location
AVIATIEI
Gps lat
44.477909
Gps lng
26.124573
Terraces
1
Primary energy consumption
0.00
Co2 consumption index
0.00
Renewable energy consumption
0.00
Tag
QkVTVCBDSE9JQ0U=
Parkings
1

FACILITATI

Cablu TV
Curent electric
Internet prin cablu
Interfon
Sistem de alarma
Detector de gaze
Supraveghere 24/7
Geamuri termopan
Parchet
Gresie
Faianta
Incalzire proprie
Incalzire prin pardoseala
Aer conditionat
Bloc reabiliat termic
Lift

ATRIBUTE

Construction age
New
Gross surface
, 65 mp
Net Surface
50 mp
Terrace surface
, 15 mp
Structure
4 / 20
Floor
4
Rooms
2 rooms
Bathrooms
2
Balconies
, 0 balcoane
Convenience
Lux
Split
Decomandat
Construction type
Bloc
Construction status
Finished
Construction year
2026
Level one location
BUCURESTI
Level two location
SECTOR 1
Level three location
AVIATIEI
Gps lat
44.477909
Gps lng
26.124573
Terraces
1
Primary energy consumption
0.00
Co2 consumption index
0.00
Renewable energy consumption
0.00
Tag
QkVTVCBDSE9JQ0U=
Parkings
1

DESCRIERE

SVN Residentialist Pipera va propune spre vanzare un apartament modern cu 2 camere, situat in complexul rezidential One High District, unul dintre cele mai exclusiviste proiecte rezidentiale din nordul Bucurestiului. Proprietatea se remarca prin design contemporan, compartimentare eficienta si finisaje de inalta calitate, oferind un stil de viata premium.

Apartamentul beneficiaza de spatii generoase, lumina naturala abundenta si o compartimentare practica, fiind ideal atat pentru locuire, cat si pentru investitie. Complexul One High District ofera standarde ridicate de siguranta, acces controlat, spatii comune atent amenajate si facilitati moderne.

Zona in care este amplasat ansamblul rezidential este extrem de bine conectata la principalele puncte de interes ale orasului. In proximitate se afla zone importante de birouri, centre comerciale, restaurante, scoli internationale si spatii verzi. Accesul rapid catre mijloacele de transport in comun si principalele artere rutiere asigura o mobilitate excelenta.

Avantajele principale includ locatia premium, calitatea constructiei, comunitatea exclusivista si potentialul ridicat de investitie. One High District este alegerea ideala pentru cei care isi doresc confort, siguranta si un stil de viata modern intr-o zona de top.

SVN Residentialist va asteapta la vizionare!

FACILITATI

Cablu TV
Curent electric
Internet prin cablu
Interfon
Sistem de alarma
Detector de gaze
Supraveghere 24/7
Geamuri termopan
Parchet
Gresie
Faianta
Incalzire proprie
Incalzire prin pardoseala
Aer conditionat
Bloc reabiliat termic
Lift
Broker Imobiliar
Larisa Uruc
Consultant imobiliar
0317 xxx xxx
PROPRIETATI SIMILARE
Apartament, 2 rooms in Aviatiei Tower Bucuresti/Aviatiei
0 €/mp
Net
46.1 mp
Floor
3
Const.
2023
Apartament, 2 rooms, 50 mp Bucuresti/Aviatiei
0 €/mp
Net
50 mp
Floor
2
Const.
2022
Apartament, 2 rooms, 50 mp Bucuresti/Aviatiei
0 €/mp
Net
50 mp
Floor
6
Const.
2023
Apartament, 2 rooms, 55 mp Bucuresti/Aviatiei
0 €/mp
Net
55 mp
Floor
3
Const.
2023
Apartament, 2 rooms, 54.4 mp Bucuresti/Aviatiei
0 €/mp
Net
54.4 mp
Floor
3
Const.
2024

LOCALIZARE

Loan calculator
Monthly amount: 4.953 LEI Interest rate: 4.97%
PROPRIETATI SIMILARE