Apartament, 2 rooms with underground parking included, Bucuresti / Sector 1 / Aviatiei

  • Zona
    AVIATIEI
  • Rooms
    2 rooms
  • Net
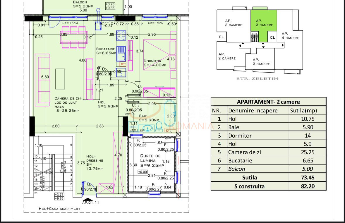
    73.45 mp
  • Floor
    1
  • Const.
    2024
PRET VANZARE
200.000 €

DESCRIERE

SVN Residentialist Pipera offers for sale a modern 2-room apartment located in a premium area of North Bucharest, close to shopping centers, parks, and major business hubs. The project stands out through solid construction, functional layout, and high-quality finishes.

Premium features and finishes:

Reinforced concrete structure with Porotherm Profi 12 brick partitions (no drywall)

Synego 7-chamber windows with triple glazing

TeCe Germany underfloor heating – comfort and energy efficiency

Individual Viessmann central heating system – in line with latest regulations

Gewiss Germany electrical installations

Granite sills, marble and granite finishes in the staircase

Balconies with secured glass and extra façade insulation

Schindler elevators and touchscreen video intercom

Pinum Italia interior doors

Delivered turnkey with superior quality finishes

Advantages:

Exclusive location in North Bucharest

Solid construction and premium materials

Parking space available – 20,000 euro

Price: The apartment is sold with 10% VAT. The remaining VAT up to 21% will be covered by the owner.

If you are looking for a spacious, modern, and well-built apartment, this project is the perfect choice for a premium home in North Bucharest. SVN Residentialist invites you to schedule a viewing!

ATRIBUTE

Construction age
New
Gross surface
, 82.2 mp
Net Surface
73.45 mp
Terrace surface
, 5 mp
Structure
1 / 4
Floor
1
Rooms
2 rooms
Bathrooms
1
Balconies
1 balcon
Convenience
Lux
Split
Decomandat
Construction type
In bloc
Construction status
Finished
Construction year
2024
Level one location
BUCURESTI
Level two location
SECTOR 1
Level three location
AVIATIEI
Gps lat
44.490152
Gps lng
26.092479
Terraces
1
Primary energy consumption
0.00
Co2 consumption index
0.00
Renewable energy consumption
0.00
Tag
QkVTVCBDSE9JQ0U=

FACILITATI

Interfon
Sistem de alarma
Detector de gaze
Supraveghere 24/7
Geamuri termopan
Parchet
Gresie
Telefon
Underground parking
Faianta
Incalzire proprie
Incalzire prin pardoseala
Aer conditionat
Lift

ATRIBUTE

Construction age
New
Gross surface
, 82.2 mp
Net Surface
73.45 mp
Terrace surface
, 5 mp
Structure
1 / 4
Floor
1
Rooms
2 rooms
Bathrooms
1
Balconies
1 balcon
Convenience
Lux
Split
Decomandat
Construction type
In bloc
Construction status
Finished
Construction year
2024
Level one location
BUCURESTI
Level two location
SECTOR 1
Level three location
AVIATIEI
Gps lat
44.490152
Gps lng
26.092479
Terraces
1
Primary energy consumption
0.00
Co2 consumption index
0.00
Renewable energy consumption
0.00
Tag
QkVTVCBDSE9JQ0U=

DESCRIERE

SVN Residentialist Pipera offers for sale a modern 2-room apartment located in a premium area of North Bucharest, close to shopping centers, parks, and major business hubs. The project stands out through solid construction, functional layout, and high-quality finishes.

Premium features and finishes:

Reinforced concrete structure with Porotherm Profi 12 brick partitions (no drywall)

Synego 7-chamber windows with triple glazing

TeCe Germany underfloor heating – comfort and energy efficiency

Individual Viessmann central heating system – in line with latest regulations

Gewiss Germany electrical installations

Granite sills, marble and granite finishes in the staircase

Balconies with secured glass and extra façade insulation

Schindler elevators and touchscreen video intercom

Pinum Italia interior doors

Delivered turnkey with superior quality finishes

Advantages:

Exclusive location in North Bucharest

Solid construction and premium materials

Parking space available – 20,000 euro

Price: The apartment is sold with 10% VAT. The remaining VAT up to 21% will be covered by the owner.

If you are looking for a spacious, modern, and well-built apartment, this project is the perfect choice for a premium home in North Bucharest. SVN Residentialist invites you to schedule a viewing!

FACILITATI

Interfon
Sistem de alarma
Detector de gaze
Supraveghere 24/7
Geamuri termopan
Parchet
Gresie
Telefon
Underground parking
Faianta
Incalzire proprie
Incalzire prin pardoseala
Aer conditionat
Lift
Broker Imobiliar
Nicoleta Stoican
Consultant imobiliar
0317 xxx xxx
PROPRIETATI SIMILARE
Apartament, 2 rooms, 60 mp Bucuresti/Aviatiei
0 €/mp
Net
60 mp
Floor
P
Const.
2012
Apartament, 2 rooms, 48.31 mp Bucuresti/Aviatiei
0 €/mp
Net
48.31 mp
Floor
7
Const.
2016
Apartament, 2 rooms, 44.43 mp Bucuresti/Aviatiei
0 €/mp
Net
44.43 mp
Floor
1
Const.
2019

LOCALIZARE

Loan calculator
Monthly amount: 4.402 LEI Interest rate: 4.97%
PROPRIETATI SIMILARE