2 rooms in Bloc Aviatiei - Serbanescu with underground parking included, Bucuresti / Sector 1 / Aviatiei

  • Zona
    AVIATIEI
  • Rooms
    2 rooms
  • Net
    61.3 mp
  • Floor
    4
  • Const.
    2021
PRET VANZARE + TVA
240.000 €

DESCRIERE

SVN Romania va propune spre vanzare un apartament de 2 camere, situat la etajul 4 al unui imobil cu 5 etaje construit in anul 2021.

Acest imobil este situat in cartierul Aviatiei, fiind pozitionat in imediata apropiere a Statiei de metrou Aurel Vlaicu.
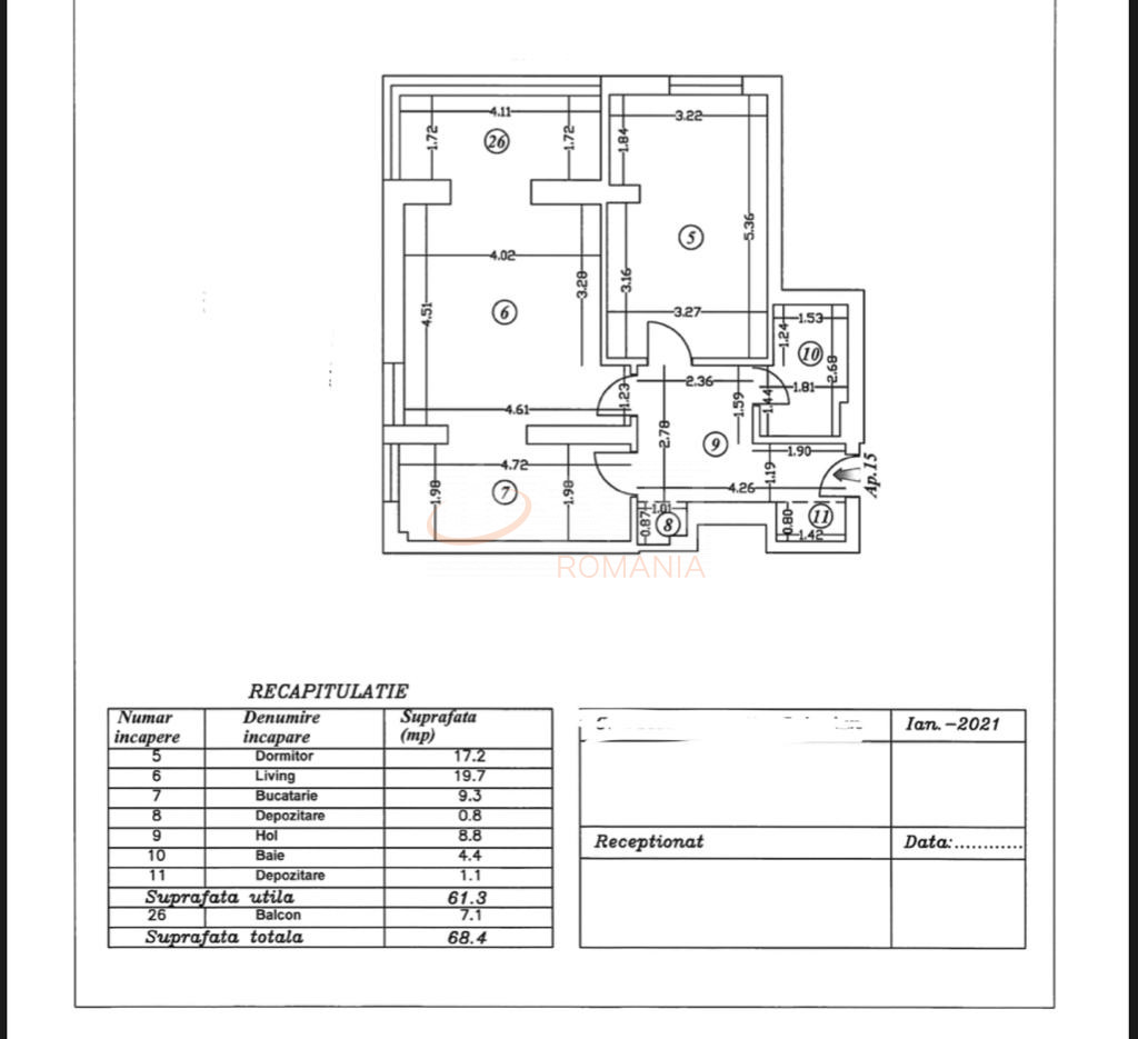
Ca structura, apartamentul este decomandat si se imparte astfel:
- Holul de acces, de 8.8 mp unde se pot amenaja zona de dressing si cuier;
- Livingul are o suprafata de 19,70 mp ce beneficiaza de suprafata vitrata foarte mare;
- Bucataria are suprafata de 9.3 mp si o fereastra mare oferind astfel aerisire naturala;
- Dormitorul in suprafata de 17.2 mp;
- Baia are o suprafata de 4.4 mp;
- Grupul sanitar este de 1.6 mp;
- Balcon la living in suprafata de 7.10 mp;
- 2 spatii de depozitare de 1.1 si 0.8 mp.

Ca dotari, apartamentul are incalzire prin centrala proprie Bosch, video interfon, tamplarie Rehau, cu geam tripan, parchet triplustratificat, obiecte sanitare Porcelanosa, glafuri interioare si exterioare de marmura, etc.

- Loc de parcare subteran este disponibil separat, contra cost 15.000 euro + tva

Momentan nu detinem informatii despre certificatul energetic dar va fi disponibil la momentul vanzarii.

Pentru alte detalii sau stabilirea unei vizionari, nu ezitati sa ne contactati.

ATRIBUTE

Construction age
New
Gross surface
, 78.7 mp
Net Surface
61.3 mp
Terrace surface
, 7.1 mp
Structure
4 / 5
Floor
4
Rooms
2 rooms
Bathrooms
1
Balconies
1 balcon
Convenience
1
Split
Decomandat
Construction type
In bloc
Construction status
Finished
Construction year
2021
Level one location
BUCURESTI
Level two location
SECTOR 1
Level three location
AVIATIEI
Gps lat
44.483365
Gps lng
26.098056
Residential complex
Bloc Aviatiei - Serbanescu
Primary energy consumption
0.00
Co2 consumption index
0.00
Renewable energy consumption
0.00
Tag
QkVTVCBDSE9JQ0U=

FACILITATI

Interfon
Internet prin cablu
Cablu TV
Internet Wireless
Curent electric
Geamuri termopan
Parchet
Apometre
Gresie
Underground parking
Faianta
Gaz
Incalzire proprie
Detector de gaze
Internet prin fibra optica
Repartitoare
Telefon
Lift
Supraveghere video
Balcon inchis

ATRIBUTE

Construction age
New
Gross surface
, 78.7 mp
Net Surface
61.3 mp
Terrace surface
, 7.1 mp
Structure
4 / 5
Floor
4
Rooms
2 rooms
Bathrooms
1
Balconies
1 balcon
Convenience
1
Split
Decomandat
Construction type
In bloc
Construction status
Finished
Construction year
2021
Level one location
BUCURESTI
Level two location
SECTOR 1
Level three location
AVIATIEI
Gps lat
44.483365
Gps lng
26.098056
Residential complex
Bloc Aviatiei - Serbanescu
Primary energy consumption
0.00
Co2 consumption index
0.00
Renewable energy consumption
0.00
Tag
QkVTVCBDSE9JQ0U=

DESCRIERE

SVN Romania va propune spre vanzare un apartament de 2 camere, situat la etajul 4 al unui imobil cu 5 etaje construit in anul 2021.

Acest imobil este situat in cartierul Aviatiei, fiind pozitionat in imediata apropiere a Statiei de metrou Aurel Vlaicu.
Ca structura, apartamentul este decomandat si se imparte astfel:
- Holul de acces, de 8.8 mp unde se pot amenaja zona de dressing si cuier;
- Livingul are o suprafata de 19,70 mp ce beneficiaza de suprafata vitrata foarte mare;
- Bucataria are suprafata de 9.3 mp si o fereastra mare oferind astfel aerisire naturala;
- Dormitorul in suprafata de 17.2 mp;
- Baia are o suprafata de 4.4 mp;
- Grupul sanitar este de 1.6 mp;
- Balcon la living in suprafata de 7.10 mp;
- 2 spatii de depozitare de 1.1 si 0.8 mp.

Ca dotari, apartamentul are incalzire prin centrala proprie Bosch, video interfon, tamplarie Rehau, cu geam tripan, parchet triplustratificat, obiecte sanitare Porcelanosa, glafuri interioare si exterioare de marmura, etc.

- Loc de parcare subteran este disponibil separat, contra cost 15.000 euro + tva

Momentan nu detinem informatii despre certificatul energetic dar va fi disponibil la momentul vanzarii.

Pentru alte detalii sau stabilirea unei vizionari, nu ezitati sa ne contactati.

FACILITATI

Interfon
Internet prin cablu
Cablu TV
Internet Wireless
Curent electric
Geamuri termopan
Parchet
Apometre
Gresie
Underground parking
Faianta
Gaz
Incalzire proprie
Detector de gaze
Internet prin fibra optica
Repartitoare
Telefon
Lift
Supraveghere video
Balcon inchis
Broker Imobiliar
Anamaria Grigorcea
Consultant imobiliar
0317 xxx xxx
PROPRIETATI SIMILARE
Apartament, 2 rooms in Aviatiei Tower Bucuresti/Aviatiei
0 €/mp
Net
46.1 mp
Floor
3
Const.
2023
Apartament, 2 rooms, 50 mp Bucuresti/Aviatiei
0 €/mp
Net
50 mp
Floor
6
Const.
2023
Apartament, 2 rooms, 54.4 mp Bucuresti/Aviatiei
0 €/mp
Net
54.4 mp
Floor
3
Const.
2024
Apartament, 2 rooms, 55 mp Bucuresti/Aviatiei
0 €/mp
Net
55 mp
Floor
4
Const.
2021
Apartament, 2 rooms, 60 mp Bucuresti/Aviatiei
1.150 €
Net
60 mp
Floor
3
Const.
2022

LOCALIZARE

Loan calculator
Monthly amount: 5.283 LEI Interest rate: 4.97%
PROPRIETATI SIMILARE