Apartament, 4 rooms with underground parking included, Bucuresti / Sector 2 / Floreasca

  • Zona
    FLOREASCA
  • Rooms
    4 rooms
  • Net
    146 mp
  • Floor
    1
  • Const.
    2016
PRET INCHIRIERE + TVA
2.950 €/luna

DESCRIERE

Elegant 4-room apartment located in the exclusive residential complex One Floreasca Lake – one of the most sought-after areas in the northern part of the city, close to Bordei Park and Herastrau Park.

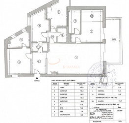
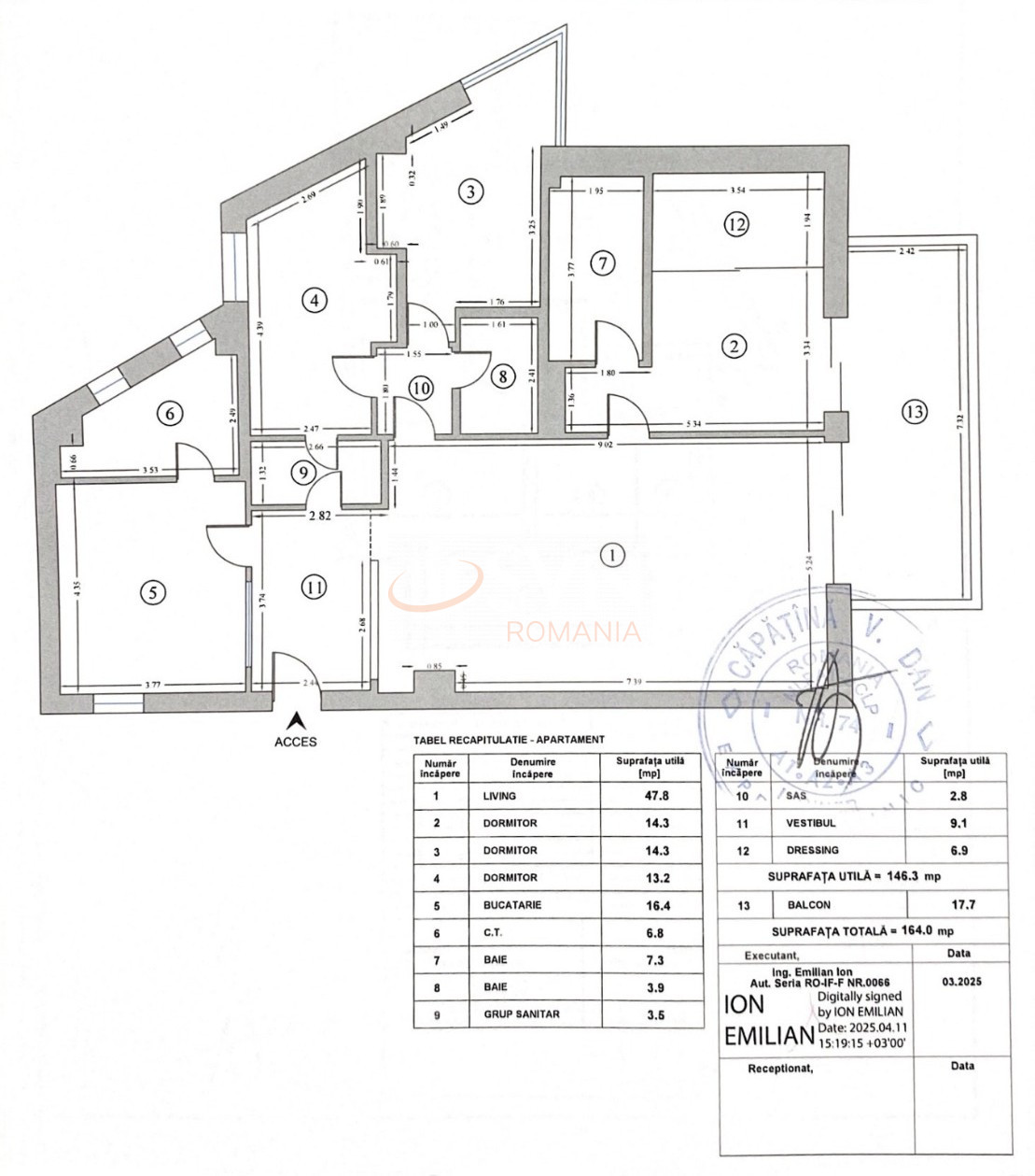
The property has a usable area of 164 sqm and is laid out as follows: spacious living room of 56 sqm with access to the balcony and inner courtyard, enclosed kitchen fully furnished and equipped, three bedrooms, two bathrooms and one guest toilet, dressing room and storage spaces. The 18 sqm balcony offers an open view, and the apartment is fully furnished and equipped.

The price includes two underground parking spaces.

The complex is a boutique development with low height regime, permanent security, controlled access, and landscaped inner courtyard with green areas.

Its premium location provides a quiet setting, in close proximity to Bordei Park and Herastrau Park, Promenada Mall, fine dining restaurants, medical centers, and the Floreasca–Aviatiei business district.

ATRIBUTE

Construction age
Old
Gross surface
, 170 mp
Net Surface
146 mp
Terrace surface
, 18 mp
Structure
1 / 6
Floor
1
Rooms
4 rooms
Bathrooms
3
Balconies
, 0 balcoane
Convenience
Lux
Split
Decomandat
Construction type
In bloc
Construction status
Finished
Construction year
2016
Level one location
BUCURESTI
Level two location
SECTOR 2
Level three location
FLOREASCA
Gps lat
44.477380
Gps lng
26.095988
Terraces
1
Tag
QkVTVCBDSE9JQ0U=
Parkings
2
Price included parking
1

FACILITATI

Supraveghere 24/7
Supraveghere video
Cablu TV
Curent electric
Internet Wireless
Interfon
Geamuri termopan
Parchet
Gresie
Underground parking
Faianta
Gaz
Incalzire proprie
Incalzire prin pardoseala
Mobilat
Aer conditionat
Bucatarie mobilata
Lift
Calorifere

ATRIBUTE

Construction age
Old
Gross surface
, 170 mp
Net Surface
146 mp
Terrace surface
, 18 mp
Structure
1 / 6
Floor
1
Rooms
4 rooms
Bathrooms
3
Balconies
, 0 balcoane
Convenience
Lux
Split
Decomandat
Construction type
In bloc
Construction status
Finished
Construction year
2016
Level one location
BUCURESTI
Level two location
SECTOR 2
Level three location
FLOREASCA
Gps lat
44.477380
Gps lng
26.095988
Terraces
1
Tag
QkVTVCBDSE9JQ0U=
Parkings
2
Price included parking
1

DESCRIERE

Elegant 4-room apartment located in the exclusive residential complex One Floreasca Lake – one of the most sought-after areas in the northern part of the city, close to Bordei Park and Herastrau Park.

The property has a usable area of 164 sqm and is laid out as follows: spacious living room of 56 sqm with access to the balcony and inner courtyard, enclosed kitchen fully furnished and equipped, three bedrooms, two bathrooms and one guest toilet, dressing room and storage spaces. The 18 sqm balcony offers an open view, and the apartment is fully furnished and equipped.

The price includes two underground parking spaces.

The complex is a boutique development with low height regime, permanent security, controlled access, and landscaped inner courtyard with green areas.

Its premium location provides a quiet setting, in close proximity to Bordei Park and Herastrau Park, Promenada Mall, fine dining restaurants, medical centers, and the Floreasca–Aviatiei business district.

FACILITATI

Supraveghere 24/7
Supraveghere video
Cablu TV
Curent electric
Internet Wireless
Interfon
Geamuri termopan
Parchet
Gresie
Underground parking
Faianta
Gaz
Incalzire proprie
Incalzire prin pardoseala
Mobilat
Aer conditionat
Bucatarie mobilata
Lift
Calorifere
Broker Imobiliar
Oana Dumitrascu
Consultant imobiliar
0317 xxx xxx
PROPRIETATI SIMILARE
Apartament, 4 rooms in Brick Lofts Bucuresti/Floreasca
4.000 €
Net
161.51 mp
Floor
5
Const.
2023
Apartament, 4 rooms in Brick Lofts Bucuresti/Floreasca
3.750 €
Net
162.53 mp
Floor
5
Const.
2023

LOCALIZARE

PROPRIETATI SIMILARE