Casa, 4 camere, 129 mp, Bucuresti / Sector 6 / Crangasi

  • Zona
    CRANGASI
  • Nr.
    4 camere
  • Supra.
    129 mp
  • Regim
    P + 1
  • Teren
    268 mp
PRET VANZARE
350.000 €

DESCRIERE

SVN Romania ofera spre vanzare o vila cu doua etaje, situata in Crangasi la 7 minute distanta de metrou. Proprietatea este compusa din doua apartamente, cate unul pe fiecare etaj (parter si etaj), avand intrare comuna.

Imobilul a fost complet renovat la interior si este gata pentru mutare. Suprafata totala construita este de 163 mp, iar terenul total aferent proprietatii este de 268 mp pe care este situat si garajul.

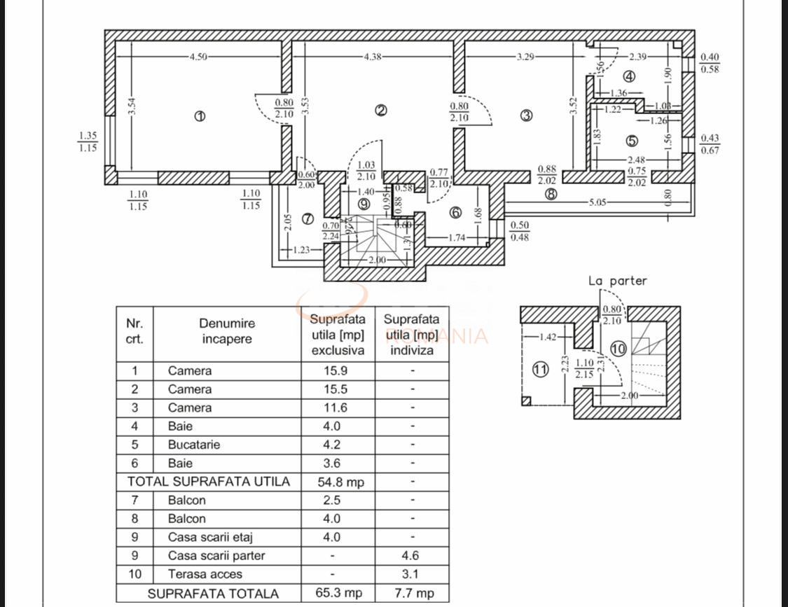
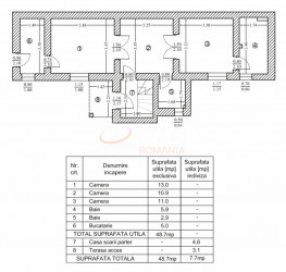
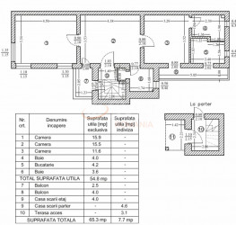
Distribuirea interioara este urmatoarea:
•Apartament parter (Ap. 1) – 48.7 mp utili (3 camere, 2 bai, bucatarie)
•Apartament etaj (Ap. 2) – 54.8 mp utili (3 camere, 2 bai, bucatarie, 2 balcoane)

In curte se mai afla o a doua casa (constructie separata – C2), care nu este a actualilor proprietari. Aceasta este ocupata de o alta persoana, iar accesul in curte se face prin aceeasi intrare comuna.

Pretul pentru intreaga vila este de 350.000 EUR.

Proprietatea este ideala pentru doua familii, investitie sau inchiriere individuala pe apartamente.

Pentru detalii suplimentare si programari vizionari, va rugam sa ne contactati.

ATRIBUTE

Vechime constructie
Veche
Suprafata construita
163 mp
Suprafata utila
129 mp
Regim Inaltime
P + 1
Etaj
P + 1
Nr. camere
4 camere
Nr. bai
4
Nr. balcoane
2 balcoane
Tip constructie
Vila
Status constructie
Finalizat
An constructie
1966
Teren suprafata
268 mp
Deschidere stradala
9 m
Oras
BUCURESTI
Judet/ Sector
SECTOR 6
Zona
CRANGASI
Gps lat
44.449649
Gps lng
26.045806
Nr. terase
1
Primary energy consumption
0.00
Co2 consumption index
0.00
Renewable energy consumption
0.00
Tag
QkVTVCBDSE9JQ0U=
Parkings
1
Garages
1

FACILITATI

Telefon
Parchet
Apa
Acoperis tabla
Gresie
Gaz
Faianta
Canalizare
Garaj
Incalzire prin pardoseala
Parcare in curte
Aer conditionat
WC serviciu
Detector de gaze
Internet Wireless
Curent electric
Gradina
Pod

ATRIBUTE

Vechime constructie
Veche
Suprafata construita
163 mp
Suprafata utila
129 mp
Regim Inaltime
P + 1
Etaj
P + 1
Nr. camere
4 camere
Nr. bai
4
Nr. balcoane
2 balcoane
Tip constructie
Vila
Status constructie
Finalizat
An constructie
1966
Teren suprafata
268 mp
Deschidere stradala
9 m
Oras
BUCURESTI
Judet/ Sector
SECTOR 6
Zona
CRANGASI
Gps lat
44.449649
Gps lng
26.045806
Nr. terase
1
Primary energy consumption
0.00
Co2 consumption index
0.00
Renewable energy consumption
0.00
Tag
QkVTVCBDSE9JQ0U=
Parkings
1
Garages
1

DESCRIERE

SVN Romania ofera spre vanzare o vila cu doua etaje, situata in Crangasi la 7 minute distanta de metrou. Proprietatea este compusa din doua apartamente, cate unul pe fiecare etaj (parter si etaj), avand intrare comuna.

Imobilul a fost complet renovat la interior si este gata pentru mutare. Suprafata totala construita este de 163 mp, iar terenul total aferent proprietatii este de 268 mp pe care este situat si garajul.

Distribuirea interioara este urmatoarea:
•Apartament parter (Ap. 1) – 48.7 mp utili (3 camere, 2 bai, bucatarie)
•Apartament etaj (Ap. 2) – 54.8 mp utili (3 camere, 2 bai, bucatarie, 2 balcoane)

In curte se mai afla o a doua casa (constructie separata – C2), care nu este a actualilor proprietari. Aceasta este ocupata de o alta persoana, iar accesul in curte se face prin aceeasi intrare comuna.

Pretul pentru intreaga vila este de 350.000 EUR.

Proprietatea este ideala pentru doua familii, investitie sau inchiriere individuala pe apartamente.

Pentru detalii suplimentare si programari vizionari, va rugam sa ne contactati.

FACILITATI

Telefon
Parchet
Apa
Acoperis tabla
Gresie
Gaz
Faianta
Canalizare
Garaj
Incalzire prin pardoseala
Parcare in curte
Aer conditionat
WC serviciu
Detector de gaze
Internet Wireless
Curent electric
Gradina
Pod
Broker Imobiliar
Anca Costache
Consultant imobiliar
0317 xxx xxx
PROPRIETATI SIMILARE
Casa, 3 camere, 65 mp Bucuresti/Crangasi
154.990 €
Supra.
65 mp
Regim
P
Teren
203 mp
Casa, 4 camere, 78 mp Bucuresti/Crangasi
157.000 €
Supra.
78 mp
Regim
P
Teren
165 mp
Casa, 5 camere, 276 mp Bucuresti/Crangasi
390.000 €
Supra.
276 mp
Regim
P + 1 + M
Teren
250 mp
Casa, 3 camere, 99 mp Bucuresti/Crangasi
154.900 €
Supra.
99 mp
Regim
P
Teren
240 mp

LOCALIZARE

Credit ipotecar
Rata lunara: 7.704 LEI Dobanda: 4.97%
PROPRIETATI SIMILARE