Casa, 9 camere, 280 mp, Bucuresti / Sector 1 / Capitale

  • Zona
    CAPITALE
  • Nr.
    9 camere
  • Supra.
    280 mp
  • Regim
    S + P + 1 + M
  • Teren
    197 mp
PRET VANZARE
1.250.000 €

DESCRIERE

SVN Residentialist va propune spre vanzare o vila interbelica situata in zona Capitale – una dintre cele mai prestigioase si bine cotate zone din Bucuresti, recunoscuta pentru eleganta, arhitectura si stabilitatea investitiilor pe termen lung.

Proprietatea pastreaza farmecul specific perioadei interbelice si a fost consolidata, oferind un echilibru foarte bun intre caracterul autentic si siguranta structurala. Cu o suprafata utila de aproximativ 250 mp, vila dispune de spatii generoase, tavane inalte si o compartimentare versatila, ce permite multiple utilizari.

In prezent, imobilul este utilizat in regim de inchiriere, beneficiind de o ocupare stabila si de lunga durata, ceea ce il recomanda ca o investitie sigura, cu continuitate.

Pozitionarea in zona Capitale aduce un avantaj major, oferind acces rapid catre Piata Victoriei, Dorobanti, institutii importante, restaurante premium si zone de business, intr-un cadru select si linistit.

O proprietate cu personalitate, intr-o locatie unde astfel de oportunitati apar din ce in ce mai rar. Pentru detalii suplimentare si vizionari, va stam la dispozitie.

ATRIBUTE

Vechime constructie
Veche
Suprafata construita
401 mp
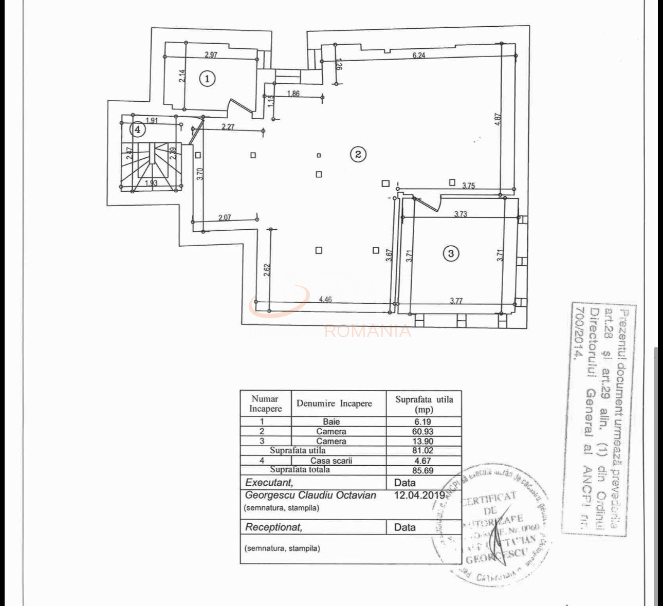
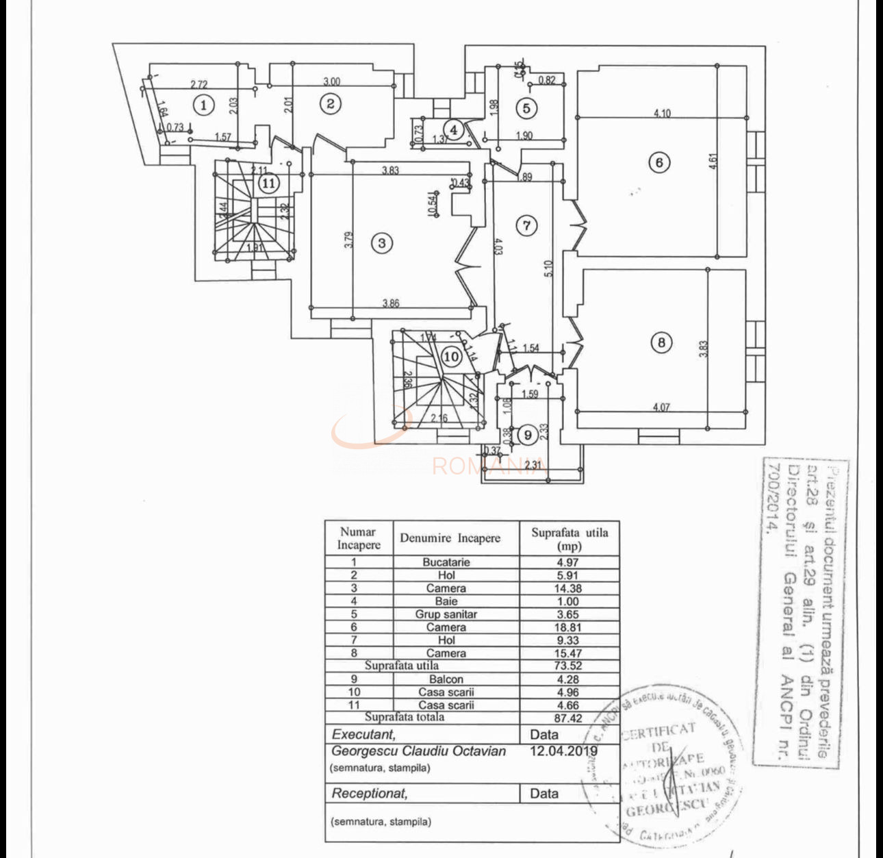
Suprafata utila
280 mp
Regim Inaltime
S + P + 1 + M
Etaj
S + P + 1 + M
Nr. camere
9 camere
Nr. bai
5
Nr. balcoane
0 balcoane
Tip constructie
Vila
Status constructie
Finalizat
An constructie
1980
Teren suprafata
197 mp
Curte Individuala
Da
Oras
BUCURESTI
Judet/ Sector
SECTOR 1
Zona
CAPITALE
Gps lat
44.454609
Gps lng
26.096888
Primary energy consumption
0.00
Co2 consumption index
0.00
Renewable energy consumption
0.00
Tag
QkVTVCBDSE9JQ0U=

FACILITATI

Geamuri termopan
Telefon
Acoperis tigla
Parchet
Apa
Gresie
Gaz
Faianta
Consolidata
Aer conditionat
Curent electric
Cablu TV
Gradina
Pod

ATRIBUTE

Vechime constructie
Veche
Suprafata construita
401 mp
Suprafata utila
280 mp
Regim Inaltime
S + P + 1 + M
Etaj
S + P + 1 + M
Nr. camere
9 camere
Nr. bai
5
Nr. balcoane
0 balcoane
Tip constructie
Vila
Status constructie
Finalizat
An constructie
1980
Teren suprafata
197 mp
Curte Individuala
Da
Oras
BUCURESTI
Judet/ Sector
SECTOR 1
Zona
CAPITALE
Gps lat
44.454609
Gps lng
26.096888
Primary energy consumption
0.00
Co2 consumption index
0.00
Renewable energy consumption
0.00
Tag
QkVTVCBDSE9JQ0U=

DESCRIERE

SVN Residentialist va propune spre vanzare o vila interbelica situata in zona Capitale – una dintre cele mai prestigioase si bine cotate zone din Bucuresti, recunoscuta pentru eleganta, arhitectura si stabilitatea investitiilor pe termen lung.

Proprietatea pastreaza farmecul specific perioadei interbelice si a fost consolidata, oferind un echilibru foarte bun intre caracterul autentic si siguranta structurala. Cu o suprafata utila de aproximativ 250 mp, vila dispune de spatii generoase, tavane inalte si o compartimentare versatila, ce permite multiple utilizari.

In prezent, imobilul este utilizat in regim de inchiriere, beneficiind de o ocupare stabila si de lunga durata, ceea ce il recomanda ca o investitie sigura, cu continuitate.

Pozitionarea in zona Capitale aduce un avantaj major, oferind acces rapid catre Piata Victoriei, Dorobanti, institutii importante, restaurante premium si zone de business, intr-un cadru select si linistit.

O proprietate cu personalitate, intr-o locatie unde astfel de oportunitati apar din ce in ce mai rar. Pentru detalii suplimentare si vizionari, va stam la dispozitie.

FACILITATI

Geamuri termopan
Telefon
Acoperis tigla
Parchet
Apa
Gresie
Gaz
Faianta
Consolidata
Aer conditionat
Curent electric
Cablu TV
Gradina
Pod
Broker Imobiliar
Anamaria Halasanu
Consultant imobiliar
0317 xxx xxx
PROPRIETATI SIMILARE
Casa, 15 camere, 650 mp Bucuresti/Capitale
4.500.000 €
Supra.
650 mp
Regim
S + D + P + 3
Teren
232 mp
Casa, 10 camere, 403 mp Bucuresti/Capitale
4.900.000 €
Supra.
403 mp
Regim
S + P + 1 + M
Teren
300 mp
Casa, 6 camere, 217 mp Bucuresti/Capitale
1.300.000 €
Supra.
217 mp
Regim
P + 1 + M
Teren
226 mp
Casa, 10 camere, 306 mp Bucuresti/Capitale
1.600.000 €
Supra.
306 mp
Regim
D + P + 1 + M
Teren
327 mp
Casa, 11 camere, 550 mp Bucuresti/Capitale
6.500.000 €
Supra.
550 mp
Regim
S + D + P + 1 + M
Teren
500 mp

LOCALIZARE

Credit ipotecar
Rata lunara: 27.512 LEI Dobanda: 4.97%
PROPRIETATI SIMILARE