Apartament, 4 camere, 156.65 mp, Bucuresti / Sector 2 / Mihai Bravu (s2)

  • Zona
    MIHAI BRAVU (S2)
  • Nr.
    4 camere
  • Supra.
    156.65 mp
  • Etaj
    3
  • An
    2026
PRET VANZARE
465.000 €

DESCRIERE

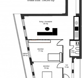
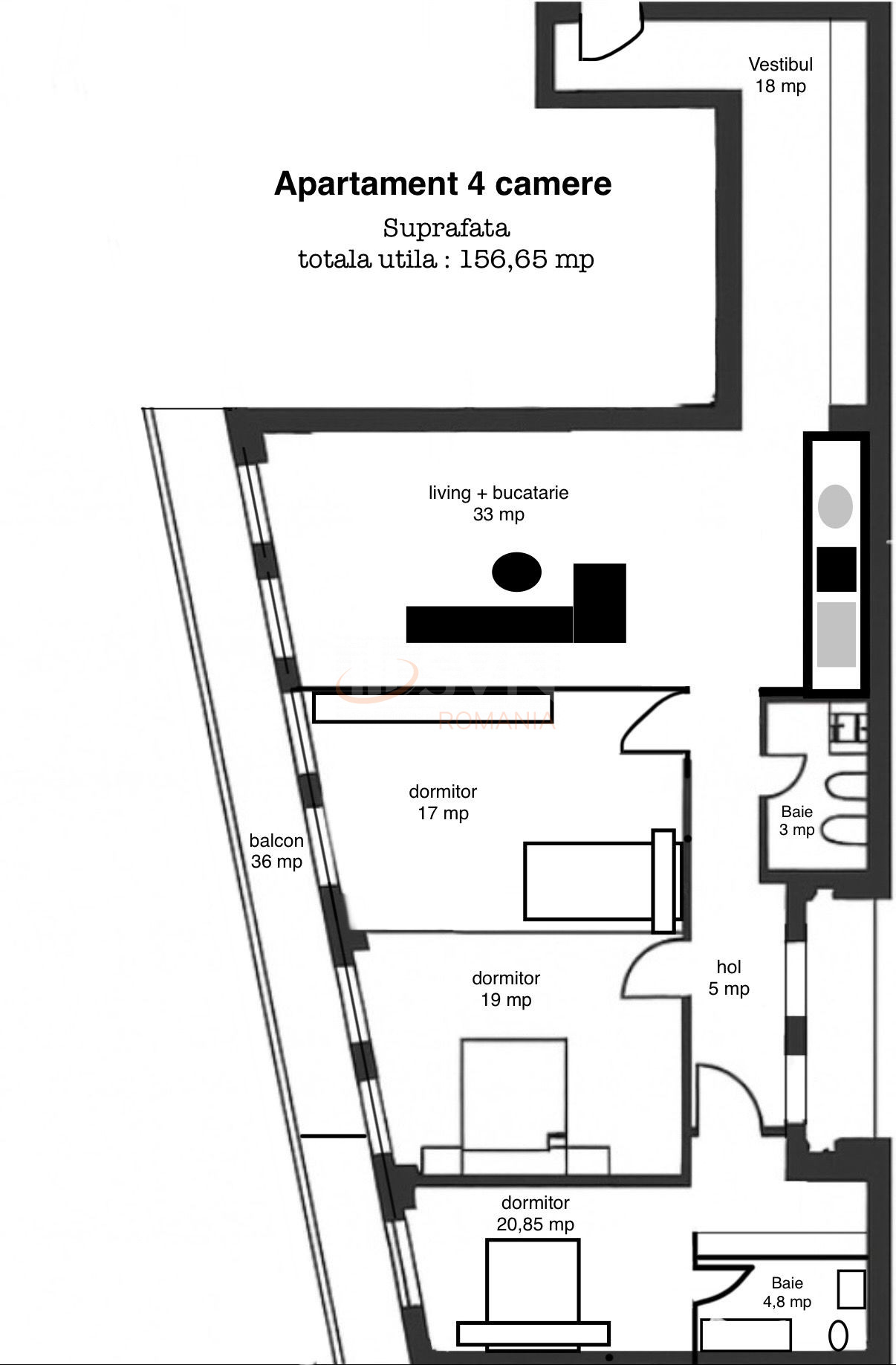
Descoperiți un apartament de excepție, situat într-un bloc nou, ce urmeaza a fi finalizat în 2026, conceput pentru un stil de viață rafinat și confort absolut.
Cu o suprafață utilă de 156,65 mp, proprietatea impresionează prin compartimentarea elegantă și funcțională:
3 dormitoare spațioase, dintre care un dormitor matrimonial cu baie proprie și dressing
Living cu bucătărie open-space, în suprafață de 33 mp, ideal pentru momentele petrecute în familie sau cu invitații
2 băi moderne
Balcon generos de 36 mp, un adevărat spațiu de relaxare

Apartamentul se remarcă prin finisaje premium, materiale de calitate superioară și atenție la cele mai mici detalii, oferind un ambient sofisticat și modern.
O locuință dedicată celor care apreciază eleganța, spațiul și calitatea, într-un imobil nou, la cele mai înalte standarde.

La ora actuala, blocul este ridicat, sunt realizate finisajele exterioare si compartimentarile, se mai lucreaza doar la detaliile interioare (in aceasta faza a lucrarilor finisajele pot fi personalizate).

Va stam la dispozitie cu placere pentru detalii sau stabilirea vizionarii!

ATRIBUTE

Vechime constructie
Noua
Suprafata construita
195 mp
Suprafata utila
156.65 mp
Suprafata terasa
36
Regim Inaltime
3 / 4
Etaj
3
Nr. camere
4 camere
Nr. bai
1
Nr. balcoane
0 balcoane
Confort
1
Compartimentare
Semidecomandat
Tip constructie
In bloc
Status constructie
Nefinalizat
An constructie
2026
Oras
BUCURESTI
Judet/ Sector
SECTOR 2
Zona
MIHAI BRAVU (S2)
Gps lat
44.442572
Gps lng
26.129797
Nr. terase
1
Primary energy consumption
0.00
Co2 consumption index
0.00
Renewable energy consumption
0.00
Tag
TU9ERVJOIEhPTUU=

FACILITATI

Cablu TV
Supraveghere 24/7
Supraveghere video
Detector de gaze
Sistem de alarma
Interfon
Internet prin fibra optica
Internet prin cablu
Curent electric
Geamuri termopan
Repartitoare
Parchet
Apometre
Gresie
Telefon
Faianta
Gaz
Incalzire proprie
Lift

ATRIBUTE

Vechime constructie
Noua
Suprafata construita
195 mp
Suprafata utila
156.65 mp
Suprafata terasa
36
Regim Inaltime
3 / 4
Etaj
3
Nr. camere
4 camere
Nr. bai
1
Nr. balcoane
0 balcoane
Confort
1
Compartimentare
Semidecomandat
Tip constructie
In bloc
Status constructie
Nefinalizat
An constructie
2026
Oras
BUCURESTI
Judet/ Sector
SECTOR 2
Zona
MIHAI BRAVU (S2)
Gps lat
44.442572
Gps lng
26.129797
Nr. terase
1
Primary energy consumption
0.00
Co2 consumption index
0.00
Renewable energy consumption
0.00
Tag
TU9ERVJOIEhPTUU=

DESCRIERE

Descoperiți un apartament de excepție, situat într-un bloc nou, ce urmeaza a fi finalizat în 2026, conceput pentru un stil de viață rafinat și confort absolut.
Cu o suprafață utilă de 156,65 mp, proprietatea impresionează prin compartimentarea elegantă și funcțională:
3 dormitoare spațioase, dintre care un dormitor matrimonial cu baie proprie și dressing
Living cu bucătărie open-space, în suprafață de 33 mp, ideal pentru momentele petrecute în familie sau cu invitații
2 băi moderne
Balcon generos de 36 mp, un adevărat spațiu de relaxare

Apartamentul se remarcă prin finisaje premium, materiale de calitate superioară și atenție la cele mai mici detalii, oferind un ambient sofisticat și modern.
O locuință dedicată celor care apreciază eleganța, spațiul și calitatea, într-un imobil nou, la cele mai înalte standarde.

La ora actuala, blocul este ridicat, sunt realizate finisajele exterioare si compartimentarile, se mai lucreaza doar la detaliile interioare (in aceasta faza a lucrarilor finisajele pot fi personalizate).

Va stam la dispozitie cu placere pentru detalii sau stabilirea vizionarii!

FACILITATI

Cablu TV
Supraveghere 24/7
Supraveghere video
Detector de gaze
Sistem de alarma
Interfon
Internet prin fibra optica
Internet prin cablu
Curent electric
Geamuri termopan
Repartitoare
Parchet
Apometre
Gresie
Telefon
Faianta
Gaz
Incalzire proprie
Lift
Broker Imobiliar
Teodor Taranu
Consultant imobiliar
0317 xxx xxx
PROPRIETATI SIMILARE
Apartament, 4 camere, 106.56 mp Bucuresti/Mihai Bravu (s2)
289.900 €
Supra.
106.56 mp
Etaj
3
An
2026
Apartament, 2 camere, 70.12 mp Bucuresti/Mihai Bravu (s2)
195.000 €
Supra.
70.12 mp
Etaj
10
An
2009
Apartament, 2 camere, 50.2 mp Bucuresti/Mihai Bravu (s2)
189.000 €
Supra.
50.2 mp
Etaj
7
An
2021

LOCALIZARE

Credit ipotecar
Rata lunara: 10.235 LEI Dobanda: 4.97%
PROPRIETATI SIMILARE