Apartament, 2 camere, 55 mp, Bucuresti / Sector 1 / Kiseleff

  • Zona
    KISELEFF
  • Nr.
    2 camere
  • Supra.
    55 mp
  • Etaj
    D
  • An
    1930
PRET INCHIRIERE + TVA
1.000 €/luna

DESCRIERE

SVN va propune spre inchiriere un apartament cu 2 camere situat in zona Kiseleff.

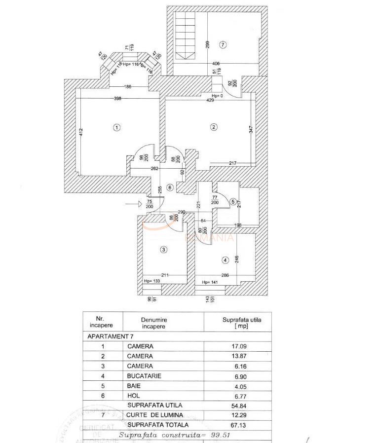
Apartamentul este situat la demisol si are o suprafata utila de 55 mp compartimentat astfel:

-camera 17.09 mp
-camera 13.87 mp
-camera 6.16 mp
-bucatarie 6.90 mp
-baie 4.05 mp
-hol 6.77 mp
-terasa 12.29 mp

Proprietatea a fost consolidata in totalitate. Cu scopul de a pastra cat mai mult din aspectul original, fatadele au beneficiat de o coloristica specifica perioadei in care a fost construit imobilul, respectiv inceputul anilor 30.
Prin inlocuirea tamplariei originale cu tamplarie PVC cu geam termopan s-a asigurat izolarea termica si fonica. In acelasi sens, al necesitatii actuale de a limita transferul termic, fatadele s-au izolat cu 10 cm de termoizolatie cu un material izolant special. Apartamentul are pardoselile acoperite cu parchet stratificat din stejar.
Confortul termic in apartament este asigurat de centrala termica in condensatie si sisteme de aer conditionat. Apartamentul beneficiaza de un control automatizat al incalzirii, racirii si iluminatului pentru eficientizarea acestora, prin micsorarea costurilor de intretinere. Sistemul BMS permite realizarea punctelor precizate mai sus printr-o aplicatie personalizata, care poate fi instalata pe telefon sau tableta. Iluminatul se face integral cu becuri tip LED.

Pentru mai multe detalii sau vizionari nu ezitati sa ne contactati!

ATRIBUTE

Vechime constructie
Veche
Suprafata construita
68 mp
Suprafata utila
55 mp
Regim Inaltime
D / 2
Etaj
D
Nr. camere
2 camere
Nr. bai
1
Nr. balcoane
0 balcoane
Confort
1
Compartimentare
Decomandat
Tip constructie
Bloc
Status constructie
Finalizat
An constructie
1930
Oras
BUCURESTI
Judet/ Sector
SECTOR 1
Zona
KISELEFF
Gps lat
44.459186
Gps lng
26.079744
Tag
QkVTVCBDSE9JQ0U=

FACILITATI

Internet Wireless
Curent electric
Cablu TV
Geamuri termopan
Parchet
Gresie
Telefon
Faianta
Gaz
Calorifere
Incalzire proprie
Mobilat
Aer conditionat
Bucatarie mobilata

ATRIBUTE

Vechime constructie
Veche
Suprafata construita
68 mp
Suprafata utila
55 mp
Regim Inaltime
D / 2
Etaj
D
Nr. camere
2 camere
Nr. bai
1
Nr. balcoane
0 balcoane
Confort
1
Compartimentare
Decomandat
Tip constructie
Bloc
Status constructie
Finalizat
An constructie
1930
Oras
BUCURESTI
Judet/ Sector
SECTOR 1
Zona
KISELEFF
Gps lat
44.459186
Gps lng
26.079744
Tag
QkVTVCBDSE9JQ0U=

DESCRIERE

SVN va propune spre inchiriere un apartament cu 2 camere situat in zona Kiseleff.

Apartamentul este situat la demisol si are o suprafata utila de 55 mp compartimentat astfel:

-camera 17.09 mp
-camera 13.87 mp
-camera 6.16 mp
-bucatarie 6.90 mp
-baie 4.05 mp
-hol 6.77 mp
-terasa 12.29 mp

Proprietatea a fost consolidata in totalitate. Cu scopul de a pastra cat mai mult din aspectul original, fatadele au beneficiat de o coloristica specifica perioadei in care a fost construit imobilul, respectiv inceputul anilor 30.
Prin inlocuirea tamplariei originale cu tamplarie PVC cu geam termopan s-a asigurat izolarea termica si fonica. In acelasi sens, al necesitatii actuale de a limita transferul termic, fatadele s-au izolat cu 10 cm de termoizolatie cu un material izolant special. Apartamentul are pardoselile acoperite cu parchet stratificat din stejar.
Confortul termic in apartament este asigurat de centrala termica in condensatie si sisteme de aer conditionat. Apartamentul beneficiaza de un control automatizat al incalzirii, racirii si iluminatului pentru eficientizarea acestora, prin micsorarea costurilor de intretinere. Sistemul BMS permite realizarea punctelor precizate mai sus printr-o aplicatie personalizata, care poate fi instalata pe telefon sau tableta. Iluminatul se face integral cu becuri tip LED.

Pentru mai multe detalii sau vizionari nu ezitati sa ne contactati!

FACILITATI

Internet Wireless
Curent electric
Cablu TV
Geamuri termopan
Parchet
Gresie
Telefon
Faianta
Gaz
Calorifere
Incalzire proprie
Mobilat
Aer conditionat
Bucatarie mobilata
Broker Imobiliar
Iustina Dragu
Consultant imobiliar
0317 xxx xxx
PROPRIETATI SIMILARE
Apartament, 4 camere, 101.78 mp Bucuresti/Kiseleff
1.900 €
Supra.
101.78 mp
Etaj
5
An
1976

LOCALIZARE

PROPRIETATI SIMILARE