Apartament, 2 camere cu loc parcare subteran inclus, Ilfov / Est / Voluntari

  • Zona
    VOLUNTARI
  • Nr.
    2 camere
  • Supra.
    79.06 mp
  • Etaj
    4
  • An
    2015
PRET INCHIRIERE
650 €/luna

DESCRIERE

SVN Residentialist va propune spre inchiriere un apartament premium cu 2 camere, situat in complexul rezidential Diamond Residence Pipera, pe strada Matei Basarab, intr-o zona exclusivista si bine conectata, in imediata apropiere a Baneasa Shopping City.

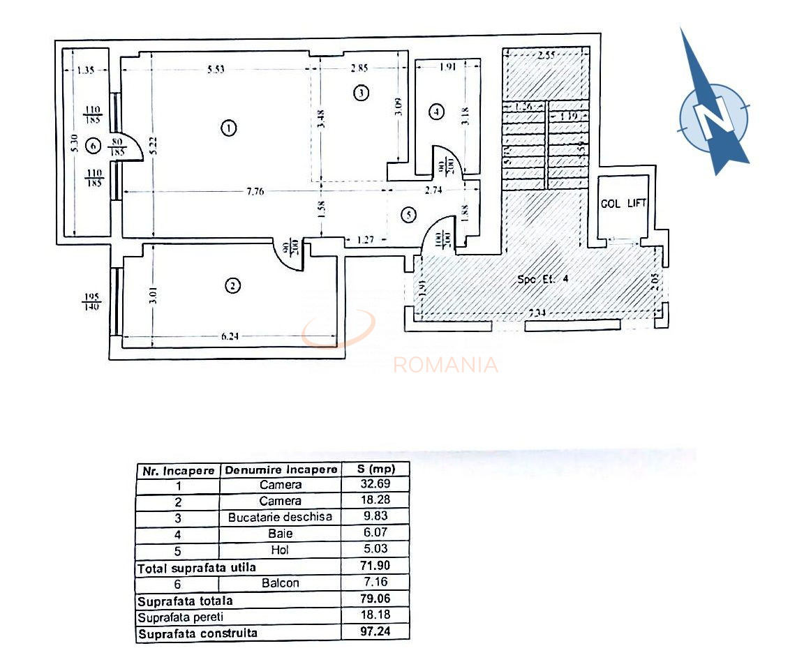
Apartamentul are o suprafata utila generoasa de 80 mp, este amplasat la etajul 4 din 7 si se remarca prin spatii ample, finisaje moderne si o compartimentare eficienta, fiind compus din hol, living spatios, bucatarie, dormitor, baie si grup sanitar. Proprietatea beneficiaza de balcon cu vedere spre padure, oferind un cadru natural si intim.

Se inchiriaza complet mobilat si utilat, fiind dotat cu centrala termica proprie cu incalzire in pardoseala, aer conditionat, masina de spalat vase, masina de spalat rufe cu uscator, precum si electrocasnice si mobilier de calitate superioara.

Complexul ofera facilitati premium precum piscina privata, supraveghere video in complex si parcare, acces controlat, loc de parcare subteran cu acces direct la lifturi si un nivel ridicat de siguranta si confort. Imobilul a fost construit in anul 2015, cu structura din caramida, iar fatada a fost renovata in 2024.

Apartamentul este proprietatea unei firme, se emite factura cu TVA (deductibil). Destinatia este exclusiv rezidentiala. Contractul se incheie pe minim un an, cu plata unei luni in avans si o garantie. Nu se accepta animale de companie.

SVN Residentialist va asteapta la vizionare!

ATRIBUTE

Vechime constructie
Veche
Suprafata construita
97.24 mp
Suprafata utila
79.06 mp
Suprafata terasa
7.16 mp
Regim Inaltime
4 / 7
Etaj
4
Nr. camere
2 camere
Nr. bai
1
Nr. balcoane
1 balcon
Confort
1
Compartimentare
Semidecomandat
Tip constructie
In bloc
Status constructie
Finalizat
An constructie
2015
Oras
ILFOV
Judet/ Sector
EST
Zona
VOLUNTARI
Gps lat
44.517832
Gps lng
26.140034
Tag
QkVTVCBDSE9JQ0U=
Parkings
1
Price included parking
1

FACILITATI

Supraveghere 24/7
Supraveghere video
Interfon
Cablu TV
Curent electric
Internet prin cablu
Geamuri termopan
Parchet
Gresie
Loc parcare subteran
Faianta
Gaz
Incalzire proprie
Calorifere
Mobilat
Aer conditionat
Bucatarie mobilata
Bloc reabiliat termic
Lift

ATRIBUTE

Vechime constructie
Veche
Suprafata construita
97.24 mp
Suprafata utila
79.06 mp
Suprafata terasa
7.16 mp
Regim Inaltime
4 / 7
Etaj
4
Nr. camere
2 camere
Nr. bai
1
Nr. balcoane
1 balcon
Confort
1
Compartimentare
Semidecomandat
Tip constructie
In bloc
Status constructie
Finalizat
An constructie
2015
Oras
ILFOV
Judet/ Sector
EST
Zona
VOLUNTARI
Gps lat
44.517832
Gps lng
26.140034
Tag
QkVTVCBDSE9JQ0U=
Parkings
1
Price included parking
1

DESCRIERE

SVN Residentialist va propune spre inchiriere un apartament premium cu 2 camere, situat in complexul rezidential Diamond Residence Pipera, pe strada Matei Basarab, intr-o zona exclusivista si bine conectata, in imediata apropiere a Baneasa Shopping City.

Apartamentul are o suprafata utila generoasa de 80 mp, este amplasat la etajul 4 din 7 si se remarca prin spatii ample, finisaje moderne si o compartimentare eficienta, fiind compus din hol, living spatios, bucatarie, dormitor, baie si grup sanitar. Proprietatea beneficiaza de balcon cu vedere spre padure, oferind un cadru natural si intim.

Se inchiriaza complet mobilat si utilat, fiind dotat cu centrala termica proprie cu incalzire in pardoseala, aer conditionat, masina de spalat vase, masina de spalat rufe cu uscator, precum si electrocasnice si mobilier de calitate superioara.

Complexul ofera facilitati premium precum piscina privata, supraveghere video in complex si parcare, acces controlat, loc de parcare subteran cu acces direct la lifturi si un nivel ridicat de siguranta si confort. Imobilul a fost construit in anul 2015, cu structura din caramida, iar fatada a fost renovata in 2024.

Apartamentul este proprietatea unei firme, se emite factura cu TVA (deductibil). Destinatia este exclusiv rezidentiala. Contractul se incheie pe minim un an, cu plata unei luni in avans si o garantie. Nu se accepta animale de companie.

SVN Residentialist va asteapta la vizionare!

FACILITATI

Supraveghere 24/7
Supraveghere video
Interfon
Cablu TV
Curent electric
Internet prin cablu
Geamuri termopan
Parchet
Gresie
Loc parcare subteran
Faianta
Gaz
Incalzire proprie
Calorifere
Mobilat
Aer conditionat
Bucatarie mobilata
Bloc reabiliat termic
Lift
Broker Imobiliar
Maria Epassy
Consultant imobiliar
0317 xxx xxx

LOCALIZARE

PROPRIETATI SIMILARE